如何计算贴软聚氯乙烯板面层的工程量?
踢脚板防腐
工程量计算规则:定额和清单中,踢脚板防腐工程均应区分防腐材料种类及其厚度,按实铺长度乘其高度以平方米计算,并扣除门洞所占面积,网时增加门洞侧壁展开面积。
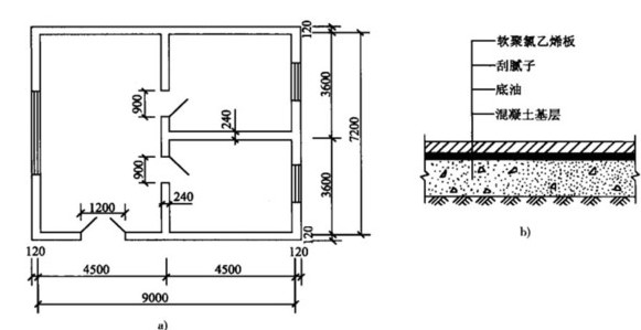
【例】某地板如图所示,地板表面贴软聚氯乙烯板,试求贴软聚氯乙烯板面层的工程量(取踢脚线高150mm)

图某地板示意图 a)平面图b)地板做法图
【解】(1)定额工程量
软聚氯乙烯板面层的工程量按图示尺寸以面积计算,并包括踢脚板面积,平面应扣除凸出地面的构筑物、设备基础等所占面积;砖垛等凸出部分按展开面积并人墙面积内,踢脚板部分应扣除门洞所占面积并相应增加门洞侧壁面积。故该软聚氯乙烯板面层的工程量如下:
地面软聚氯乙烯板面层的工程量为:
[(4.5-0.24)(7.2-0.24)+(4.5-0.24)(3.6-0.24)2+0.90.242+1.20.12]
=(29.65+28.63+0.43+0.14)=58.85
墙面踢脚板软聚氯乙烯板面层的工程量为:
[(7.2-0.24)2+(4.5-0.24)6+(3.6-0.24)4-0.922-1.2+0.2422+0.122]0.15=(13.92+25.56+13.44-3.6-1.2+0.96+0.24)0.15
=49.320.15=7.40
故贴软聚氯乙烯板面层的工程量为:
(58.85+7.40)=66.25
套用基础定额10-44。
(2)清单工程量
清单工程量计算见表。
