如何高低联跨建筑物建筑面积工程量?
工程量计算规则:高低联跨的建筑物,以高跨结构外边线为界(以2.20m为分界线,区别其层高)分别计算其建筑面积。
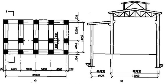
【例】求如图所示单层工业厂房高跨部分及低跨部分的建筑面积。

图高低联跨的单层工业厂房 a)平面图 b)1-1剖面图
【解】(1)高跨部分建筑面积:F1=(24+20.12)(12+0.12+0.2)m2=298.64 m2
(2)低跨部分建筑面积:F2=(24+20.12)(12+6+20.12)-F1
=(442.14-298.641)m2
= 143.50 m2
或F2=(24+20.12)(6-20.12)m2=143.50 m2
注:(1)建筑物内的变形缝,按自然层合并在建筑物面积内。
(2)高低跨内部连通时,变形缝合并在低跨面积内。