如何计算挖地槽放坡工程量?
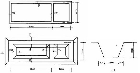
【例】某工程挖地槽放坡如图所示,二类土,计算其工程量。

地槽开挖放坡示意图
【解】
(1)定额工程量:
工程量=(1.5+1.5+0.5942)1.8/2[(21+12+15)2+(15-1.5)]m3
=412.73m3
套用基础定额1-5。
(2)清单工程量:
工程量=1.51.8[(21+12+15)2+(15-1.5)]m3=295.65m3
清单工程量计算见表。
表 清单工程量计算表
项目编码
项目名称
项目特征描述
计量单位
工程量
010101003001
挖基础土方
二类土,条形基础,垫层底宽1.5m,挖土深度1.8m
m3
295.65