如何计算围墙工程量?
【例】如图所示,已知墙身及毛石基础均用M5混合砂浆砌筑,围墙总长为1800m(扣除门宽及门垛),每6m一个附墙垛,求围墙工程量。

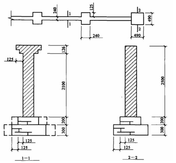
围墙示意图
【解】(1)定额工程量:
毛石基础工程量计算如下:
V围墙=(0.740.3+0.490.2)1800m=576.00 m
V附墙躲=[(0.24+0.1252)0.1250.22+(0.24+0.1252+0.1252)0.125
0.32](1800/6-1)m=0.08299m=23.92m
V门躲[(0.990.990.3+0.740.740.2)-(0.250.740.3+0.1250.490.2)]2m=0.67 m
毛石基础工程量:(576.00+23.92+0.67)m=600.59m
套用基础定额4-26。
砖围墙工程量计算如下:
附墙垛数量=(1800/6-1)个=299个
附墙垛体积=0.12522.10.24299m=37.67r m
压 顶体积=(0.3650.063+0.490.063)1800 m=96.96m
固墙体积=0.242.11800m=907.2m
门垛体积=0.490.492.52m=1.20m
围墙总体积:(37.67+96.96+907.2+1.2)m=1043.03m
套用基础定额4-10。
(2)清单工程量:
毛石基础工程量计算方法同定额工程量。
围墙工程量=(37.67+907.2+120)m=946.07m
清单工程量计算见表。
表 清单工程计算表
序号
项目编码
项目名称
项目特征描述
计量单位
工程量
1
010305001001
石基础
毛石,基础深0.5m,M5混合砂浆
m3
600.59
2
010302001001
实心砖墙
围墙,墙厚240mm.墙体高2.1m,M5混合砂浆
m3
946.07