如何计算单层建筑物外墙轴线尺寸的建筑面积?
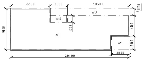
某单层建筑物外墙轴线尺寸如图所示,墙厚均为240,轴线坐中,试计算建筑面积。

图
解:建筑面积:
S = S1-S2-S3-S4
=20.349.24-33-13.51.5-2.761.5
=154.552()
①、单层建筑物不论其高度如何,均按一层计算建筑面积。其建筑面积按建筑物外墙勒脚以上结构的外围水平面积计算。
②、建筑面积计算的基本方法是面积分割法,对于矩形面积的组合图形,可先按最大的长、宽尺寸计算出基本部分的面积,然后将多余的部分逐一扣除。在计算扣除部分面积时,注意轴线尺寸的运用。