柱混凝土浇筑一般要求有哪些?
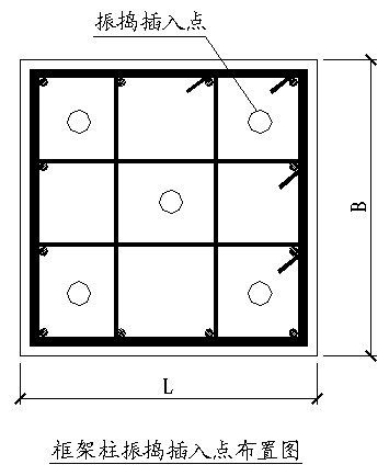
①柱浇筑前在底部先铺垫与混凝土配合比相同减石子砂浆,并使底部砂浆厚度为40mm。柱砼分层浇筑,每层浇筑柱砼的厚度为40cm,振捣棒不得触动钢筋和预埋件,插入点均匀,防止多振或漏振(见图)。
②混凝土自高处倾落的自由高度不得超过2m,浇筑的竖向结构高度超过2m时采用振动溜管(100)使混凝土下落。下料时使软管在柱上口来回挪动,使之均匀下料,防止骨浆分离。
③柱子混凝土一次浇筑到梁底或板底,且高出梁底或板底3cm(待拆模后,剔凿掉2cm,使之漏出石子为止)。地下车库外墙施工缝留在梁下面并设置钢板止水带。
④浇筑完后应随时将伸出的搭接钢筋整理到位。
