混凝土空心砌块墙体拉结筋设置要点有哪些?
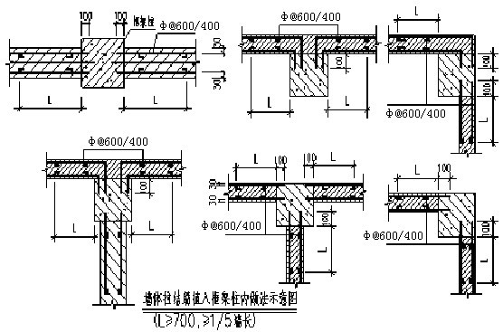
1.隔墙沿墙高每500(可根据混凝土砌块模数设置400mm/600mm)设26拉筋与构造柱或剪力墙拉结,主楼每边伸入隔墙700且大于1/5墙长;菜场及活动中心、配套商业、门卫处外墙每边伸入框架柱、构造柱满足锚固长度外全长通长设置。
2.填充墙与结构剪力墙、框架柱拉结,原在结构剪力墙、框架柱预留的剔凿出来,如没有预埋的,采用在结构墙体上打孔植筋的做法,植入深度15d(即6钢筋90mm),植入钢筋预留足够的搭接长度与填充墙内通长钢筋绑扎。(植筋做法见下图)

1.隔墙沿墙高每500(可根据混凝土砌块模数设置400mm/600mm)设26拉筋与构造柱或剪力墙拉结,主楼每边伸入隔墙700且大于1/5墙长;菜场及活动中心、配套商业、门卫处外墙每边伸入框架柱、构造柱满足锚固长度外全长通长设置。
2.填充墙与结构剪力墙、框架柱拉结,原在结构剪力墙、框架柱预留的剔凿出来,如没有预埋的,采用在结构墙体上打孔植筋的做法,植入深度15d(即6钢筋90mm),植入钢筋预留足够的搭接长度与填充墙内通长钢筋绑扎。(植筋做法见下图)
