构件式干法隐框玻璃幕墙是什么?
●标准产品产品标准化、系列化设计,质量稳定可靠,可满足不同的要求。
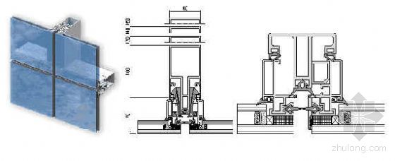
●结构特点采用挂钩式机械锁紧结构固定,安全可靠;玻璃板块可实现无序安装,操作简单,安装速度快捷。
●性能特点采用三道胶条结构密封,水密、气密性能可达到(GB/T15225-94)I级标准。
●建筑效果建筑立面开启部分与固定部分内、外视效果一致,整体协调统一。

●标准产品产品标准化、系列化设计,质量稳定可靠,可满足不同的要求。
●结构特点采用挂钩式机械锁紧结构固定,安全可靠;玻璃板块可实现无序安装,操作简单,安装速度快捷。
●性能特点采用三道胶条结构密封,水密、气密性能可达到(GB/T15225-94)I级标准。
●建筑效果建筑立面开启部分与固定部分内、外视效果一致,整体协调统一。
