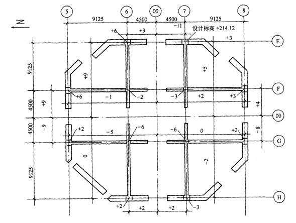
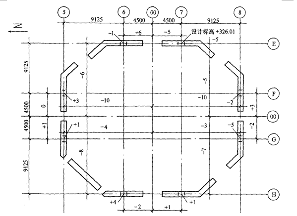
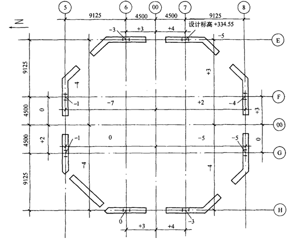
核心筒外伸朽架柱顶偏差和标高测量要求有哪些?
核心筒的三道外伸桁架的柱顶中心水平偏差,依据投测在A24层、A51层和A85层钢平台上的十字轴线来测设,分别量测轴线与柱顶中心间距离,算得每个柱顶的水平位移偏差如图4-180~图4-185所示,同时算得每道外伸桁架相对偏差(略)。标高测量分别以核心筒红三角标高标志,用水准测量方法,测出各柱顶高程,求得高程偏差。

核心筒24层柱顶水平位移及标高偏差

核心筒26层柱顶水平位移及标高偏差

核心筒51层柱顶水平位移及标高偏差

核心筒53层柱顶水平位移及标高偏差

核心筒85层柱顶水平位移及标高偏差
