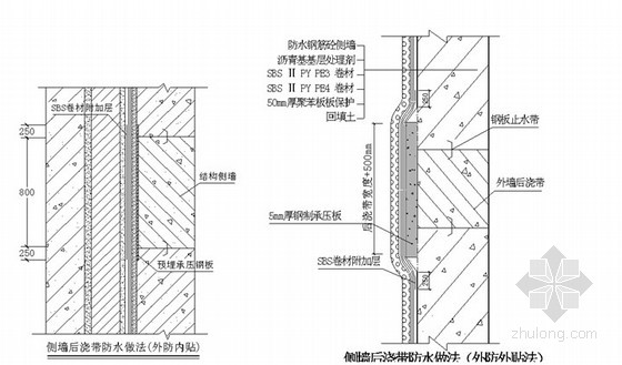
立墙后浇带部位分两种做法节点图
侧墙部分的外防外贴式做法和高低跨导墙部分的外防内贴做法,两种做法的节点处理如下图所示:

侧墙后浇带防水处理的关键是设置承压板,对外防外贴法施工的侧墙,在铺贴防水卷材之前,在后浇带位置设置过渡承压板,使防水卷材顺利通过,并防止回填土的挤压;外防内贴法施工时,在浇筑侧墙混凝土之前,放上加工好的承压钢板。
侧墙部分的外防外贴式做法和高低跨导墙部分的外防内贴做法,两种做法的节点处理如下图所示:

侧墙后浇带防水处理的关键是设置承压板,对外防外贴法施工的侧墙,在铺贴防水卷材之前,在后浇带位置设置过渡承压板,使防水卷材顺利通过,并防止回填土的挤压;外防内贴法施工时,在浇筑侧墙混凝土之前,放上加工好的承压钢板。