规范网
更新
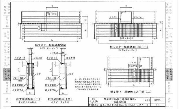
关于11G329-1更正说明
11G329-1,更正说明
展开剩余
%
加入收藏
上一篇:
沉降观测的具体做法
钢筋施工工艺
:下一篇
相关推荐
监理项目部常见失职行为分析及防范
监理如何做好工程进度管控
13条工程施工过程中的监理建议
如何提升监理的安全管控水平和风险规避能力
新开工项目监理进场后的主要工作