施工测量前准备工作
(1)熟悉设计图纸
①总平面图,是施工测量的总体依据,建筑物就是根据总平面图上所给的尺寸关系进行定位的。
②建筑平面图,给出建筑物各定位轴线间的尺寸关系及室内地坪标高等。
③基础平面图,给出基础轴线间的尺寸关系和编号。
④基础详图(即基础大样图),给出基础设计宽度、形式、设计标高及基础边线与轴线的尺寸关系,是基础施工的依据。
⑤立面图和剖面图,给出基础、地坪、门窗、楼板、屋架和屋面等设计高程,是高程测设的主要依据。

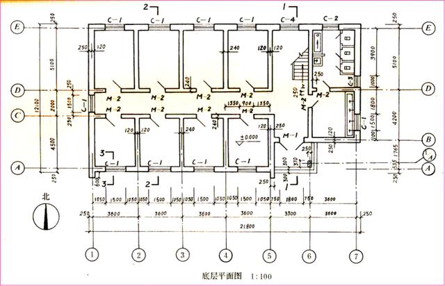
建筑平面图

基础平面图

基础详图
(2)现场踏勘
目的是为了解施工现场周围地物以及测量控制点的分布情况,并对测量控制点的点位进行检核,以取得正确的起始数据。
(3)拟定放样方案,绘制放样略图
根据总平面图给定的建筑物位置以及现场控制点情况,拟定放样方案、绘制放样略图。在略图上标出建筑物轴线间的主要尺寸以及有关的放样数据,供现场放样时使用。
民用建筑施工中的测量
1.建筑物的定位测量及建筑物放线
①利用现有建筑物定位。在设计图上量出施工建筑物与现有建筑物之间的各种关系。
②根据建筑方格网或建筑基线进行定位,尽量采用直角坐标法,如地形条件不允许时,采用极坐标法。
③根据测量控制点定位,主要采用极坐标法。
利用现有建筑物定位

1.引辅助线:
作MN的平行线M"N",即为辅助线。做法是:
沿现有建筑物PM与OM墙面向外量出MM与NN,大约1.5~2.0m,并使MM=NN,在地面上定出M和N两点,连接M和N两点即为辅助线。
2、经纬仪置于M点,对中整平,照准N点,然后沿视线方向,根据图纸上所给的NA尺寸,从N"点用卷尺量距依次定出A"、B"两点,地面打木桩,桩上钉钉子。
3、仪器置于A" 点,对中整平,测设90角在视线方向上量AA=MM,在地面打木桩,桩顶钉钉子定出A点,再沿视线方向量新建筑物宽AD,在地面打木桩,桩顶钉钉子定出D点。同样方法,仪器置于B"点测设90,定出B点与C点。
4、检查C、D两点之间距离应等于新建筑物的设计长,距离误差允许为1/5000。在C点和D点安经纬仪测量角度应为90,角度误差允许为30。
2.建筑物放线
建筑物放线就是根据已测设的角点桩(建筑物外墙主轴线交点桩)及建筑物平面图,详细测设建筑物各轴线的交点桩(或称中心桩)。 如图所示,测设方法是,在角点上设站(M、N、P、Q)用经纬仪定向,钢尺量距,依次定出2、3、4、5各轴线与A轴线和D轴线的交点(中心桩),然后再定出B、C轴线与1、6轴线的交点(中心桩)。建筑物外轮廓中心桩测定后,继读测定建筑物内各轴线的交点(中心桩)。

3.测设轴线控制桩或龙门板

①测设控制桩(引桩)将经纬仪安置在角桩上、瞄准另一角桩,沿视线方向用钢尺向基槽外侧量取3~5m。打下木桩,桩顶钉上小钉,准确标志出轴线位置,并用混凝土包裹木桩(如上图)。
②在一般民用建筑中,常在基槽开挖线外一定距离处钉设龙门板
基础施工测量
(1)基槽开挖边线放线与控制基槽开挖深度
①基槽开挖边线放线
在基础开挖之前应按照基础详图上的基槽宽度再加上口放坡的尺寸,由中心桩向两边各量出相应尺寸,并作出标记;然后在基槽两端的标记之间拉一细线,沿着细线在地面用白灰撒出基槽边线,施工时就按此灰线进行开挖。

②控制基槽开挖深(测设水平桩)
为了控制基槽开挖深度,在即将挖到槽底设计标高时,用水准仪在槽壁上测设一些水平的小木桩,如右图,使木桩的上表面离槽底设计标高为一固定值(如0.500m),用以控制挖槽深度。为了施工时使用方便,一般在槽壁各拐角处和槽壁每隔3~4m处均测设一水平桩,作为清理槽底和打基础垫层时掌握标高的依据。
水平桩高程测设允许误差为土10mm。假设槽底设计标高为 1.700m,按图中所列数据,在槽壁测设出的水平桩标高为 1.200m,自水平桩面向下量取0.500m即为槽底的设计位置。

(2)基础施工测量
基础施工包括垫层和基础墙的施工。
①垫层面标高的控制
垫层面标高的控制用槽壁水平桩为依据。
②在垫层上投测墙中心线
基础垫层浇注后,根据龙门板上的轴线钉或轴线控制桩,用经纬仪或用拉线挂垂球的方法,把轴线投测到垫层面上,并用墨线弹出墙中心线和基础边线,以便砌筑基础。

③基础墙标高的控制
基础墙中心轴线投在垫层后 ,用水准仪检测各墙角垫层面标高,符合要求后即可开始基础墙( 土0.00以下的墙)的砌筑。基础墙的高度是用基础皮数杆控制的。皮数杆用一根木杆制成,在杆上按照设计尺寸将砖和灰缝的厚度,分皮一一画出,每五皮砖注上皮数(基础皮数杆的层数从0.000向下注记)并标明0.000、防潮层和需要预留洞口的标高位置等。如下图所示。

墙体施工的测量
(1)墙体轴线投测
基础墙砌筑到防潮层以后,可根据轴线控制桩或龙门板上中线钉,用经纬仪或拉细线,把这一层楼房的墙中线和边线投测到防潮层上,并弹出墨线,检查外墙轴线交角是否等于90;符合要求后,把墙轴线延伸到基础墙的侧面上画出标志,作为向上投测轴线的依据。同时把门、窗和其他洞口的边线,也在外墙基础立面上画出标志。

(2)墙体标高的控制
墙体砌筑时,其标高也常用皮数杆控制。在墙身皮数杆上根据设计尺寸,按砖和灰缝的厚度画线,并标明门、窗、过梁、楼板等的标高位置。杆上注记从 土0.000向上增加(如下图)。墙身皮数杆的设立方法与基础皮数杆相同。
每层墙体砌筑到一定高度后,常在各层墙面上测设出 +0.50m的标高线(俗称50线),作为掌握楼面抹灰及室内装修的标高依据。

(3)二层以上楼层轴线和标高的测设
1.轴线投测
(1)经纬仪投测法
墙体砌筑到二层以上时,为了保证建筑物轴线位置正确,通常把经纬仪安置在轴线控制桩上,如下图所示,经纬仪安置在A轴与B轴的控制桩上,瞄准底层轴线标志a、a,b、b, 用盘左盘右取平均的方法,将轴线投测到上一层楼板边缘,并取中点作为该层中心轴线点,a1、a1和b1、b1两线的交点o即为该层的中心点。此时轴线a1oa1与b1ob1便是该层细部放样的依据。随着建筑物不断升高,同法逐层向上投测。

(2)吊锤球引测法
用较重的垂球悬吊在楼板或柱顶边缘,当垂球尖对准基础面上的轴线标志时,垂球线在楼板或柱边缘的位置即为楼层轴线位置。画出标志线,同样地可投测出其余各轴线。经检测,各轴线间距符合要求即可继续施工。但当测量时风力较大或楼层建筑物较高时,投测误差较大,此时应采用经纬仪投测法。
2.楼层面标高的传递
(1)利用皮数杆传递 一层楼房砌好后,把皮数杆移到二层楼继续使用,为了使皮数杆立在同一水平面上,用水准仪测定楼板面四角的标高,取平均值作为二楼的地坪标高,并竖立二层的皮数杆,以后一层一层往上传递。
(2)利用钢尺丈量 在标高精度要求较高时,可用钢尺从墙脚 0标高线沿墙面向上直接丈量,把高程传递上去。然后钉立皮数杆,作为该层墙身砌筑和安装门窗、过梁及室内装修,地坪抹灰时控制标高的依据。
(3)悬吊钢尺法 在外墙或楼梯间悬吊钢尺,钢尺下端挂一重锤,然后使用水准仪把高程传递上去。一般需3个底层标高点向上传递,最后用水准仪检查传递的高程点是否在同一水平面上,误差不超过3mm。
此外,也可使用水准仪和水准尺按水准测量方法沿楼梯将高程传递到各层楼面。