1.楼梯的坡度与踏步尺寸
(1)楼梯的坡度
楼梯的坡度指的是楼梯段的坡度,即楼梯段的倾斜角度。
楼梯的坡度有两种表示法,即角度法和比值法。
角度法:一般楼梯的坡度在23~45之间,30为适宜坡度。坡度小于20时,采用坡道;坡度超过45时,则采用爬梯。
比值法:楼梯常用坡度为1:2.

(2)楼梯的踏步尺寸
楼梯的踏步尺寸包括踏面宽和踢面高。
踏面:行走时踏脚的水平部分。
踢面:形成踏步高差的垂直部分。

经验公式:
2h+b=600~620mm或 h+b=450mm
式中,h表示踢面高;b表示踏面宽。

在建筑工程中,踏面宽度一般为260~320mm,踢面高度一般为140~175mm。
在居住建筑中,踏面宽度一般为260~300mm,踢面高度为150~175mm较为合适。
学校、办公楼坡度应平缓些,通常踏面宽为280~340mm,踢面高为140~160mm。
当进深受限,为了人们上下楼梯时更加舒适,在不改变楼梯坡度的情况下,可采取踏面挑出和踢面倾斜的方法解决。



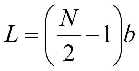
房屋层高H

楼梯段水平投影长度L

2.楼梯段的宽度与平台宽度
(1)楼梯段的宽度
楼梯段的宽度是指楼梯段临空侧扶手中心线到另一侧墙面(或靠墙扶手中心线)之间的水平距离。

(2)平台宽度
为了保证通行顺畅和搬运家具设备的方便,楼梯平台的宽度应不小于楼梯段的宽度。
开敞式楼梯间楼层平台应有一个缓冲空间,其宽度不得小于500mm。

封闭式楼梯间楼层平台一般与中间休息平台等宽,但是必须满足规范规定的局部尺寸的要求。


楼梯段的宽度计算

平台宽度计算

C 为梯井宽度,是两梯段之间的缝隙宽,一般为60~200mm。
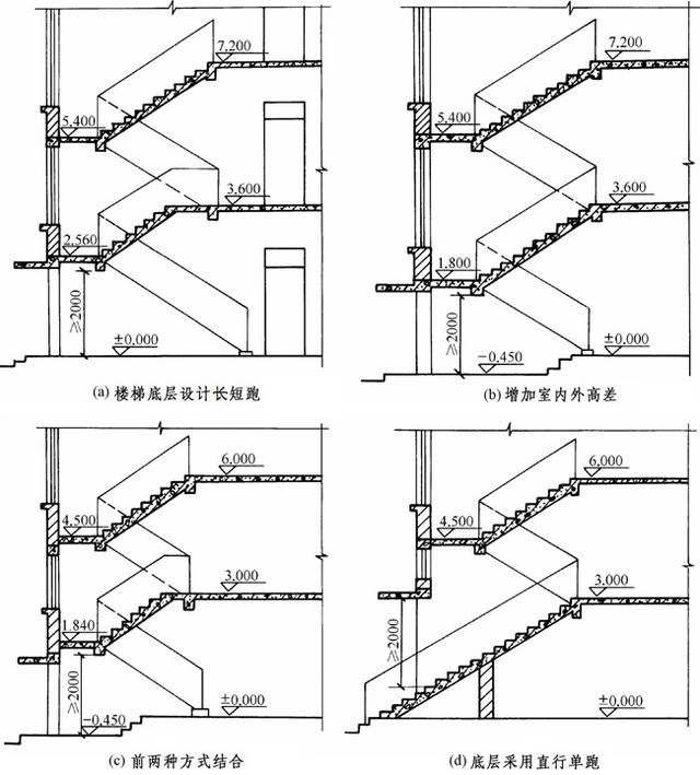
3.楼梯的净空高度

确定楼梯段上的净空高度时,楼梯段的计算范围应从楼梯段最前和最后踏步前缘分别往外300mm算起。

当楼梯底层中间平台下设置通道时,为满足平台下方空间净高2000mm,常采取右侧几种处理方法:

4.楼梯栏杆扶手的高度
栏杆扶手高度是指踏步前缘到扶手顶面的垂直距离。
一般建筑物楼梯扶手高度为900mm;平台上水平扶手长度超过500mm时,其高度不应小于1050mm;幼托建筑的扶手高度不能降低,可增加一道500~600mm高的儿童扶手。

5.楼梯的设计
楼梯设计步骤:
(1)确定楼梯的形式;
(2)根据楼梯的性质和用途,确定楼梯的适宜坡度,选择踢面高h,踏面宽b(2h+b=600~620mm);
(3)根据楼梯间的开间和楼梯井的尺寸,确定楼梯段宽度B;
(4)确定踏步级数。用房屋的层高H除以踢面高h,得出踏步级数N=H/h,踏步应为整数。
(5)由初定的踏面宽b确定楼梯段的水平投影长度L。
(6)进行楼梯净空的计算,使之符合净空高度的要求。
(7)最后绘制楼梯平面图及剖面图。