建筑详图的特点及作用
(1)特点:一是比例大,二是图示内容详尽清楚,三是尺寸标注齐全、文字说明详尽。
(2)建筑详图是建筑细部的施工图,是对建筑平面、立面、剖面图等基本图样的深化和补充,是建筑工程的细部施工、建筑构配件的制作及编制预算的依据。
(1)建筑详图可分为节点构造详图和构配件详图两类。
凡表达房屋某一局部构造做法和材料组成的详图称为节点构造详图(如檐口、窗台、勒脚、明沟等)。

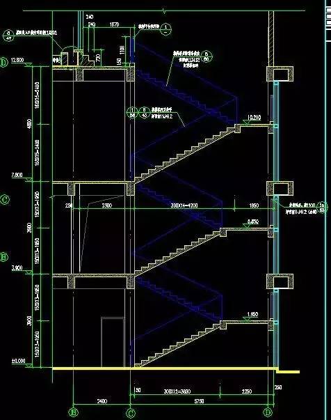
凡表明构配件本身构造的详图,称为构件详图或配件详图(如门、窗、楼梯等)。



建筑详图的表示方法
详图的数量。详图的数量和图示内容与房屋的复杂程度及平面、立面、剖面图的内容和比例有关。
对于套用标准图或通用图的建筑构配件和节点,只需注明所套用图集的名称、型号或页次,可不必另画详图。
对于节点构造详图,应在详图上注出详图符号或名称,以便对照查阅。而对于构配件详图,可不注索引符号,只在详图上写明该构配件的名称或型号即可。
建筑详图的内容
一幢房屋施工图通常需绘制以下几种详图:外墙剖面详图、楼梯详图、门窗详图及室内外一些构配件的详图。各详图的主要内容有:
(1) 图名(或详图符号)、比例
(2) 表达出构配件各部分的构造连接方法及相对位置关系
(3) 表达出各部位、各细部的详细尺寸
(4) 详细表达构配件或节点所用的各种材料及其规格
(5) 有关施工要求、构造层次及制作方法说明等