一、楼梯的组成
楼梯由梯段、平台、栏杆扶手三部分组成:
①梯段:3级踏步步数18级;
②楼梯平台:有中间平台和楼层平台之分;
③栏杆扶手:栏杆扶手是设在梯段及平台边缘的安全保护构件。

1、楼梯的尺度要求
楼梯的坡度指楼梯段的坡度,由踏步高宽比决定。它有两种表示方法:
一种是用斜面和水平面所夹角度表示; 另一种表示方法是斜面的垂直投影高度与斜面的水平投影长度之比。
楼梯常见坡度范围为20~45,即1/2.75~1/1,其中30左右较为通用。坡度小于20时,应采用坡道形式。坡度大于45时,则采用爬梯。
常见尺寸:住宅:1:1.5 ;公共建筑:1:2
2.楼梯踏步尺寸
踏面宽度与人的脚长和上下楼梯时脚与踏面接触状态有关。踏步的宽度应与成年男子的脚长相适宜,当踏面宽300mm时,人的脚可以完全落在踏面上,行走舒适。当踏面宽减少时,人行走脚跟部分可悬空,行走就不方便。

踏步尺度
楼梯的坡度由踏步高h(踢面)与踏步宽b(踏面)来控制,常用坡度30左右。b、h符合下式:b+h=450mm。
梯段尺度
梯段宽度:每股人流宽度为550+(0~150mm),每个梯段最小宽度为1100~1400mm(每个梯段须保证二人同时上下)
踏步常用高度尺寸
踏步的高度,成人以150mm左右较适宜,不应高于175mm。
踏步的宽度(水平投影宽度)以300mm左右为宜,不应窄于260mm。
当踏步尺寸较小时,可以采取加做踏步檐或使踢面倾斜的方式加宽踏面。踏口的挑出尺寸为20~25mm。见图。

3.楼梯段的宽度
楼梯段是楼梯的主要组成部分之一,它是供人们上下通行的,因此楼梯的宽度必须满足上下人流及搬运物品的需要。楼梯段宽度的确定要考虑同时通过人流的股数及是否需通过尺寸较大的家具或设备等特殊的需要。

一般楼梯段需考虑同时至少通过两股人流,即上行与下行在楼梯段中间相遇能通过。按每股人流500-600mm宽度考虑。
单人通行时为900mm,
双人通行时为1000-1200mm,
三人通行时为1500-1800mm,其余类推
同时,需满足各类建筑设计规范中对梯段宽度的限定。如住宅1100mm,公建1300mm等。
4.楼梯平台的宽度
楼梯平台是楼梯段的连接,也供行人稍加休息之用。所以楼梯平台宽度大于或至少等于楼梯段的宽度,即规定了楼梯平台宽度取值的下限。
即:平台宽度分为中间平台宽度D1和楼层平台宽度D2,平台宽度应大于或等于梯段宽度。
对于平行和折行多跑类型的楼梯, 休息平台宽度必须大于等于梯段宽度;对于直行多跑楼梯,其中间平台宽度等于梯段宽度。

5、栏杆(或栏板)扶手高度
扶手高度是指踏面中心到扶手顶面的垂直距离。扶手高度的确定要考虑人们通行楼梯段时依扶的方便。
一般室内扶手高度取900-1000mm;
托幼建筑中楼梯扶手高度应适合儿童身材,扶手高度一般取600mm;但注意在600mm处设一道扶手,900mm处仍应设扶手,此时楼梯为双道扶手。
扶手宽度宜为60 ~80 mm。

顶层平台的水平安全栏杆扶手高度应适当加高一些,一般不宜小于1000mm,为防止儿童穿过栏杆空档而发生危险,栏杆之间的水平距离不应大于120mm,室外楼梯扶手高度也应适当加高一些,常取1100mm。



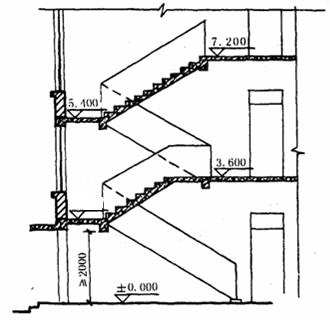
6.楼梯的净空高度
楼梯的净空高度包括楼梯段的净高和平台过道处的净高。
楼梯段的净高是指自踏步前缘线(包括最低和最高一级踏步前缘线以外0.3m范围内)量至正上方突出物下缘间的垂直距离。应大于2.2m。见图5.11
平台过道处净高是指平台梁底至平台梁正下方踏步或楼地面上边缘的垂直距离。应大于2m。见图5.11





二、楼梯位置的确定
楼梯应放在明显和易于找到的部位。
楼梯间应有直接采光和自然通风。
四层及以下的建筑物,楼梯间应放在距出入口小于15 米处 ;五层及以上建筑物底层楼梯间应设出入口。
三、楼梯尺寸计算
在进行楼梯构造设计时,应对楼梯各细部尺寸进行详细的计算。现以平行双跑楼梯为例说明楼梯尺寸的计算方法。如图:

根据层高H和初选步高h 定每层步数N: N=H/h。
根据步数N和步宽b决定梯段水平投影长度L :L=(1/2N-1)xb
确定梯井宽度C。
根据楼梯间开间净宽A 和梯井宽C 确定梯段宽度a :a=(A-C)/2,
检验其是否满足紧急疏散人流股数要求(调整C)。
根据初选中间平台宽D1(D1a)和楼层平台宽D2(D2 >a)以及梯段水平投影长度L 检验楼梯间进深净长度B,D1+L+D2=B。
规定:在B值一定,如尺寸有余,一般可加宽b值和D2值。
楼梯间有两种形式,一是通行式,二是非通行式,对于通行式必须保证平台梁底面至地面的净高2000mm。