超高层建筑多设计为框架核心筒结构,根据高度的不同,又主要有两种:
类型1:内筒为钢筋混凝土核心筒结构+外筒巨柱,巨柱与核心筒之间钢梁连接,外筒楼板为组合楼板的形式,如:广州西塔、上海环球、深圳京基100大厦、广州东塔,均为该结构形式,高度均在400米以上。
类型2:内筒为钢筋混凝土核心筒+外筒巨柱,巨柱与核心筒之间为钢筋混凝土梁连接,楼板为普通的钢筋混凝土楼板,如:重庆环球、广州高德、目前正在投标的合肥华润置地万象城的东、西塔楼。建筑高度约在200~400米。
超高层建筑的施工涉及到建筑施工领域较多的施工技术课题,主要有以下几方面:
☆ 选择确定合适的施工工艺流程和合理选择模板、围护架体系。
☆ 高强、高性能混凝土、钢管混凝土等的施工质量控制。
☆ 垂直运输设备的选择。
☆ 各专业工程的合理插入施工时间。
☆ 总承包方涉及的多工序、多工种交叉作业时的管理与协调。
二、工艺顺序确定
类型1:前述类型1,外框结构为钢梁的结构形式,适合核心筒墙体竖向结构先行施工,楼板等水平结构滞后施工,外框钢结构及梁板滞后核心筒结构数层进行施工。
钢梁与核心筒连接采用预埋件焊接耳板的连接形式。
核心筒内梁筋需预留套筒,楼板钢筋可采用预留胡子筋的形式,局部错位、漏埋可采用植筋。
外框楼板为组合楼板。
类型1工程实例照片
核心筒领先外框数层:

压型钢板组合楼板:

核心筒外埋件及耳板:

板筋预留:

如前述类型1
核心筒先行施工的优点是,能很好解决多工序交叉作业提供工作面问题。
核心筒墙体结构为第1个施工作业面
内筒水平结构为第2个施工作业面
钢结构柱和钢梁为第3个施工作业面
外框筒组合楼板施工为第4个施工作业面
外侧幕墙分段施工形成第5个施工作业面
下部楼层砌筑和精装工程适时插入施工为第6个施工作业面
由此,一座超高层内多道工序可以一同施工,有互相独立,互不干扰,并且提供多个施工作业面,有利于加快施工进度。
类型2:
前述类型2,由于外框筒结构为钢筋混凝土结构,理论上不适合核心筒先行施工的施工工艺,理由有:
(1)、外筒梁板钢筋需全部同截面断开,对结构受力性能影响较大,很难征得设计同意。
(2)、普通钢筋混凝土楼板需支模施工。 结论:前述类型2的超高层结构比较适合采取内外筒一起同步施工的形式。
类型2工程实例照片
重庆环球金融中心、广州高德均为内外框筒一同施工:




三、模板、围护系统选用
目前,可用于超高层建筑施工的模板及围护系统有:
(1)、爬模系统
(2)、滑模系统
(3)、顶模系统
上述三种模板体系均可用于类型1的核心筒墙体结构先行施工的工艺。
(4)、传统翻模+爬架围护系统的工艺
该工艺适合类型2内、外筒同时施工的工艺。
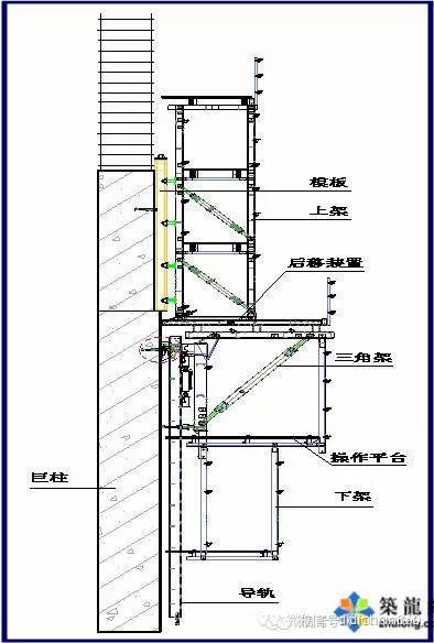
爬模系统特点介绍:
爬模系统有专业厂家生产,构件设计为标准件,可厂家租赁,使用完毕后厂家可以回收。
爬模由下架、上架、附墙挂座、导轨、液压油缸系统、模板、护栏等组成。
爬模的原理是,根据墙体情况,布置机位,每个机位处设置液压顶升系统,架体通过附墙挂座与预埋在墙上的爬锥连接固定,爬升时先提升导轨,然后架体连同模板沿导轨爬升;

爬模系统的特点:
(1)、液压爬模可整体爬升,也可单榀爬升,爬升稳定性好。
(2)、操作方便,安全性高,可节省大量工时和材料。
(3)、爬模架一次组装后,一直到顶不落地,节省了施工场地,而且减少了模板、特别是面板的碰伤损毁。
(4)、液压爬升过程平稳、同步、安全。
爬模的安装:

爬模外防护架:

(5)、提供全方位的操作平台,施工单位不必为重新搭设操作平台而浪费材料和劳动力。
(6)、 结构施工误差小,纠偏简单,施工误差可逐层消除。
(7)、爬升速度快,可以提高工程施工速度。
(8)、模板自爬,原地清理,大大降低塔吊的吊次。
爬模,外围钢板网:

整体效果,外围护也可为安全网

总体说:爬模系统具有操作简便灵活,爬升安全平稳,速度快,模板定位精度高,施工过程中无需其他辅助起重设备的特点。
但一般机位较多,整体性不够好,承载力也不大。以QPM-50型液压自爬模系统为例,其性能参数如下:
爬模液压油缸参数表:

架体平台尺寸参数表:

爬模系统的爬升流程(过小于150mm的变截面):



1、绑扎钢筋完成2、退模、安装附墙挂座3、导轨提升



4、调节附墙撑,下架体倾斜 5、导轨提升到位,提升架体 6、合模浇筑混凝土
爬模能容易适应较薄的墙厚变化,但墙体突变时适应困难。
滑模系统特点介绍:
滑模施工工艺在国内始于20世纪40年代, 已广泛应用于钢筋混凝土的筒壁结构、框架结构、墙板结构。对于高耸筒壁结构和高层建筑的施工,效果尤为显著。
滑模施工技术是混凝土工程中机械化程度高、施工速度快、场地占用少、安全作业有保障、综合效益显著的一种施工方法。
滑模系统原理图:


滑模系统目前常见主要用于烟囱、矿井、仓壁等工程施工,也可用于超高层核心筒竖向墙体施工,但由于其施工过程非常紧凑,在混凝土凝固前必须向上滑动模板,混凝土凝固以后则无法滑动,且由于在混凝土凝固前滑动模板,使混凝土结构表面的观感和结构的垂直度控制方面有较大困难,个人观点认为不太适合用于超高层建筑核心筒的施工。
滑模系统工程应用实例照片:





顶模系统采用大吨位、长行程的双作用油缸作为顶升动力,可以在保证钢平台系统的承载力的同时,减少支撑点数量,顶模系统的支撑点数量为3~4个,配以液压电控系统,可以实现各支撑点的精确同步顶升,顶模工艺为整体提升式,低位支撑,电控液压自顶升,其整体性、安全性、施工工期方面均具有较大的优势。
顶模系统组成:
顶模系统主要由:支撑系统、液压动力系统、控制系统、钢平台系统、模板系统、挂架系统六大部分组成。
顶模系统组成图:

(1)、支撑系统包括上支撑箱梁、下支撑箱梁、支撑钢柱,支撑箱梁上设置有可以伸缩的小牛腿。
(2)、液压动力系统包括:主油缸、牛腿伸缩小油缸,每个支撑点有1个主油缸和8个小油缸。
(3)、控制系统由:油泵、控制台、控制电路、油路、各种控制阀门组成。
(4)、钢平台系统:为型钢组合焊接而成的桁架式钢平台,通常由一、二、三级桁架组成。
(5)、模板系统,由定型大钢模板组成,模板配制时应充分考虑到结构墙体的各次变化,制定模板的配制方案,原则是每次变截面时,只需要取掉部分模板,不需要在现场做大的拼装或焊接;
(6)、挂架系统,由多组可水平调节的移动式挂架组成,挂架采用钢制横、竖方通及钢板网组成。
顶模系统竖向功能分区:
顶模系统竖向功能分区图

顶模系统工程实施照片:
大钢模板安装:

钢平台安装:

支撑钢柱安装:

支撑油缸伸出:

顶模整体效果:

顶模系统优点介绍:
(1)、顶模系统适合用于超高层建筑核心筒的施工,顶模系统可形成一个封闭、安全的作业空间,模板、挂架、钢平台整体顶升,具有施工速度快、安全性高、机械化程度高节省劳动力等多项优点。
(2)、与爬模系统等相比较,顶模系统的支撑点低,位于待施工楼层下2~3层,支撑点部位的混凝土经过较长时间的养护,强度高,承载力大,安全性好,为提高核心筒施工速度提供了保障。
(3)、顶模系统采用钢模可提高模板的周转次数,模板配制时充分考虑到结构墙体的各次变化,制定模板的配制方案,原则是每次变截面时,只需要取掉部分模板,不需要在现场做大的拼装或焊接。
(4)、与爬模相对比,顶模系统无爬升导轨,模板和脚手架直接吊挂在钢平台上,可方便实现墙体变截面的处理,适应超高层墙体截面多变的施工要求。


(5)、精密的液压控制系统、电脑控制系统,使顶模系统实现了多油缸的同步顶升,具有较大的安全保障。
(6)、施工速度快,每次顶升作业用时仅为2~3个小时,模板挂架标准化,随系统整体顶升,机械化程度高等特点,可创造2-3天/层的施工速度(主要视工程量大小而进度有所不同)。
(7)、顶模系统钢平台整体钢度大,承载力大,平台承载力达10kN/㎡,测量控制点可直接投测到钢平台上,施工测量方便。
(8)、大型布料机可直接安放在顶模钢平台上,材料可大吨位(由钢筋吊装点及塔吊吊运力而确定)直接吊运放置到钢平台上,顶模系统可方便施工,提高效率,减少塔吊吊次,是爬模等其他类似系统所无法比拟的。

顶模系统特点介绍:
顶模系统目前无专业厂家生产提供,需要根据工程特点不同进行针对性设计。
主要涉及到的技术问题有:
1、顶模系统支撑点位置的合理布置,会涉及到与塔吊位置相碰,如何合理避让的问题。
2、顶模钢平台桁架的布置要既有利于系统受力安全,又能尽可能少影响钢结构的安装。
3、顶模的爬升步距需与塔吊协调一致,并尽可能方便施工。
4、顶模系统的设计应考虑尽可能减少后期结构变动,顶模系统的变更改造方便。
传统翻模+自爬架工艺:
前述类型2,采取内外框筒一同施工的工艺,为尽可能加快施工进度,模板支撑体系可考虑采用新型模板体系,如:可调立杆盘扣式满堂脚手架,铝合金模板系统等快拆体系。
外围护系统可考虑采用目前国内应用较为成熟的专业厂家生产的爬架或建筑保护屏。
盘扣式满堂脚手架:



集成式升降操作平台爬架工程实例照片:



建筑保护屏工程实例照片:


四、高强、高性能混凝土的施工
超高层建筑的施工常会用到高强、高性能混凝土,如:广州西塔和深圳京基100大厦设计都用到了C80的高强混凝土,钢管内浇筑高抛自密实混凝土,混凝土的超高泵送等是超高层混凝土施工的技术课题。
主要涉及:
(1)、优化配合比,通常说来,混凝土强度越高,其粘性越大,可泵性能越差,需要通过反复适配,确定最优配合比,在保证混凝土强度的同时,有良好的工作性能。可联合混凝土生产厂商做该项工作。
施工时应重点控制,混凝土生产时所用材料是否符合要求,现场抽测混凝土的塌落度,扩展度,温度,倒筒时间等。
(2)、超高层经常会设计用到钢管混凝土,由于钢管混凝土的特殊性,我司所建工程西塔和深圳京基100都应用了高抛自密实混凝土,辅助人工振捣。
自密实混凝土除控制混凝土的塌落度,扩展度,温度,倒筒时间外,增加U形管的控制指标。
深圳京基100的钢管混凝土更具代表性,其设计为矩形钢管柱,内有横、竖向隔板及钢筋笼。
钢管混凝土的实体检测是一施工难题,目前,施工规范中仍采用超声波检测的方法,但钢管柱内的隔板和钢筋笼会影响超声波检测的结果。
深圳京基100大厦施工中,联合湖南大学尝试采用压电陶瓷法对钢管混凝土进行检测,是对检测方法一种新的尝试。钢管混凝土实体检测有进一步研究的需求。
(3)、关于混凝土的超高泵送,目前,中联重科生产的HBT90.40.572RS泵机及三一重工生产的HBT90CH-2135D泵机都有多栋超高层建筑的施工实例,性能稳定。
注意要点:
☆合理选择泵机,泵机的出口压力和泵送方量参数应能满足泵送高度的需求。
☆应选择满足泵送需求的耐磨超高压输送泵管。
☆注意泵机出口部位水平泵管的长度应大于楼高(泵送高度)的1/4。
☆泵管竖向适当位置设置弯管,可弥补水平段不足。
☆推荐泵管按楼层高度进行配管,离楼板上400~600处有接头,方便接管施工外框楼板。
HBT90.40.572RS泵机:

泵管墙上固定:

泵管水平段固定:

截止阀:

关于高性能混凝土的研究:
广州西塔项目进行了C100高强度混凝土的研究,并成功泵送至411m。
深圳京基100大厦进行了C120高强混凝土的研究,并成功泵送至417m的高度。
五、垂直运输设备的选择
超高层建筑施工,垂直运输设备是保证工期的关键,主要是塔吊和施工电梯的选型和布置需满足施工需求。
塔吊选型要点:
(1)、塔吊满足钢结构吊重需求,吊次分析满足钢构和土建施工进度需求。
(2)、塔吊的布置位置及材料堆场的关系。
(3)、塔吊的容绳量满足建筑高度需求。
(4)、群塔布置满足的安全距离要求。
(5)、塔吊基础的设计、塔吊爬升规划、塔吊拆除措施等。
施工电梯选型要点:
(1)、施工电梯运力分析需满足人员上下班高峰期运人需求,材料运输能力满足施工进度需求。
(2)、施工电梯布置位置尽量对后期施工影响最小。
(3)、施工电梯分段管理,划分停靠楼层,提高效率。
(4)、选择高速电梯,电梯的电机性能直接影响电梯的性能,选择有实力的生产厂家。
(5)、施工电梯梯笼尺寸及运载重量可以综合考虑满足运输幕墙板块及机电设备的需求。
(6)、楼层过高,电压降对施工电梯的影响,电缆线防卷问题。
六、各专业工程的插入施工
外框楼板插入施工

砖砌筑插入施工

幕墙工程插入施工

机电安装插入施工

机电安装插入施工

防火涂料插入施工
七、总承包方的协调管理
超高层建筑施工,涉及到各专业分包、甲指分包的劳务队伍数量众多,协调管理难度大,主要以下方面。
(1)、安全管理
(2)、消防管理
(3)、各专业队伍之间塔吊使用的协调分配
(4)、各专业队伍之间施工电梯使用的协调分配
(5)、对幕墙单位、永久电梯施工单位、防火涂料单位等专业分包单位的协调管理。
八、总结超高层建筑施工的重难点
超高层建筑的施工常见的重、难点问题:
(1)、一般超高层建筑工程地址处于城市繁华地段,施工用地紧张,材料堆场狭小,堆场的合理布置、管理是难点。
(2)、基坑周边会存在建筑物、管线、地铁等设施,对周边环境影响的监控是重难点。
(3)、超高层建筑高度超高,工作面多、分布广,安全、消防体系庞大,管理困难。
(4)、施工过程中专业穿插多,总包管理工作内容繁琐,协调工作量大。
(5)、超高层测量精度要求高,对施工过程中建筑物变形监控检测是施工重难点。
(6)、部分超大钢构件安装是重难点。