一、模板阴角加固
双排钢管长短错开200MM。双向钢管十字相交扣件锁死,阴角处 2根木方横放,十字交错钢管加固阴角处木方,空隙用木楔子顶严。

节点做法图

实体照片
长边模板伸出一个木方长度,放一根木方钉一起,这样横向可以用钢管加固,这样解决了因为加固引起的截面变形,拼缝漏浆。

节点做法图

实体照片
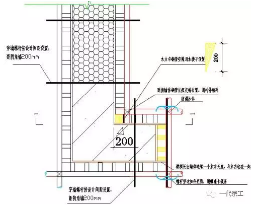
二、外墙、楼梯间和电梯井混凝土竖向墙体接槎
结构露面的混凝土墙体顶部侧面100mm处预留对拉螺栓,间距不大于500mm,混凝土浇筑成型后,侧面接缝处下部贴3mm厚15mm宽的双面胶带;模板下挂100mm(赔模式要考虑下挂长度),保证接缝处模板与混凝土充分搭接;预埋对拉螺栓杆处加设水平双钢管背楞,竖向木方背楞安装长度要超过预埋对拉螺栓杆中心150mm;上层第一道对拉螺栓杆中心应设置在距地面结构标高200mm的位置,其余四道对拉螺栓杆根据模板展开图依次设置。

节点做法图

实体照片
三、构造柱
根据施工图纸对砌体工程的构造柱进行深化设计,确定构造柱的位置与截面形状;构造柱位置处植筋并绑扎钢筋,注意箍筋抗震加密区的间距;砌筑马牙槎根据砌筑边线先退后进,退进尺寸为60mm,马牙槎的高度不超过300mm,上下垂直;马牙槎贴双面胶带,模板用对拉螺栓固定每排两根,保证墙体不漏浆;模板支设高度一次到顶,在便于浇筑的一侧设置喇叭口;混凝土浇筑时一次到位,与梁底密室不留缝隙,拆模后将喇叭口剔除。

节点做法图

实体照片
四、空心砌块水电线、盒的安装
4.1利用砌块孔洞暗敷法
竖向管线利用孔洞穿行,砌块最好选用双排孔空心砌块;盲孔砌块尽量保留封底;砌筑和穿管线应配合进行;横向管线埋设必须配合切割开槽;埋设管线开的槽、孔必须做好回填、密封,并采取必要的防裂措施。


4.2电器开关、电箱预制块
电器开关、电箱采用混凝土预制块预埋处理,提前将开关预埋到符合墙体砌块模数的混凝土预制块中,包括接开关盒的线管,线管长出混凝土模块150mm。然后砌筑时把砌块底部钻孔把线管连接到梁下线管接头。

4.3电器开关、电箱预制块
线盒内填木屑,用塑料胶带包裹严密;采用直径8长300的钢筋头穿过线盒固定孔成框架,卡住线盒;用扎丝将线盒固定框绑扎在墙体钢筋网片上,要求定位准确;线盒处墙体钢筋网片焊接2根直径12长度与墙等宽的限位钢筋使线盒外表面与限位钢筋端头平齐,保证线盒外露面跟模板紧密解除,且钢筋网片的保护层厚度要满足规范要求15MM;模板拆除后,将木屑拿掉,用铁丝穿尼龙线检查管洞是否贯通,然后用挤塑板将线盒封掉。

五、可抽拉板条式楼梯
消除施工缝夹渣,采用施工缝外侧底板留缝二次封板,确保施工缝二次浇捣在混凝土接口处垃圾全部冲洗干净,再插上封板浇混凝土,拆模后无夹渣现象。


六、梁柱核心区箍筋定型化施工工法
采用核心区箍筋定型化施工工法的工艺,梁柱节点核心区柱子箍筋在板面以上排好间距,核心区箍筋四角用钢筋焊接成型,并临时绑扎固定。然后进行梁钢筋架空绑扎,梁绑扎过程中先绑扎短跨方向主梁,再绑扎长跨方向主梁,最后绑扎次梁,当所有主次梁均绑扎完毕后,松开固定好的定型箍筋和临时支架,使定型箍筋及主次梁整体下落,然后适当修整,完成钢筋绑扎。


6.1工艺流程
核心区定型箍筋的焊接成型和临时固定绑扎短跨方向主梁绑扎长跨方向主梁绑扎次梁定型箍筋和主次梁整体下落修整完善钢筋绑扎验收
6.2操作要点
1)定型箍筋的焊接成型和固定
先把梁柱节点核心区的柱子箍筋按照图纸设计间距和规范要求排好,核心区箍筋四角用C10钢筋焊接牢固成型,并用扎丝临时绑扎固定在板面以上的框架柱竖筋上。
2)绑扎短跨方向主梁
固定好所有定型箍筋后,开始架空绑扎短跨方向的主梁,根据主梁的高度确定梁上下排主筋的位置,并将梁用临时钢管架架空绑扎箍筋至梁成型。
3)绑扎长跨方向主梁
短跨方向主梁绑扎完成后,开始架空绑扎长跨方向主梁,将梁用临时钢管架架空绑扎箍筋至梁成型。
4)绑扎次梁
在所有主梁均绑扎完毕后,开始架空绑扎次梁,将次梁用临时钢管架架空起来开始绑扎箍筋至次梁成型。
5)定型箍筋和主次梁整体下落
当所有主次梁均绑扎完毕后,用塔吊将梁吊住松开定型箍筋的扎丝,依次撤掉架空梁下方的钢管架,塔吊配合使主次梁整体缓慢下落到梁模板中。
6)完善修整
所有主次梁下落到梁模板中后,仔细检查每一道梁,是否有钢筋间距改变,然后修整并按方案及规范要求加设梁底垫块,确保钢筋绑扎成型规范,符合设计及规范要求。
7)验收
梁钢筋绑扎成型后按图集规范及设计要求进行整体验收。
七、槽钢加固框架柱模板体系施工工法
通过定尺胶封双面覆膜模板与定位钻孔槽钢和高强螺杆组合的加固方式,来加固框架柱,柱截面尺寸已被材料的尺寸牢牢锁定,只有达到要求后方能把框架柱模板合拢,槽钢作为主龙骨还能作为第二道尺寸锁定的材料。槽钢作为主龙骨相对钢管接触面大,不易变形磨损,强度高,双面覆膜模板对于混凝土的表观质量起到决定性的作用。通过外控截面尺寸及垂直度,内控表观质量,来解决混凝土常见的质量通病,确保一次成优。



7.1工艺流程
场内材料控制进场材料质量验收模板支模限位措施模板安装与加固
7.2模板安装与加固
1)柱模采用15mm覆膜木模板,柱模板根据截面尺寸需求,场外工厂化统一加工成型,现场安装。模板采用木方及单肢槽钢加固。为了避免漏浆,在阳角拼缝处加设双面胶带,为了加固方便快速和保证模板体系的牢固,柱箍采用[10进行加固,对截面为1100*1100、1200*1200的柱子,加设一根对拉螺栓。竖向背木方采用4090mm木方,间距不大于100mm。
2)按柱模板设计图的模板位置,由下至上安装模板,模板之间用楔形插销插紧。为了防止模板底面漏浆,安装柱模前,在柱模定位线外圈先垫好塞海绵条。
3)模板涂刷脱模剂后,定尺模板合模,如框架柱钢筋有尺寸偏差,模板不会合拢,需提前进行,钢筋的调整,不要强行挤压模板,造成模板面层破损,会对表观质量造成影响。
4)木方龙骨间距不宜超过100MM,木方侧面用小钉与模板固定,确保模板的受力均匀,木方表面顺直,不能有缺陷,裂缝,发现不合格木方及时调换。
5)槽钢加固时,按柱子大小确定好对应的型号的槽钢,从柱子根部150MM 起开始加固,柱箍:小于800采用单肢10#槽钢,柱全高间距500mm。850-950采用单肢10#槽钢,柱全高间距400mm。1000-1200采用单肢10#槽钢,柱全高间距400mm.柱中间加设穿墙螺杆一道。
6)用线坠在两面检测垂直度。周边搭设钢管架,利用预埋地锚为支点进行支撑校正。保证螺栓孔能顺利穿入螺杆,如钻孔距柱边大于105MM或螺杆穿不进去即为不是本柱子所应该使用的槽钢,槽钢紧贴木方龙骨,穿入螺杆,调整位置后螺母拧紧。详见柱模板支设示意图;

7)加固后,用砂浆将柱根部孔洞堵密实。浇筑完砼后,拆卸槽钢时需用毛刷子除掉表面掉落浮浆。应注意砼浇筑时,从柱根部起2m附近,浇筑速度放缓。
八、卫生间降板施工质量成优
卫生间降板在采用木模板情况下,模板切割尺寸和材料刚度难以控制,降板部位模板材料全部改用50504mm方钢和∟50503mm角钢(卫生间降板高度50mm),利用钢制模板刚度高,不易变形的特点,结合方钢和角钢尺寸固定的特性,组合设计降板部位模板,这样既保证了卫生间内净尺寸,又保证了模板体系的刚度。
钢制模板接头节点处采用螺栓连接
相邻方钢在接头节点部位通过∟50503mm角钢连接,距离方钢边缘50mm焊接角钢,角钢上部使用钻机打孔,采用M10螺栓固定相邻方钢。部分接头节点处方钢采用焊接(如若转角部位全部采用焊接,轮廓较大,不方便搬运,不易拆除,见下图),方钢端部木方填塞封闭。

钢制模板定型化,采用特制马凳定位
根据标准层降板部位的实际尺寸,依次量身制作定型化钢制吊模,降板部位四边均采用方钢做模板,接头节点处角钢用螺栓紧固封闭。现场钢筋绑扎完成后,在作业面组装钢制吊模,根据卫生间四周梁边定位控制线确定吊模位置。
采用直径12钢筋制作钢筋马凳,马凳两端焊接8竖向限位钢筋,水平间距200mm左右,高度30~40mm,小于降板高差,防止混凝土浇筑完成后限位钢筋外漏。马凳放置在吊模接头节点部位(马凳支腿端部采用防锈油处理,防止返锈),竖向限位钢筋紧贴方钢外侧,调整完成后,马凳筋与板筋点焊牢固,防止混凝土浇筑发生偏移,至此吊模安装完成(见下图)。

通过上述措施既保证了吊模的整体性,又可随时整拼整拆。通过钢制吊模的定型化可以杜绝偏位、涨模等现象的发生,保证了混凝土构件成型质量,截面尺寸。且吊模一次成型后,可层层周转使用,减轻模板安装施工时劳动强度,提高工作效率。