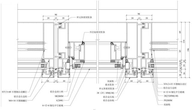
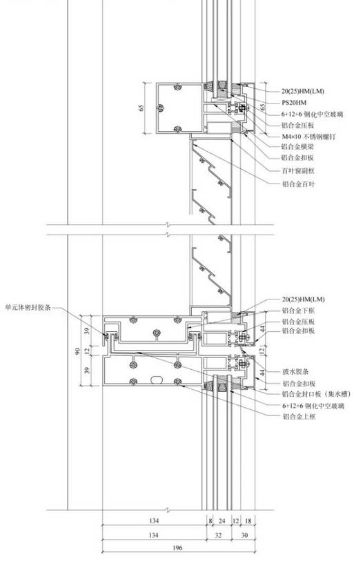
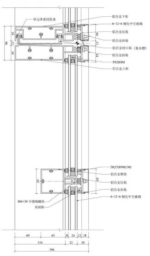
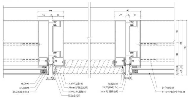
(1)骨架。
由纵向立柱和横档组成,它是用来支撑玻璃、固定玻璃,并通过连接件与墙体结构相连。它将玻璃的自重和风荷载及其他荷载传给主体结构,使玻璃与墙体结构连成一整体。
① 型钢骨架:
型钢做玻璃幕墙的骨架,玻璃镶嵌在铝合金的框内,然后再将铝合金框与骨架固定。型钢组合的框架,其网格尺寸的适当可适当加大,但对主要受弯构件,截面不能太小,挠度最大处宜控制在5mm以内。否则将影响铝窗的玻璃安装,也影响幕墙的外观。
② 铝合金型材骨架:
用特殊断面的铝合金型材作为玻璃幕墙的骨架,玻璃镶嵌在骨架的凹槽内,玻璃幕墙的立柱与主体结构之间,用连接板固定。安装玻璃时,先在立柱的内侧上安铝合金压条,然后将玻璃放入凹槽内,再用密封材料密封。支承玻璃的横梁略有倾斜,目的是排除因密封不严而流入凹槽的雨水,并将外侧盖封住。
(2)玻璃是建造玻璃幕墙的关键材料。它直接制约幕墙的各项性能,同时也是幕墙艺术风格的主要体现者,因此选用玻璃是幕墙设计的主要内容,如果玻璃选用不当会产生相当严重的后果。要根据使用要求分别选用孵化玻璃、吸热玻璃、钢化玻璃、热反射镀膜玻璃、低辐射镀膜玻璃以及由这些单层玻璃组合成的夹层玻璃和中空玻璃。
① 浮法玻璃:
浮法玻璃生产的成型过程是在通入保护气体(N2及H2)的锡槽中完成的 。熔融玻璃从池窑中连续流入并漂浮在相对密度大的锡液表面上,在重力和表面张力的作用下 ,玻璃液在锡液面上铺开、摊平、形成上下表面平整、硬化、冷却后被引上过渡辊台。辊台的辊子转动 ,把玻璃带拉出锡槽进入退火窑,经退火、切裁,就得到平板玻璃产品 。浮法与其他成型方法比较, 其优点是 : 适合于高效率制造优质平板玻璃 , 如没有波筋 、 厚度均匀、上下表面平整 、互相平行 ;生产线的规模不受成形方法的限制 ,单位产品的能耗低 ; 成品利用率高; 易于科学化管理和实现全线机械化 、自动化 ,劳动生产率高;连续作业周期可长达几年,有利于稳定地生产 ;可为在线生产一些新品种提供适合条件,如电浮法反射玻璃 、退火时喷涂膜玻璃、冷端表面处理等。
② 吸热玻璃:
吸热玻璃是能吸收大量红外线辐射能、并保持较高可见光透过率的平板玻璃。生产吸热玻璃的方法有两种:一是在普通钠钙硅酸盐玻璃的原料中加入一定量的有吸热性能的着色剂;另一种是在平板玻璃表面喷镀一层或多层金属或金属氧化物薄膜而制成。
③ 钢化玻璃:
钢化玻璃机械强度是普通退火玻璃的3倍以上,破碎后成小钝角颗粒,对人体不会造成重大伤害,弯曲强度高比普通玻璃大3倍~4倍,能承受的温差是退火玻璃的2.5倍~3倍,属于法定安全玻璃,热稳定性好,广泛应用于对机械强度和安全有较高要求的地方。
④ 热反射镀膜玻璃也称阳光控制膜玻璃:
是在优质浮法玻璃表面,镀一层或多层金属化合物薄膜而形成。它能有效控制太阳直接辐射能入射量,具有丰富多彩的反射色调和极佳的装饰效果,良好的室内和建筑结构体遮避功能,同时有较理想的可见光透过率和反射率,还可以减弱紫外光的透过。
⑤ 低辐射镀膜玻璃:
低辐射镀膜玻璃(LOWE玻璃)是在优质浮法玻璃表面镀数层低辐射料及其它金属化合物薄膜而形成。所谓低辐射是因为此镀膜层具有极低的表面辐射率而得名。它可阻隔热量从热的一端向冷的一端传递。即冬季阻止室内的热量泄向室外,夏季阻止室外热量进入室内。对来自阳光中的红外热辐射部分有较高的反射率,对阳光中的可见光部分则有较高的透过率。LOWE玻璃可获得较高的可见光透过率和较低的反射率,能有效避免光污染,改善室内采光。因膜层保护及控制传热的需要,L0w-E玻璃必须做成中空玻璃使用。用LOWE玻璃制造的中空玻璃,可同时起到控制阳光直接辐射和大幅度降低玻璃综合传热系数的作用。而且LOWE中空玻璃是很好的节能玻璃产品。
⑥ 高强度单片铯钾防火玻璃:
高强度单片铯钾防火玻璃是可用于建筑外墙的高强度高安全性防火玻璃,它的强度为钢化玻璃的15倍。破碎颗粒比钢化玻璃小,耐火极限达1h~3h以上,耐候性与普通浮法玻璃相同。由于其具有的安全、防火卓越的性能,已广泛应用于工程中。
⑦ 夹层玻璃:
夹层玻璃是在玻璃之间夹上坚韧的聚乙烯醇缩丁醛(PVB)中间膜,经高温高压加工制成。因此当夹层玻璃受到超常外力而破碎时,玻璃碎片会牢牢粘附在PVB中间膜上,不会有尖锐的玻璃碎片脱落或指向玻璃面以外,这使与其接触的人(特别是青少年)被碎玻璃刺伤划伤或砸伤的可能性几乎降为零。PVB膜会吸收大量的冲击能、并使之迅速衰减。当采光天棚、天窗、吊顶及架空地面采用夹层玻璃时,即使玻璃破碎也全无散落下坠伤人之虞。PVB胶膜对声波的阻碍作用,使夹层玻璃能有效地阻挡声音的传播,减低噪音。夹层玻璃对紫外线有极高的隔断作用(高达99%以上),有助于避免室内贵重家具窗帘、陈列品或其它物品受紫外线辐射的影响。
⑧ 中空玻璃:
中空玻璃是由两片或多片玻璃,以内部充满高效分子筛吸附剂的铝框间隔出一定厚度的空间,边部再用高强度密封胶密封粘合而成的玻璃组件。中空玻璃密封空间内的空气构成一道隔热、隔音屏障。若在该空间中充入惰性气体,还可进一步提高产品的隔热、隔音性能。
(3)附件(连接与安装配件):玻璃墙的主要附件有膨胀螺栓,铝拉钉、射钉、密封条材料及连接件。其最主要的构造分为两部分:一是作为饰面的玻璃,二是固定玻璃的骨架,只有将玻璃与骨架相连接,玻璃才能成为幕墙,骨架支撑玻璃并固定玻璃,然后通过连接体与主体结构相连,将玻璃的自重及墙体所受到的荷载及其他荷载传递给主体结构,使之与主体结构融为一体。














