1.楼梯段宽度
依据:人流量大小、安全疏散、搬运物品等。
要求:
a:一般900mm;作为疏散楼梯时至少满足两股人流通行(每股人流500~600mm)
b:住宅1.1m;公共建筑1.3m。
c:梯段宽>1.4m时增加靠墙扶手,>2.2m时增加中间扶手。

2.楼梯踏步尺寸(决定了楼梯的坡度)
依据建筑物用途、行走舒适、面积经济等。



楼梯踏步尺寸经验公式:
h + b = 450mm
2h + b = 600~620mm(步幅)
b = 260 ~ 300mm
h = 150 ~ 175mm
踏步常用高度尺寸
踏步的高度,成人以150mm左右较适宜,不应高于175mm。
踏步的宽度(水平投影宽度)以300mm左右为宜,不应窄于260mm。
为了在踏步宽度一定的情况下增加行走舒适度,常将踏步出挑20~30mm。

3.楼梯平台宽度
指踏步边到内墙面距离(不含扶手宽度)。
依据:建筑物用途、搬运家具、梯段宽度等。
要求:
a:平台不应小于楼梯段的宽度;通行担架的平台宽度不小于1800mm。
b:有门向平台方向开启时平台宽度应加大
c:对于开敞式平面的楼梯,平台宽度可以不受梯段通行宽度的限制,因可以借用走廊的宽度。但要留至少500mm的缓冲距离
d:对于不改变行进方向的中间休息平台,平台深度可以不受通行宽度的限制


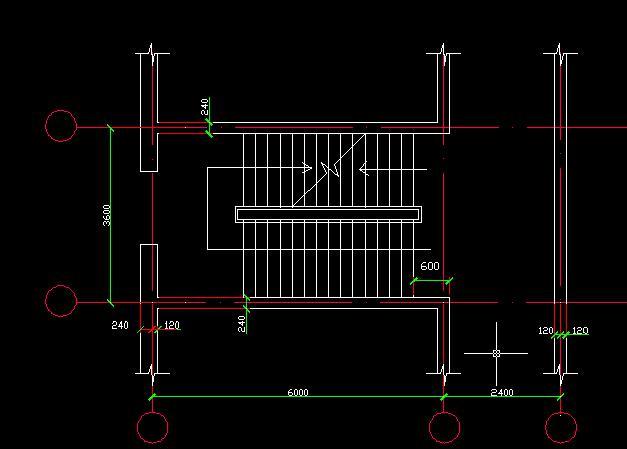
4.楼梯井宽度
平行两梯段之间的空挡,从底层到顶层贯通。以60~200mm为宜。 (梯梁的安装方便、设置缓冲地带)
5.栏杆、扶手高度
指踏步前沿至扶手顶面的垂直距离
依据:使用对象、楼梯坡度等。
要求:
室内高度900mm;
水平段高度1000mm;
室外高度1050mm;
儿童扶手高度500~600mm。


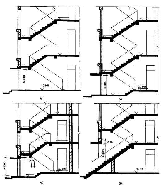
6.楼梯净空高度
平台下或梯段下通行人或物件时应需要的竖向净空高度
(1)梯段下净空高度2.2m。
(2)平台下净空高度2m。


(3)提高楼梯平台下净高的措施
当底层休息平台下设通道,净空高度不能满足要求时:
A.底层梯段做成长短跑。
B.室外台阶内移(降低底层平台下地面标高)。
C.上述两种同时采用。
D.底层做成直跑梯段。

7.楼梯尺寸计算
(1)梯段宽度 B=(A-C)/2
A梯间净宽
C梯井宽(60~200mm)
(2)平台宽度 D梯段宽度B
(3)踏步数量 N=H/h(取偶数)
H层高 h踏步高
(4)梯段长度 L=(N/2-1)b
b踏步宽(260~300mm)

8 楼梯栏杆扶手的高度
一般扶手高度为900mm,儿童使用的楼梯为600mm,栏杆水平段长大于500mm时高度应大等于1050mm。顶层平台的水平栏杆高应1050mm。