一、工程概况
住宅楼最高为30层,八层以下采用搭设双排架的方式,双排架搭架子距离结构外皮300mm,立杆间距1.5米,排距0.8米,步距1.8米。脚手杆必须要放置在稳固的基础上,搭设高度为17.4m。地下部分脚手架等外部防水施工完毕之后立即拆除,进行基槽的回填土施工。
二、脚手架材料要求
所有脚手架搭设的材料必须要挑选强度高、质量合格的产品,应满足以下要求:
1、钢管
(1)脚手架钢管应采用现行国家标准《直缝电焊钢管》GB/T13793或《低压流体输送用焊接钢管》GB/T3091中规定的Q235普通钢管,钢管的钢材质量应符合现行国家标准《碳素结构钢》GB/T700中Q235级钢的规定。
(2)脚手架钢管宜采用48*2.7钢管。每根钢管的最大质量不应大于25.8kg。
(3)钢管应无裂纹、凹陷、锈蚀,钢管外涂刷防锈漆并定期复涂以保持完好。所有进场的脚手架用钢管安排专人按要求逐根检查,符合要求的才能用到本工程,否则按退货处理。
2、扣件
钢管连接必须采用合格的扣件,应使用与钢管管径相配合、符合我国现行标准的可锻铸铁扣件,其材质应符合现行国家标准《钢管脚手架扣件》(GB15831)的规定,严禁使用加工不合格、锈蚀和有裂纹扣件。扣件与钢管的贴合面必须整形,保证与钢管扣紧时接触良好。扣件活动部位应能灵活转动。进场扣件必须安排专人逐个检查,并按要求进行复试,复试合格之后才能用到本工程上;不合格扣件按退货处理。
扣件螺栓拧紧扭力矩达65Nm时,不得发生破坏。
3、脚手板
木脚手板材质应符合现行国家标准《木结构设计规范》(GB50005-2003)二级材质的规定。脚手板厚度不应小于50mm,两端宜各设置直径不小于4mm的镀锌钢丝箍两道。
禁止使用有扭纹、破裂和横透疖的木板。
4、安全网
立网采用2000目安全网,水平网采用菱形网目锦纶安全网,安全网网绳、边绳、系绳的直径、网眼尺寸、承载能力符合国标《安全网》(GB5725-2009)的规定,同时必须具有产品质量检验合格证。
已使用过的安全网必须经过检查和试验合格后方可使用,超过使用期限的安全网严禁使用。安全网必须使用定点厂家的产品,非定点厂家的产品禁止进入本施工现场。
三、脚手架构造要求及技术措施
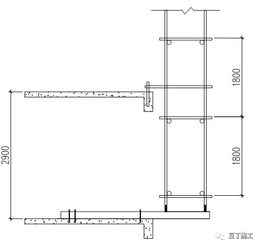
1、脚手架连墙点构造形式
脚手架连墙点的竖向距离为2.9m,水平距离不宜大于4.5m,主楼结构非商业部分,在结构层板面标高的板面预埋钢管,脚手架与钢管进行连接。

2、地上脚手架剪刀撑构造形式
剪刀撑的设置要求整个外观基本一致,所有剪刀撑的夹角基本上一致,主要采用角度大致为60o,剪刀撑斜杆搭接长度大于1000mm,剪刀撑需用油漆上红白相间的安全防护标识,其余脚手架钢管为黄色标识。布置如下图所示。

四、脚手架的搭设方法
1、脚手架搭设顺序
(1)脚手架从地下室回填土后浇筑的混凝土基础上开始搭设,周圈搭设,一直搭设到七层顶板底。
(2)搭设上部脚手架时围绕建筑物通圈设置,保证连成一个整体。
(3)脚手架搭设第三步脚手杆以后开始加设剪刀撑。
2、双排脚手架的搭设
(1)双排架的搭设流程:
地面夯实(或结构楼板)并在上部铺设木跳板摆放扫地杆逐根立立杆并与扫地杆扣紧安装扫地小横杆与立杆和扫地杆扣紧安第一步大横杆与立杆扣紧安装第一步小横杆安第二步大横杆、小横杆加临时斜支撑,上端与第二步大横杆扣紧(在与结构连接后拆除)安第三、四步大横杆、小横杆与结构连结接立杆加剪刀撑铺脚手板绑扎防护栏及挡脚板撑防护网
(2)扫地杆是立杆下端绑扎的纵向和横向的水平杆,离下立杆根部不超过200mm。扫地杆必须用扣件扣牢,它的功能是约束立杆底脚所发生的位移和用来避免或减少脚手架的不均匀沉降,在立杆下部垫脚手板。
(3)纵横杆、剪刀撑、连墙杆、脚手板、防护网的设置设按照脚手架的搭设要求进行。
3、特殊部位的做法
1)脚手架开洞部位的做法:脚手架在施工中需设置通行的门洞口时,采取的构造加固措施是(见下图)。小于3m的洞口采用(a),大于3m洞口采用(b)。洞口上的立杆从洞口上的大横杆开始扣接。门洞出入口处必须搭设防护棚。

2)安全通道及水平安全挡板做法
A、结构施工时通道的搭设必须与外脚手架固定连接,通道搭设形式如下:
(1)通道截面尺寸为4.6m2m。
(2)通道立杆自基础垫层开始为单立杆,立杆下垫50mm厚木脚手板;横杆、水平杆为单钢管;通道斜段在600和1200mm 高处设单钢管作护栏。
(3)通道休息平台用木板搭设,休息平台宽度为1m 。
(4)通道斜段用4m 长的木跳板搭设,在斜段上每间隔300mm 设置50mm 宽木方做防滑条。
(5)通道休息平台及坡道四周均用旧竹胶板设置挡脚板。
(6)通道顶用双层木跳板作安全防护,木跳板下挂密目安全网。
(7)通道所有立面用密目网全封闭。
(8)随结构施工进度自休息平台处将通道横杆位置作适当调整(改口),搭设临时通道通往各施工层,临时通道两侧用钢管搭设1.2m 高(0.6m、1.2m 处各设置一道水平杆)防护栏杆,加设挡脚板并封密目安全网。
B 、护头棚的搭设
(1)在建建筑物的主出入口必须设置护头棚,护头棚要求宽于通道口两侧各1米,长度以建筑物高度确定,24米以下建筑护头棚长度3-6米,24米以上建筑护头棚长度6米,高度以通道口高度为依据,一般高度不超过3米。主出入口的护头棚还应标注安全通道等字样。
(2)建筑物主出入口护头棚两侧立挂密目网封闭。顶棚采用双层防护,上、下层均采用厚度不小于5mm的跳板密拼纵铺,上、下层中间加铺一层密目网或者满铺多层板。上下层间距500mm。

4、装修脚手架的搭设
隔墙砌筑用脚手架:
建筑物层内隔墙砌筑搭设双排脚手架,不得使用单排架。在砌筑的时候上部必须要满铺脚手板。
五、脚手架的搭设要求
(1)脚手架的搭设必须使用扣件,不得使用铅丝和其他材料绑扎。脚手杆件不得钢木混搭。
(2)在搭设之前,必须先放线定位、铺板,对进场的脚手架杆配件进行严格的检查,禁止使用规格和质量不合格的杆、配件。
(3)脚手架的搭设作业之前,工长必须要对工人进行相应的安全和技术交底,施工时必须要严格按照搭设的顺序进行施工。
(4)周圈脚手架搭设应从一个角部开始,并向两边延伸交圈搭设,按定位依次固定,校正立杆垂直之后再予以固定。脚手架各杆件相交处伸出的端头均应大于10cm(且不大于30cm),以防止杆件滑脱。剪刀撑、斜杆等整体拉结杆件和连墙件应随搭升的架子一起及时设置。在设置第一排连墙件前,脚手架应设置一定数量的抛撑;以确保构架稳定和架上作业人员的安全。
(5)立杆搭设要求:
立杆接头除在顶层可以采用搭接外,其余各接头必须采用对接扣件对接。
对接时,对接接头交错布置,两个相邻立杆上接头不能设在同步同跨内,两相邻立杆头在高度方向错开距离不小于500mm,立杆搭接长度不小于1米,且用不少于两个旋转扣件固定,端部扣件盖板的边缘至杆端距离不应小于100mm。各接头中心距主节点的距离不应大于步距的1/3且不大于600mm。(如下图)对接扣件应向上或者向内,不得向下或向外。

脚手架必须设置纵、横向扫地杆。纵向扫地杆应采用直角扣件固定在距底座下皮不大于200mm处的立杆上。横向扫地杆应采用直角扣件固定在紧靠纵向扫地杆下方的立杆上。
(6)纵向水平杆搭设要求:
纵向水平杆设于立杆内侧且在横向水平杆之下,并采用直角扣件与立杆扣紧。
纵向水平杆采用对接扣件连接,对接接头应交错布置,不应设在同步、同跨内,相邻接头的水平距离不应小于500mm,并应避免设在纵向水平杆的跨中。

(7)横向水平杆搭设要求:
每一主节点处设置一根横向小横杆,采用直角扣件扣紧在纵向水平杆上。
操作层上非主节点处的小横杆宜根据支承脚手板的需要等间距设置,最大距离不能大于立杆间距的1/2。
(8)脚手板铺设要求:
脚手板一般应铺设在三根横向小横杆上。且脚手架板两端下面均要有小横杆,杆离板端的距离应不大于150mm,小横杆应放正、绑牢。
脚手板的探头应采用直径3.2mm的镀锌钢丝固定在支承杆上。
施工操作层应沿纵向满铺脚手板,作到严密、牢固、铺平、铺稳,不得有空隙、探头板和飞跳板。必要时应予绑扎固定。不得超过50mm的间隙。架子上不准留单块脚手板。脚手板在纵向的接头可对接铺设和搭接铺设二种(如图)。

脚手板采用对接平铺时,在对接处需设置两根小横杆,脚手板外伸长度应控制在 130~150mm之间。
脚手板采用搭设铺设时,其搭接长度不得小于200mm,且在搭接段的中部应设有支承横杆。铺板严禁出现端头超出支承横杆250mm以上未作固定的探头板。
长脚手板采用纵向铺设时,其下支承横杆的间距不得大于1.2m。纵铺脚手板应按以下规定部位与其下支承横杆绑扎固定:脚手架的两端和拐角处;沿板长方向每隔15~20m;坡道的两端;其它可能发生滑动和翘起的部位。
(9)连墙件设置要求:
脚手架与楼板硬连接,连墙件的水平间距不大于4.5米(即三跨),竖向应每层设置连墙件。
(10)扣件安装要求:
扣件螺栓拧紧力矩不应小于40N.m,并不大于65N.m。对接扣件的开口应朝上或朝内。各杆件端伸出盖板边缘的长度不应小于100mm。
(11)安全网铺设:
脚手架外侧满挂绿色密目网,从二层起在每个楼层下300mm的位置均设置一道水平大眼网,大眼网外侧固定在大横杆下,里侧与结构实体相连接,网外高里低,网下不得堆放任何物料。网要定期清理。一层在回填土完成以后设一道大眼网,下部再设置一道密目网。
(12)剪刀撑设置要求:
剪刀撑从脚手架纵向两端搭起,在外侧立面整个长度和高度上连续设置。
剪刀撑与水平面的夹角60,剪刀撑的底部要插到架子底部,与立杆相交处要加扣件。
剪刀撑采用搭接方式,搭接长度不小于100cm,用不少于两个旋转扣固定,端部扣件盖板边缘与杆端的距离不应小于100mm。
剪刀撑的搭设紧随着脚手架的搭设进行。
(13)施工人员在架上进行搭设作业时,作业面上宜铺设必要数量的脚手板并予临时固定。施工人员必须戴好安全帽、系好安全带,工具及零配件要放在工具袋中。不得单人进行搭设较重杆配件和其它易发生失衡、脱手、碰撞、滑跌等不安全的作业。
(14)脚手板操作面的端头处绑两道防护栏杆,建筑物顶部脚手架要高出屋面女儿墙顶2m,设防护栏杆二道,并立挂安全网防护。
(15)对脚手架进行定期检查,发现有杆件变形、扣件松动、沉降明显等变化及时进行处理。
(16)施工过程中暂时无法铺设脚手板,用来落脚或抓握、把持的杆件均应为稳定的构架部分。位于立杆接头之上的自由立杆不得用作把持杆。每完成一道工序,要相互询问并确认后才能进行下一道工序。
(17)人员应作好分工和配合,传递杆件时应掌握好重心,平稳传递。
(18)架设材料要随上随用,以免放置不当时掉落。收工以前,所有上架材料必须全部搭设上,不要留在架子上,而且要形成稳定结构。
(19)在搭设作业进行中,地面上配合人员应躲开可能落物的区域。
(20)在夜间和光线不足,以及大风四级以上、雨雪天气不得搭设。
六、脚手架搭设质量的检查验收规定
脚手架的结构、尺寸应符合前述的规定和设计要求,个别部位的尺寸变化应在允许的调整范围之内。
拉结点的连接可靠,拉结点处的相交杆件的轴心距节点中心的间距150mm,其中扣件的拧紧程度应控制在扭力矩达到40~60Nm。
脚手架立杆垂直度偏差应1/400,且应同时控制其最大垂直偏差值:当架高20m时为不大于50mm;当架高〉20m时为不大于10mm。
纵向水平杆的水平偏差应1/300,且全架长的水平偏差值不大于20mm。
作业层铺板、安全防护措施等需符合上述的要求。
脚手架的在以下时间,需要经过检查验收合格后,方允许投入使用或继续使用:
1、搭设完毕后;
2、连续使用达到6个月;
3、施工中途停止使用超过15天,在重新使用之前;
4、在遭受暴风、大雨、大雪、地震等强力因素作用之后;
5、在使用过程中,发现有显著的变形、沉降、拆除杆件和拉结以及安全隐患存在的情况时立即停止使用。