一、地下室及屋面防水工程做法
1、地下室底板部分:
工法依据:建筑地下室底板的施工一般需要先浇筑素混凝土(C15,100㎜厚)垫层,垫层一般被视为非结构体系的施工操作平台,当设有柔性防水层时,混凝土垫层会因地基土质不均匀而产生裂缝,裂缝反射会导致与垫层混凝土紧密
粘结的防水层受拉破坏。故《地下工程防水技术规范》GB50108-2008要求地下室底板防水卷材宜空铺、条粘、或点粘。
底板预铺做法:清理垫层空铺铺贴预铺式自粘卷材(需要定位粘结的部位采用冷粘结剂粘结),搭接宽度为100㎜人工去除卷材表面的隔离膜绑扎底板结构钢筋浇筑混凝土结构层。本预铺做法中,因为预铺反粘,故不需要在防水层设置永久性保护层。
2、地下室底板周边模板墙部位:
工法同底板。
3、操作要点及技术要求:
3.1、基层处理:
基层应坚实、干燥、平整、无灰尘、无油污,凹凸不平和裂缝处应用聚合物砂浆补平,施工前清理、清扫干净,必要时用吸尘器或高压吹尘机吹净。地下工程平面与立面交接处的阴阳角、管道根等,均应做成半径为50mm的圆弧。
3.2、一般细部附加处理:
细部如阴阳角、管根部位等用专用附加层自粘卷材及裁剪好的阴阳角自粘卷材在两面转角、三面阴阳角等部位进行附加增强处理,平立面平均展开。方法是先按细部形状将卷材剪好,在细部贴一下,视尺寸、形状合适后,再将自粘卷材粘贴。可辅助火焰加热器烘烤,待其底面呈熔融状态,即可立即粘贴在基层上。附加层要求无空鼓,并压实铺牢。附加层卷材与基层:一般部位应满粘,应力集中部位只需要轻微压贴即可。
阴阳角(此处的阴阳角专指三维交叉部位)在防水层施工中,数量诸多,也是防水层薄弱的部位之一,该处的通常做法是由施工作业人员按照下图方式现场裁剪和安装:

按照上图尺寸放样、裁剪、热合,并通过严格的质量检测。优点:保证防水系统质量。

3.3、大面防水层自粘卷材铺贴:
预铺反粘高聚物改性沥青自粘防水卷材:在已处理好的基层表面,按照所选卷材的宽度,留出搭接缝尺寸(长短边均为80mm),将铺贴卷材的基准线弹好,按此基准线进行卷材铺贴施工,固定主要节点。铺贴后卷材应平整、顺直,搭接尺寸正确,不得扭曲。基层验收后铺贴卷材。铺贴时先将起端固定后逐渐展开,展开的同时揭开剥离纸,铺设时由低向高。
卷材搭接和密封相邻卷材搭接宽度,地下工程一般不小于80mm,接茬处不小于150mm。搭接缝应压实粘牢,边缘用密封膏封闭。
卷材收头立面卷材收头用卷材密封膏封闭。
3.4、缺陷修复
自粘卷材的自粘面受到灰尘污染后,会部分失去自粘结性能,表现为搭接封、收口部位局部翘边、开口等现象。
工程中一旦出现上述情况,必须及时进行修复,修复方法为采用热风焊枪、将热风焊嘴伸入翘边、开口内部,利用热风将自粘橡胶沥青加热融化,然后粘合。
3.5、检查验收冷自粘卷材:铺贴时边铺边检查,检查时用螺丝刀检查接口,发现粘贴不实之处及时修补,不得留任何隐患,现场施工中随时检查,检查并经验收合格后方可进行下道工序施工。
3.6、分工序自检,自检合格后报请总包、监理及建设方按照国标《地下防水工程质量验收规范》(GB 50208-2011)验收,验收合格后及时进行保护层的施工。
二、地下室底板内防水
1、PCC-501水泥基渗透结晶施工工艺流程

2、施工操作要点
(1)基面处理
凿去基面松动、空鼓的混凝土,对于非常光滑的基面要打磨粗糙。
清理基面的尘土和其它垃圾。
清除基面的严重油渍。
(2)基面润湿及冲洗
用高压水枪将处理后的基面清洗干净,同时进行充分润湿。
(3)细部处理
砼裂缝:先延裂缝开2cm2cm的U形槽,然后清洗干净涂刷PCC-501一遍,涂层终凝后用PCC-501材料半干团填平压实。
砼漏点:先将混凝土凿开找到真正的漏点,然后用PCC-501材料半干团填堵压实.
管根、固定件:将部件周边开2cm2cm的U形槽,清理干净后涂刷PCC-501一遍,待涂层初凝后用PCC-501半干团填平压实,(套管式穿墙管见图2)。
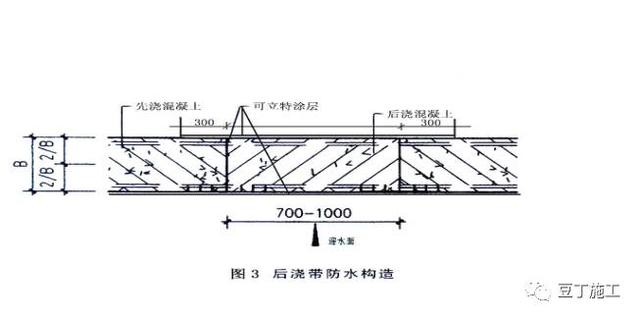
后浇带:在浇筑后浇带混泥土前干撒可立特防水材料,用量每平方米2kg。混泥土终凝后在地下室内侧沿后浇带涂刷两遍,每边超出后浇带30cm(见图3)。
变形缝、桩头、穿墙螺杆详见后图。
(4) 拌料
PCC-501防水材料的调配溶剂为干净水,调配比例为水:粉料=2:5(重量比);调配方法是将粉料慢慢地倒入干净水中,同时不停地搅拌至浆糊状,搅拌好的材料中不得有干粉料球;每次搅拌材料不益太多,并保证每次拌好的材料能在20分钟之内用完。
(5) 涂刷
将调配好的材料浆糊直接涂刷在湿润(但不得有明水)的混凝土基面上,材料用量约为1.2kg/m2,涂层厚度应大于0.8mm。涂刷分两遍完成,第一遍涂层初凝后进行第二遍涂刷,若第一遍涂层已经泛白,应用雾状水将涂层润湿后再进行第二遍涂刷。
(6)养护
当涂层终凝后,如果开始泛白就应用雾状水养护(但不能有积水),并保持连续养护3天以上。
(7)底板采用干撒可立特防水材料,每平方米不少于1kg且撒匀,地下梁侧壁采用涂刷。
3、施工要点
(1)基面必须坚实、干净,这是渗透结晶的必要条件。
(2)基面必须湿透,这是渗透结晶的基础。
(3)基面应粗糙,这是渗透结晶的有利条件。
4、成品保护
防水施工完成后,涂层要避免受到破坏,并且在7天内要避免明水浸泡。
三、地下室防水相关配合
1、底板混凝土垫层压实平整。
2、混凝土浇筑必须振捣密实,不能有漏振现象,如有必须用水泥砂浆抹平。
3、固定模板用的穿墙螺杆必须按本施工工艺中细部处理方案割掉并用水泥砂浆抹平。
4、变形缝橡胶止水带必须按要求在支模及浇筑混凝土前安装完成,浇筑混凝土时必须振捣密实。






四、地下室侧墙
基层处理节点防水细部处理聚氨酯第一道防水聚氨酯第二道防水聚氨酯面层防水自检验收成品保护。
1、 附加涂膜防水层施工
附加涂层施工时,需先涂刷一至二遍涂膜,表面再涂刷涂膜。对于所有宽于25mm的变形缝,宜在缓冲带上涂雨虹涂料。形成涂膜附加层与基层不连接。
2、 涂膜防水层施工
1)涂料类型的选用:单组份聚氨酯。
2)基层清理 : 将施工基层面彻底清理干净,达到干净、干燥、凹凸处修复平整等要求后,即可进行涂膜防水层的施工。
3)涂布 雨虹 涂料:用滚刷或橡皮刮板在基面上涂布雨虹涂料;应涂刷均匀、厚薄一致,应分层分遍涂刷涂料。一般可分2-3遍完成。每遍涂布之后应让涂膜有充分时间固化,间隔时间不宜少于24h。涂料的参考涂布量为:当涂膜厚度为1mm时,使用量约1.7kg。应涂满整个基层,并覆盖所有的细部节点附加层。
4) 涂膜防水层收头的密封处理:在涂层收头部位应使用配套聚氨酯密封膏密封,也可采取加涂一遍或二遍 雨虹单组分聚氨酯涂料的方法进行密封处理。
3、细部处理做法
聚氨酯涂膜防水层是在工程现场涂布成膜,东方雨虹多年从事工程涂膜防水的实践经验表明:聚氨酯涂膜成膜质量由产品质量决定,但其防水效果的可靠性、耐久性、抗损伤性能则受涂装工艺决定。
1)、涂装基层处理
任何涂膜材料都需要在稳定、坚实的基层上实施,钢筋混凝土基层上的沉积灰尘、浮浆、起砂等表面缺陷均能导致涂膜防水层的局部结合不实,在使用中产生局部破坏。防水工程为地下不可更新项目,因此涂刷聚氨酯防水涂料的混凝土基层必须首先进行严格混凝土浮浆打磨、沉积灰尘的清扫工序。合格的基层标准为:无浮浆、无积尘、干净坚实的混凝土结构面。
2)、增设底涂工序
尽管聚氨酯防水涂料可以厚涂成膜,但是增设底涂工序是非常必要的。
现场混凝土基层不可能处理到真正的洁净无灰尘,特别是多风沙地区,为了取得良好的刚柔结合效果,采用稀释后的聚氨酯防水涂料做薄涂底涂层,能够取得最佳粘附粘结效果,确保防水涂膜在使用过程中无局部脱离破坏现象。
4、地下室顶板及屋面做法
基层处理节点防水细部处理聚氨酯第一道防水聚氨酯第二道防水聚氨酯面层防水自检验收自粘卷材自检验收成品保护。
1)附加涂膜防水层施工
附加涂层施工时,需先涂刷一至二遍涂膜,表面再涂刷涂膜。对于所有宽于25mm的变形缝,宜在缓冲带上涂雨虹涂料。形成涂膜附加层与基层不连接。
2) 涂膜防水层施工
(1) 涂料类型的选用:单组份聚氨酯。
(2) 基层清理 : 将施工基层面彻底清理干净,达到干净、干燥、凹凸处修复平整等要求后,即可进行涂膜防水层的施工。
(3) 涂布 雨虹 涂料:用滚刷或橡皮刮板在基面上涂布雨虹涂料;应涂刷均匀、厚薄一致,应分层分遍涂刷涂料。一般可分2-3遍完成。每遍涂布之后应让涂膜有充分时间固化,间隔时间不宜少于24h。涂料的参考涂布量为:当涂膜厚度为1mm时,使用量约1.7kg。应涂满整个基层,并覆盖所有的细部节点附加层。
3) 涂膜防水层收头的密封处理:在涂层收头部位应使用配套聚氨酯密封膏密封,也可采取加涂一遍或二遍 雨虹单组分聚氨酯涂料的方法进行密封处理。
4) 自粘卷材施工
在已处理好的基层表面,按照所选卷材的宽度,留出搭接缝尺寸(长短边均为80mm),将铺贴卷材的基准线弹好,按此基准线进行卷材铺贴施工,固定主要节点。铺贴后卷材应平整、顺直,搭接尺寸正确,不得扭曲。基层验收后铺贴卷材。铺贴时先将起端固定后逐渐展开,展开的同时揭开剥离纸,铺设时由低向高。
卷材搭接和密封相邻卷材搭接宽度,地下工程一般不小于80mm,接茬处不小于150mm。搭接缝应压实粘牢,边缘用密封膏封闭。
卷材收头立面卷材收头用卷材密封膏封闭。
五、卫生间、阳台、厨房防水做法
1、操作工艺
施工现场涂料的配合比
JSA-101Ⅱ型涂料的配合比:
1)底涂层:液料:粉料:水=10:12:10~14;
2)中间涂层:液料:粉料:水=10:12:0~2;
3)面涂层:液料:粉料:水=10:12:4~6。
注:水的添加量是唯一可调节的组分,通过适当调整水的添加量可调节涂料粘稠度,以满足在不同部位的施工或涂膜平整度的要求。
JSA-101聚合物水泥防水涂料的配合方法是先将液料和水倒入搅拌桶中,在手提搅拌器的不断搅拌下将粉料徐徐加入,至少搅拌10分钟,彻底搅拌均匀,呈浆状且无团块。
2、工艺流程

3、施工操作要点
1)基层清理
选用合适的工具将基层清扫干净,不得有浮尘、杂物,不得有明水。
2)滚刷底涂
底涂是为了提高涂膜与基层的粘结力,而当基层潮湿或在不吸水的干净的基层上使用时,可不做底涂(具体应视现场情况而定)。底涂用量为0.3kg/m2。
3)细部附加处理
在地漏、管根、阴阳角等易发生漏水的部位应增加一层加筋布加强处理。首先用橡胶刮板或油漆刷厚度均匀地涂刷一遍JSA-101涂料,涂刷宽度300mm为宜,并立即粘贴加筋布进行加筋增强处理。加筋布粘贴时,应用漆刷摊压平整,与下层涂料贴合紧密,搭接宽度100mm,表面再涂刷一至二层涂料,使其达到设计要求的厚度。做法如下图



4)涂刷第一道涂层
细部节点处理完毕且涂膜干燥后,进行第一道大面涂层的施工。涂刷时要均匀,不能有局部沉积,并要多次涂刮使涂料与基层之间不留气泡。
5)涂刷第二道涂层
在第一道涂层干燥后(一般以手摸不粘手为准),进行第二道涂层的施工,涂刷的方向与第一道相互垂直,干燥后再涂刷下一道涂层,如需要则铺贴加筋层,然后涂刷下一道涂层直到达到设计厚度。
6)面层涂膜施工
最后一道涂层采用加水稀释的面涂料滚涂一道,以提高涂膜表面的平整、光洁效果。涂膜收头时应采用防水涂料多遍涂刷,以保证其完好的防水效果。
7)防水层的验收及保护层的施工
施工时应边涂刷边检查,发现缺陷及时修补,现场施工员、质检员必须跟班检查,检查合格后方可进入下一道涂层施工,特别要注意平立面交接处、转角处、阴阳角部位的做法是否正确。自检合格后报请监理方/建设方进行防水层的整体验收,防水层完工干燥48h后应做24h蓄水试验,不渗不漏为合格。第一次试水合格后即可做保护饰面层。保护饰面层施工完毕应做第二次试水试验,以最终无渗漏为验收合格。