一、建筑平面图的形成和用途
1、建筑平面图的形成
建筑平面图是用一个假想的水平剖切平面沿略高于窗台的位置剖切房屋,移去上面部分,剩余部分向水平面做正投影,所得的水平剖面图,称为建筑平面图,简称平面图。
2、建筑平面图表达的内容
建筑平面图反映新建建筑的平面形状、房间的位置、大小、相互关系、墙体的位置、厚度、材料、柱的截面形状与尺寸大小,门窗的位置及类型。
3、建筑平面图的用途
是施工放线、砌墙、安装门窗、室内外装修及编制工程预算的重要依据,是建筑施工中的重要图纸。
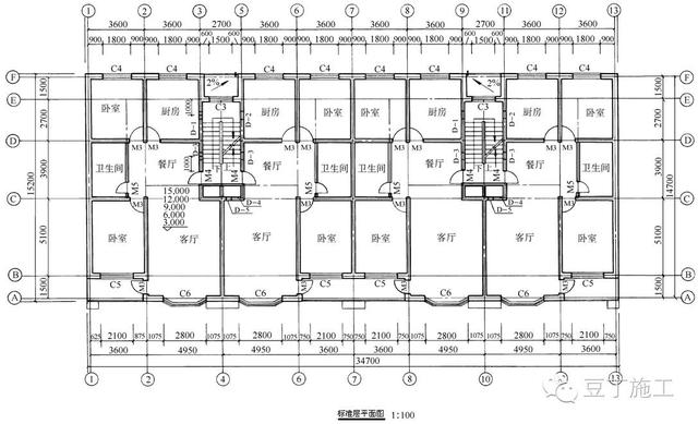
二、建筑平面图的图示方法
1、建筑平面图的数量
一般情况下,房屋有几层,就应画几个平面图,并在图的下方注写相应的图名。由于多(高)层房屋其中间层构造、布置情况基本相同,画一个平面图即可。

2、建筑平面图的图线
平面图实质上是剖面图 ,被剖切平面剖切到的墙、柱等轮廓线用粗实线表示。未被剖切到的部分如室外台阶、散水、楼梯以及尺寸线等用细实线表示。门的开启线用细实线表示。
3、建筑平面图的比例
建筑平面图常用的比例是1:50、1:100或1:200。其中1:100使用最多。
三、建筑平面图的图示内容
1.表示所有轴线及其编号、以及墙、柱、墩的位置、尺寸。
2.表示出所有房间的名称及其门窗的位置、编号、与大小。
3.注出室内外的有关尺寸及室内楼地面的标高。
4.表示电梯、楼梯的位置及楼梯上下行方向及主要尺寸。
5.表示阳台、雨蓬、台阶、斜坡、烟道、通风道、管井、消防梯、雨水管、散水、排水沟、花池等位置及尺寸。
6.画出室内设备,如卫生器具、水池、工作台、隔断及重要设备的位置、形状。
7.表示地下室、地坑、地沟、墙上预留洞、高窗等位置尺寸。
8.在底层平面图上还应该画出剖面图的剖切符号及编号
9.标注有关部位的详图索引符号。
10.底层平面图左下方或右下方画出指北针。
11.屋顶平面图上一般应表示出:女儿墙、檐沟、屋面坡度、分水线与雨水口、变形缝、楼梯间、水箱间、天窗、上人孔、消防梯及其它构筑物、索引符号等。
施工图常用符号图例大全请参考
很实用的施工图常用符号及图例大全
四、建筑平面图的识读
(一)底层平面图的识读

1.了解平面图的图名、比例。
2.了解建筑的朝向。
3.了解建筑的平面布置。
4.了解建筑平面图上的尺寸。
建筑平面图上标注的尺寸均为未经装饰的结构表面尺寸。
建筑占地面积为首层外墙外边线所包围的面积。
使用面积是指建筑物各层平面布置中可直接为生产或生活使用的净面积总和。
建筑面积是指各层建筑外墙结构的外围水平面积之和。包括使用面积、辅助面积和结构面积。
平面面积利用系数K=使用面积/建筑面积100%

5.了解建筑中各组成部分的标高情况。
6.了解门窗的位置及编号。
7.了解建筑剖面图的剖切位置、索引标志。
8.了解各专业设备的布置情况。
(二)标准层平面图和顶层平面图的识读
为了简化作图,已在底层平面图上表示过的内容,在标准层平面图和顶层平面图上不再表示。
顶层平面图上不再画二层平面图上表示过的雨蓬等。
识读标准层平面图和顶层平面图重点应与底层平面图对照异同

(三)屋顶平面图的识读
屋顶平面图主要反映屋面上天窗、水箱、铁爬梯、通风道、女儿墙、变形缝等的位置以及采用标准图集的代号、屋面排水分区、排水方向、坡度、雨水口的位置、尺寸等内容。
