一、基层处理
工程的结构墙体基面必须清理干净,对并检验墙面平整度和垂直度。用2m靠尺检查,最大偏差不大于4mm,超差部分应剔凿或用聚合物水泥砂浆修补平整。
二、设置控制线
在墙面阴阳角及窗口部位,垂直吊22#钢丝,用经纬仪校正其垂直度,上下固定,在外墙皮的四周用水准仪测设,用墨斗弹出窗台水平线,以水平、垂直总控制线为基准按间距校核。1.2m划分区段控制网,找墙间规矩,用5kg线坠和抄平水管校核。
三、配制砂浆
(1)施工使用的砂浆分为专用粘结砂浆及面层聚合物抗裂砂浆。
(2)施工时用手持式电动搅拌机搅拌,拌制的粘结砂浆重量比为水:砂浆=1:5,边加水边搅拌;搅拌时间不少于5分钟,搅拌必须充分、均匀,稠度适中,并有一定粘度。
(3)砂浆调制完毕后,须静置5分钟,使用前再次进行搅拌,拌制好的砂浆应在1h内用完。
四、预粘板端翻包网格布
在飘窗板、挑檐、阳台、伸缩缝等位置预先粘贴板边翻包网格布,将不小于220mm是网格布中的8 0 mm宽用专用粘结砂浆牢固粘贴在基面上(粘结砂浆厚度不得超过2mm),真金板时再将剩余网格布翻包过来,做法及尺寸见后图。
五、粘贴真金板
(1)施工前,根据楼整个外墙立面的设计尺寸编制真金板的排板图,以达到节约材料、施工速度的目的。真金板以长向水平铺贴,保证连续结合,上下两排板须竖向错缝1 /2板长,局部最小错缝不得小于200mm。
(2)在墙面转角处,应先排好尺寸,裁切真金板,使其垂直交错连接,并应保证墙角垂直度,要求拐角处沿建筑物全高顺直、完整。


(3)真金板粘贴施工时要求在建筑物外墙所有阴阳角部位沿全高挂通线控制其顺直度(注:保温施工时控制阴阳角的顺直度而非垂直度),并要求事先用墨斗弹好底边水平线及100mm控制线,以确保水平铺贴,在区段内的铺贴由下向上进行。
(4)在粘贴窗框四周的阳角和外墙阳角时,应先弹出基准线,作为控制阳角上下竖直的依据,在门窗洞口部位的真金板,不允许用碎板拼凑,需用整幅板切割,裁成L型进行铺贴,其切割边缘必须顺直、平整、尺寸方正,不得拼接。接缝距洞口四角距离不应小于200mm如图所示。

(5)粘贴真金板时,板缝应挤紧,相邻板应齐平,施工时控制板间缝隙不得大于2mm,板间高差不得大于1.5mm,当板间缝隙大于2mm时,须用真金板条将缝塞满,板条不得用砂浆或胶结剂粘结;板间平整度高差大于1.5mm的部位应在施工面层前用木锉、粗砂纸或砂轮打磨平整。
(6)用抹子在每块真金板四周边上应涂抹宽约80mm厚为实际粘贴厚度1.2~1.3倍的胶粘剂,并应在中部均匀涂抹3块直径不应小于220mm厚为实际粘贴厚度1.2~1.3倍的胶粘剂,此粘结点应布置均匀,必须使胶粘剂在真金板上的布胶面积不应小于45%板口应留排气口宽度不应小于50mm。

(7)用点框法涂好聚合物砂浆的真金板必须立即粘贴在墙面上,速度要快,以防止粘结砂浆表面结皮而失去粘结作用。
当采用点框法涂抹聚合物粘结砂浆时,粘贴时不允许采用使板左右、上下错动的方式调整预粘贴板与己贴板间的平整度,而应采用橡胶锤敲击调整;目的是防止由于真金板左右错动而导致聚合物粘结砂浆溢进板与板间的缝隙内。
(8)真金板按照上述要求贴墙后,用2m靠尺反复压平,保证其平整度及粘结牢固,板与板间要挤紧,不得有缝,板缝间不得有粘结砂浆,否则该部位则形成冷桥。每贴完一块,要及时清除板四周挤出的聚合物砂浆;若因真金板切割不直形成缝隙,要用木锉锉直后再张贴。
(9)真金板与基层粘结砂浆在铺贴压实后砂浆的覆盖面积约占板面的45%以上,以保证真金板与墙体粘结牢固。
(10)网格布翻包:从拐角处开始粘贴大块真金板后,遇到阳台、窗洞口、挑檐等部位需进行耐碱玻纤网格布翻包;即在基层墙体上用聚合物粘结砂浆预贴网格布,翻包部分在基层上粘结宽度80mm且翻包网格布本身不得出现搭接(目的是避免面层大面施工时在此部位出现三层网格布搭接导致面层施工后露网)。


(11)若采用脚手架施工,在遇到脚手架连墙件等突出墙面且以后拆除的部位,按照整幅板预留,最后随拆除随进行收尾施工。
六、安装固定件
(1)真金板粘结牢固后,应在6-12小时内安装固定件,按照方案要求的位置用冲击钻钻孔,要求钻孔深度进入基层墙体内50mm(有抹灰层时,不包括抹灰层厚度)。
(2)固定件个数按照以下要求放置(横向位置居中、竖向位置均分),50m以下每平方米4个;建筑物50m以上,100m以下:锚栓数量6个/m2;100m以上做专项论证。任何面积大于0.1平方米的单块板均应至少安装一个锚固件。对外墙阳角和门窗洞口周边部位,锚固件应加密。

(3)操作时,自攻螺丝须拧紧,使用根部带切割刀片的冲击钻,切割刀片的大小、切入深度与钉帽相一致,将工程塑料膨胀钉的钉帽比TPS板边表面略拧进一些;如此才可保证TPS板表面平整,利于面层施工;同时方可确保膨胀钉尾部膨胀部分因受力回拧膨胀使之与基体充分挤紧。
(4)固定件加密:阳角、孔洞边缘及窗四周在水平、垂直方向2m范围内须加密,间距不大于300mm距基层边缘为60mrm。
七、打底
TPS板接缝处表面不平时,须用衬有木方的粗砂纸打底。打磨动作要求为:呈圆周方向轻柔旋转,不允许沿着与TPS板接缝平行方向打磨,打磨后用刷子清除TPS板表面的泡沫碎屑。
八、抹第一遍面层聚合物抗裂砂浆
用铁抹子将第一道抹面胶浆粉刷到真金板上,厚度应控制在2~3mm先用大杠刮平,再用塑料抹子搓平,注意:为确保抹面砂浆与保温板黏结良好,应采用灰板在上面来回拉涂,使得第一道网格布离开保温板并浮于抹面砂浆中,这样既可粘结良好,防止空鼓。
九、埋贴网格布
(1)埋贴网格布就是用抹子由中间开始水平预先抹出一段距离,然后向上向下将网格布抹平,使其紧贴底层聚合物砂浆。
(2)门窗洞口内侧周边及洞口四角均加一层网格布进行加强,洞口四周网格布尺寸为300*200mm大墙面粘贴的网格布搭接在门窗口周边的加强网格布之上,一同埋贴在底层聚合物砂浆内。
(3)将大面网格布沿长度、水平方向绷直绷平。注意将网格布弯曲的一面朝里放置,开始大面积的埋贴,网格布左右搭接宽度100mm上下搭接宽度80mr}不得使网格布褶皱、空鼓、翘边。要求砂浆饱满度100%严禁出现干搭接。
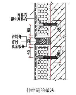
(4)在伸缩缝处,需进行网格布翻包,网格布预粘在墙面上的尺寸为80mm用网格布和粘结砂浆将真金板端头包住,此处允许真金板端边处抹粘结砂浆,大墙面粘贴的网格布盖在搭接的80mm网格格布之上,一同埋贴在底层聚合物抗裂砂浆上。
(5)在墙身阴、阳角处必须从两边墙身埋贴的网格布双向绕角且相互搭接,各面搭接宽度为不小于200mm。


十、抹面层聚合物抗裂砂浆
抹完底层聚合物砂浆并压入网格布后,待砂浆凝固至表面基本干燥、不粘手时,开始抹面层聚合物砂浆,抹面厚度以盖住网格布且不出现网格布痕迹为准,同时控制面层聚合物抗裂砂浆总厚度在3~5mm间。
十一、细部及特殊位置做法
(1)门窗洞口




(2)女儿墙做法

(3)空调板做法

(4)勒脚做法

(5)分隔缝做法

注:分隔缝宽度为20mm。
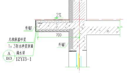
(6)滴水做法


(7)外墙预留洞做
