一、外墙保温现浇施工工艺标准
保温系统是采用阻燃型,一面带有凹凸型齿槽的聚苯板作为现浇混凝土外墙的外保温材料,保温板用专用保温钉与墙体锚固它的安装方式是:当外墙钢筋绑扎完毕后,即在墙体钢筋外侧安装保温板,保温板垂直边高低槽之间用苯板胶粘结,保温板用专用塑料保温钉连接,它既是保温板与墙体钢筋的临时固定措施,又是保温板与墙体的连接措施。然后安装墙体内外模板,浇灌混凝土完毕后,保温层与墙体有机的结合在一起,拆模后在保温板表面抹防裂砂浆外做装饰饰面层。
二、外墙保温现浇施工工艺
墙基弹线用木方找平保温底面标高线在聚苯板上弹出插接栓位置线按设计位置在板上插孔固定胶结聚苯板(垫水泥垫块形成钢筋保护层)插入保温钉聚苯板安装质量验收固定模板烫汤穿墙螺栓孔合模在模板上口或门窗洞口处将聚苯板支顶到模板上浇筑混凝土拆模聚苯板面层初步清理对漏装边角及门窗洞口处聚苯板进行裁切修补处理抹防水水泥砂浆膨胀缝塞填发泡聚乙烯圆棒填嵌缝膏养护验收。
三、插接栓安装及数量
拼装保温板:保温板就位后,有网系统用L筋固定(L筋,¢6,长150mm,弯勾长30mm,间距500mm穿过保温板部分刷防锈漆两道)无网系统用带圆盘的塑料锚固钉固定;用火烧丝将其与钢丝网、塑料钉及墙体钢筋绑扎牢固。保温板拼缝处附加200mm 宽平网(平网可以在浇完混凝土墙后抹灰前附加)用于面砖插接栓中距300*350,涂料饰面时:1-7层400*450, 8-14层350*400,15层以上300*350聚苯板安装完毕后,在板的竖缝处用专用塑料卡钉将两块聚苯板连接在一起,间距600,并将塑料卡钉固定在钢筋上。绑扎时应注意聚苯板底部应绑扎紧一些,使底部内收3~5mm,使拆模后的聚苯板底部与上口平齐。首层的聚苯板应控制在同一水平线上,使上面的聚苯板缝隙严密和垂直。
安装时注意板缝拼接严密,板面平整,下料切锯平直,裁剪得当。保温板除层间拼缝外,不得出现水平拼缝,竖向拼缝上下一致,找补板的宽度不得小于600mm。
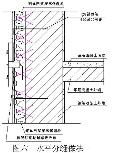
四、板缝拉结
保温板外侧低碳钢丝网片均按楼层层高断开,互不连接。沿板拼缝方向每600mm用150150U型8#铅丝穿过缝两侧保温板同墙内钢筋绑扎牢固(图4.1)。

1、注意事项
增设网片:对外墙阳角、窗洞口等应力集中部位增设角网、平网。角网的宽度以拼角(拼缝)两侧不小于2个完整网格为标准。窗洞侧边的附加角网必须贴紧洞口模并与四周附加筋绑扎固定,窗口四角设置的45度平网宽200mm,长400mm。
保温板安装时及时清理聚苯泡沫碎片,防止聚苯泡沫碎片堆积在施工缝处,防止烂根。
门窗洞口处容易漏浆,需粘贴双面海绵条。
2、殊部位施工方法见



无网体系塑料锚固件平面布置图此图仅供参考

图4.2 有网现浇系统
说明:
1、现浇混凝土外墙
2、EPS单面钢丝网架
3、掺外加剂的水泥砂浆厚抹面层
4、钢丝网架
5、饰面层
6、6钢筋
五、模板安装
应采用钢质大模板,按保温板厚度确定模板配制尺寸、数量。在安装外墙外侧模板前,须在现浇混凝土墙体的根部或保温板外侧采用可靠的定位措施,以防模板挤靠保温板,模板放在三角平台架上,将模板就位,穿螺栓紧固校正,连接必须严密、牢固,以防止出现错台和漏浆现象。
在安装外墙外侧模板前,挤塑板安装完毕须对钢筋墙处的杂物或挤塑板散落碎屑进行吹仓清理,安装墙体模板时,外模必须固定牢固,且不得严重挤压塑板。外模需擦拭干净,不得涂抹任何脱模剂或溶剂性产品。注:模板安装或下落时不得紧贴挤塑板,防止模板下边缘将插接栓刮掉,造成聚苯板破损。
将模板就位,穿螺栓紧固较正,连接必须严密、牢固,以防止出现错台和漏浆现象。不得在墙体钢筋底部置定位筋,宜采用模板上部定位。
六、 混凝土浇筑
现浇混凝土顶板的坍落度应控制在140mm20。现浇混凝土墙的塌落度应180mm。墙体混凝土浇灌前,保温板顶面必须采取遮挡措施,混凝土应分层浇注,高度控制在500mm,混凝土下料点应分散布置,连续进行,间隔时间不超过2小时。
七、模板防止漏浆措施
顶板在浇筑混凝土时,在墙体根部200mm 范围内用铝合金刮杠找平、压光,平整度不得超过2mm。大模板安装时直接放在板面上,个别板面不平处,用砂浆铺平。
角模与平模接缝处拼缝在1-2mm 左右,并用海绵条粘贴。洞口模板四周粘贴一圈海绵条。顶板模板与墙体模板与墙体之间用方木顶紧,方木与墙体之间粘贴海绵条
八、模板拆除
在常温条件下,墙体混凝土强度不低于1.0MPa,冬期施工墙体混凝土强度不低于7.5MPa 及达到混凝土设计强度标准值的30%时,才可以拆除模板,拆模板时应以同条件养护试块抗压强度为准。
先拆外墙外侧模板,再拆外墙内侧模板。并及时修整墙面混凝土边角和板面余浆。穿墙套管拆除后,混凝土墙部分孔洞应用干硬性砂浆捻塞,保温板部位孔洞应用保温材料堵塞,其深度应进入混凝土墙体50mm。
九、混凝土养护
常温施工时,模板拆除后12 小时内喷水或用养护剂养护,不少于七昼夜,次数以保持混凝土具有湿润状态为准。冬期施工时应定点、定时测定混凝土养护温度,并做好记录。
十、成品保护
1、塔吊在吊运物品时要避免碰撞保温板;
2、首层阳角在脱模后,及时用竹胶板或其它方法加以保护,以免棱角遭到破坏;
3、外挂架下端与墙体接触面必须用板垫实,以免外挂架挤压保温层。
4、安装外墙铝单板预埋件时,必须先弹好位置线,用电烙铁或钢筋头烧热后对准埋件锚固点烫穿聚苯板 ,严禁直接插入。
5、架杆在搭设、拆除时注意避免碰撞保温板。
6、门窗、外墙铝单板安装时严禁碰撞保温板。
7、砼浇筑时,安排专人负责看管保温板上启口,严禁振动棒直接碰撞保温板。