背栓式外墙干挂水泥板是近几年从国外引进的施工工艺,它具有以下优点:
第一,背栓式干挂水泥板,由于每块水泥板均有四个背栓式挂件,每个挂件都均匀承受水泥板重量且石材挂件与龙骨挂件间接触面积大,相应的强度和稳定性好。因此它可适用于高层和超高层外墙饰面。
第二,背栓式干挂水泥板,因各个挂件均承载水泥板重量破裂后石材不易脱落且易于更换。
第三,背栓式干挂石材表面清洁,不易受污染,而且用水泥砂浆粘结水泥板表面因受水泥浆侵蚀易变色形成色差。
本文中水泥挂板分两种结构形式,分别用于钢结构基层及混凝土基层,下面分别介绍两种形式安装方案:
一、混凝土基层结构形式


1.1 清水幕墙工艺流程
基层处理墙面弹控制线固定锚栓埋件验收焊接连接件安装主龙骨按控制线调直主龙骨安装次龙骨调直就位焊接次龙骨焊缝防锈处理石材干挂摞底拉通线检查调整 大面积施工嵌缝胶清理。
1.2 清水幕墙施工工艺要点
1.2.1基层处理、墙面控制线
按照设计图纸和样板间确定的尺寸,垂直线用精纬仪控制, 水平线用水准仪控制,弹出各结构点的相对位置,由项目技术员进行放线复查,确认准确无误后,进行下道工序的施工。
1.2.2预埋件施工
本工程埋件全部采用后置件。后置埋件的施工所用化学粘剂和螺栓材质必须有出厂合格证,埋件安装完毕后进行抗拉拔试验。
施工方法:在砼表面上钻直径12mm园孔,用小型吹风机将孔内的灰尘吹干净,置入化学胶管,再置入螺杆,保证化学螺栓的准确位置和锚固性能;本工程设计化学螺栓,单根螺栓其拉力值设计要求不小于12MPa,螺栓安装完毕后,委托国家认可的有资质的法定检测机构到现场进行试验,经试验合格后才能使用。

化学锚栓螺杆


1.2.3放线定位
将土建方提供的基准中心线,标高进行复测,无误后根据图纸给出的横、竖龙骨的位置和轴线放钢线,定出横、竖龙骨和石材幕墙位置。先由中间向两端测录,然后由两端向中间复核尺寸。放出的横、竖龙骨位置线误差心符合设计要求。
根据放线位置,寻找预埋件,如果预埋件没有即补打埋件。
1.2.3焊接连接件
1)在预埋件检验合格后,方可在埋件上焊接连接件(埋件与主龙骨连接的铁件),以竖向控制线和预埋件为依据,核定主龙骨宽度定点,用电焊机焊接牢固。

2)连接件安装验收
验收依据:
《金属与石材幕墙工程技术规范》 JGJ133
《建筑装饰装修工程质量验收规范》 GB50210
《钢结构工程施工质量验收规范》 GB50205
《建筑工程质量检验评定标准》 GBJ301
质量要求:
① 严格按照图纸施工,做到无图纸或图纸不符合规范不施工;
② 焊接必须先进行点焊,待连接件调整符合要求后再行满焊;
③ 埋件与连接件点焊要求必须可承受骨架重量,与作业载荷为准;
④ 焊接连接的焊接长度及高度确保图纸要求,无裂纹、焊瘤、气孔、夹渣;
⑤ 做好防腐处理,所用的无机富锌漆的所涂厚度必须不小于100m,氯化橡胶面漆厚度不小于80m;
⑥ 做好质量及隐蔽验收记录:对每道工序的检查、验收、返工等质量情况进行详细记录。记录包括施工人员、时间、工作面位置、质量情况、返工情况、补救情况、验收人员、各项指标、验收结果等内容。经现场监理验收合格签字后进行下道工序安装。
⑦ 连接件安装偏差控制(mm):
标高 1.0(有上下调节时2.0)
连接件两端点平等度偏差 1.0
距安装轴线水平距离1.0
垂直偏差(上下两端点与垂线偏差)1.0
两连接件连接点中心水平距离 1.0
相邻三连接件(上下、左右)偏差1.0
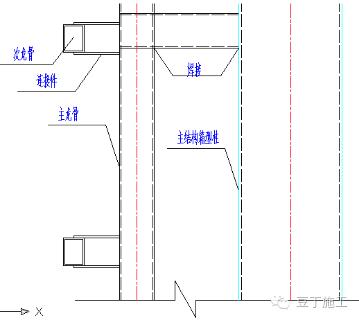
1.2.4安装主龙骨
龙骨安装在全部幕墙安装过程中由于其工程量大,施工不便,施工难度大、精度要求高而占有极重要的地位。如果主龙骨安装正确,则整个幕墙工程质量和进度都较易控制了,故此作业无论从技术上还是管理上都要分外重视。
所有龙骨材料必须做好防锈处理,并应符合国家相关规定。
根据主龙骨图将龙骨按编号码放,然后安装主龙骨,同时将主龙骨侧面的圆孔与角板上的圆孔用M12螺栓相连。
(1)工艺概述
主龙骨是通过螺栓与连接件连接固定。安装时,将竖骨料放入两连接件之间,在竖骨料与两侧连接件相接触面粘贴防腐垫片,穿入连接螺栓,并垫入平、弹垫,调平、拧紧螺丝。
(2)主龙骨定位放线
熟悉了解图纸,检查图纸是否有不清楚的地方,是否有弄不懂的问题准备所有的工器具做好准备工作在施工现场找准所开线的位置,在关键层打水平线寻找辅助层打水平线找出主龙骨放线定位点将定位点加固拉水平线检查水平线的误差调整误差进行水平分割复查水平分割的准确性吊垂直线检查垂直度固定垂直线检查所有放线的准确线垂点清查转角,变面位置的放线情况。
(3)施工工艺
1)熟悉图纸的过程是对整个工程的了解,在施工前对图纸面的图纸作出全面的了解,弄清楚整个位置的主导尺寸,收口位置尺寸、转角、收口的处理方式,以及整个建筑设计的风格,并对整个施工组织设计有明确的认识,对施工进度的控制做到心中有数,同时根据实际情况编制切实可行的施工方法、方案。
2)在正式施工前,要进行施工准备,准备的内容有:
a、人员准备。人员准备包括:人员结构、技术水平、新旧人员的搭配等情况。
b、工器具准备。在放线前对工器具的准备要检查是否缺什么,是否使用正常,仪器是否准确,误差是否在规定范围内。
c、材料准备。
3)在施工现场找准开线部位,并对其周围环境进行了解,对照图纸将转角位、轴线位、变高变截位一一对照,以保证放线的准确性。
4)选择好关键层,将关键层清理干净,防止杂物对开线的影响,并在关键层找出关键点并固定加固好此点,并对此点用水准仪抄平,以便按需要找出水平线。
5)根据幕墙施工需要,单纯在关键层打水平还不足以确定主龙骨的定位,为了保证主龙骨安装的误差在规定范围,在放线时还需要寻找一个辅助层打水平,以保证两点形成一根定位线,辅助层可以是一个或几个,视实际情况而定,一般情况下随楼层高而定,层数越多辅助层就越多,反而亦然。
6)确定了关键层、辅助层,在关键层上寻找主龙骨放线的定位点。定位点一般在变面接口处、转角处,在平面幕墙较长时可以是在平面中间,但此时必须调整位置,保证线、面空间统一。关键点不低于两个,随着各立面变化的复杂程度和整个施工方案和设计形式而决定关键点的多少。
7)找出所有的定位点。对定位点调整固定,对定位点的调整固定要求:
a、定位点误差必须足够小。
b、所用固定点材料应无明显塑性化。
c、固定必须牢固、稳定。
8)复核水平度。从定位点拉水平线,水平线用20#铁线拉直用花篮螺栓紧仔拉紧,铁线一定要拉紧,有时可采用多个花篮紧仔拉紧的办法。在拉水平线之前要对水平度进行复核,误差一定要小于1 mm。
9)在水平线拉好后,防止出现误差,要求对拉好的水平线进行水平度复核,复核时一定要将铁线调至水平状态,必要时可在中间加辅助支点,以避免铁线下挠。
10)进行水平分割
水平线拉好调整后,进行水平分割,进行水平分割前必须做好以下准备工作:
a、查看图纸分格;
b、明了分格线与定位轴线的关系;
c、准备工具,同时对圈尺等测量仪器进行调校;
d、确定分割起点的定位轴线。整个准备工作做好后着手水平分割,一般三人同时进行,一人主尺,一人复尺,一人定位。每次分割后都要进行复检。
11)对水平线分割的准确性的检查,在每次水平分割线分割完毕后都要求对此进行复查,方法有两种:
a、按原来的分割方法进行复尺,并按总长、分长复核闭合差。
b、按相反方向复尺,并按总长、分长复核闭合差。
以上复查如出现分割误差大于2mm则需要重新进行分割。
12)水平分割确定后,我们就需要根据水平分割吊垂直线,吊垂直线时应注意:
a、固定好吊线支座;
b、每根线都在分割点上;
c、分割点必须准确无误;
d、吊线时必须先察看是否有排栅或其它东西挡住;
e、所吊垂线代表一根主龙骨的安装位置,这就要求我们对水平分割与所吊垂线必须完全吻合;
f、在风力>4级时不宜吊垂线;
g、吊线时,吊垂的重量根据情况可用重法码的办法来减少风力对其的影响;
h、高层、超高层是采用经纬仪配合吊线。吊垂线是一根一根的吊,同时用经纬仪进行辅助工作,如无外排栅的工程其垂直放线尽量使用经纬仪控制。
13)检查垂直度有:
a、经纬仪检查法:经纬仪检查是用经纬仪作为垂直验证,从所吊垂线中选择几个垂线用经纬仪进行复检,检查出误差要记录并寻找原因进行调整,这是一种最准确的办法;
b、水平辅助层定位点重合复检法;通过查看辅助层分割点与定位层分割点是否重合来检查垂直吊线的准确性;
c、自由复检法;任意选择一层作为检查层或选择一边区域进行复检,具体做法参照a)、b),得出误差数据后进行分析、记录、处理。这是由于有时赶工,时间紧的情况下的应急办法,一般情况下不采取。
14)固定垂直线,为防止受外力的影响在调整好的垂直线要进行固定;固定时固定稳、准,同时避免外界冲力对其影响,同时,要注意对所放线的保护,有条件的对固定完毕的垂直线用经纬仪重新校正。
15)至上道工序操作止,放线部分工作基本完成,随后将进行主龙骨的安装阶段,为保证安装阶段准确无误,对所放的线要进行全面验收复查;对不同区域进行互查,以保证不出错;保证其准确性是检查的重点,特别是转角位置的放线情况,由于转角位置玻璃分格位与主龙骨分格位不在同一位置,故放线时一定要注意换算,同时要反复查对以防搞错。
主龙骨安装完毕后,上下拉线进行垂直度、 平整度的检查,做到横平竖直,尺寸准确,连接牢固。
所有焊缝,必须清除焊渣,涮双虎牌防锈漆二遍,漆膜为8um,不宜采用醇酸防腐漆。龙骨表面清理干净,不得有油污、 灰尘等杂物,漆后24小时不得淋雨。

1.2.5焊接次龙骨
根据板材规格分块,确定次龙骨长度,主龙骨安装完毕检查合格后安装次龙骨,次龙骨采用 口80 x 60 x 6方钢管, 主次龙骨为贴脚焊缝满焊。焊缝经检查合格后,焊渣清理干净后用双虎牌防锈漆涂刷二遍,最表面再刷银粉漆二遍。
次龙骨安装包括三个部分:一是次龙骨角码安装;二是次龙骨防震垫圈安装;三是角钢次龙骨安装。安装次龙骨仍然要考虑美观。
1)工艺操作流程
施工准备检查各材料质量就位安装检查。
2)施工工艺
a、施工准备
在次龙骨安装前要做好的施工准备有:
b、资料准备
要认清图纸,注意分清开启扇位置,不能将次龙骨装错;
c、材料准备
要准备好各种所需材料,清查各材料的规格数量是否符合要求,施工人员要有各次龙骨应在那儿的观点;
d、人员准备
e、施工段现场清理
由于有可能出现因排栅等原因不能正常安装的情况,故在施工前要进行清理工作;
f、对次龙骨进行包装,以防止脏物污染次龙骨。
3)检查各种材料质量
在安装前要对使用的材料质量进行合格检查,包括检查次龙骨是否已被损坏,冲口是否按要求冲口,同时所有冲口边是否有变形,是否有毛刺边等,如发现类似情况要将其清理后再进行安装。
4)就位安装
次龙骨就位安装先找好位置,将次龙骨角码置于次龙骨两端,再将再次龙骨垫圈预置于次龙骨两端,用不锈钢螺栓穿过次龙骨角码,垫圈及立柱,逐渐收紧不锈钢螺栓,同时注意,观察次龙骨角码的就位情况,调整好各本体制改革的位置以保证次龙骨的安装质量。
5)检查
次龙骨安装完成后要对次龙骨进行检查,主要检查以下几个内容:每一根次龙骨的就位是否有错,次龙骨与立柱接口是否吻合,外表面是否在同一平面上,次龙骨垫圈是否规范整齐,次龙骨是否水平,次龙骨外侧面是否与立柱外侧面在同一平面上等。
骨架安装过程中跟进防雷的连接、防腐处理等,防腐处理采用无机富锌漆,刷两道,厚度不小于100m。注意竖向位置有防雷要求的需做好电气连通。
安装过程中必须作好检验记录,项目部及时做好内部验收、整改等工作,合格后组织报验,验收通过后方可转入下道工序。
钢骨架安装验收
(1)验收依据
《建筑装饰装修工程质量验收规范》 GB50210
《金属与石材幕墙工程技术规范》 JGJ133
《钢结构工程施工质量验收规范》 GB50205
《建筑工程质量检验评定标准》 GBJ301
(2)质量要求
1)严格按照图纸施工,做到无图纸或图纸不符合规范不施工;
2)主龙骨安装标高偏差不大于3mm;轴线前后偏差不大于2mm;左右偏差不大于3mm。
3)相邻两根主龙骨安装标高偏差不大于3mm;同层立柱的最大标高偏差不大于5mm;相邻两根主龙骨的距离偏差不大于2mm。
4)相邻两根次龙骨的水平标高偏差不应大于1mm;同层标高偏差:当幕墙宽度小于或等于35m时不应大于4mm,当幕墙宽度大于35m时不应大于6mm。
5)次龙骨与主龙骨连接处必须加设弹性垫片,以适应和消除横向温度变形的要求。
6)螺栓连接的其结合面必须加垫防腐垫片,保证连接牢固可靠,并进行相关的抗荷载试验;
7)做好隐蔽验收记录,经现场监理验收合格签字后进行下道工序安装。
1.2.6固定挂件安装
铝合金挂件的定位、安装是可更换背栓式水泥挂板幕墙安装中至关重要一环节,它位置准确与否直接关系到石材幕墙的外观效果、铝合金挂件采用分段形式,通过螺栓与横龙骨相连,石材板块上的胀栓与挂件间有一定的配合尺寸,可以保证石材水平板块方向的调整。次龙骨安装完毕检查合格后根据板块分格安装固定干挂件。

1.2.7板材安装就位
(1)板材切割。按照设计图图纸要求在施工现场进行切割,由于板块规格较大,宜采用石材切割机切割,注意保持板块边角的挺直和规矩。
(2)磨边。板材切割后,为使其边角光滑,可采用手提式磨光机进行打磨。
(3)石材加工、磨孔
1)检查石材色差、尺寸偏差以及破损等情况,若有明显色差、缺棱、掉角等应进行更换,合格后将石材板块按图纸编号。
2)石材与骨架通过子母连接件连接,在面板上下两边进行磨孔,孔位距边100㎜~180㎜;横向间距不宜大于600㎜。
连接件应选用锚栓生产厂家的配套产品;连接件与金属骨架的连接应严格按照现行规范要求采取防锈、防腐蚀措施。
石材与锚栓的选择关系

注:上表为常用规格,超规格的应通过具体计算定。
3)用专用双切面磨孔设备进行石材磨孔和锚栓植入。磨孔设备的切削速度应达到12000转/分,保证高速无损拓孔。拓孔完成后,安装锚栓和连接件。
①磨孔工艺
采用专用设备磨削柱状孔底切锥体位拓孔清理石材孔

双切面钻孔图
钻孔尺寸要求(mm)

注:h的厚度由石材厚度允许公差决定。
②锚栓植入工艺
完成磨孔的石材置于专用工作台上复检孔径、孔深、拓底孔径、锚栓位置将装有弹性不锈钢套筒的锚栓装入孔中将锚栓紧固完成(可采用击胀式、旋入式、拉锚式)组件抗拉拔试验。
注:①击胀式是用专用打入工具推进间隔套管,在推进期间迫使扩张片张开,与孔底石材形成接触点,并正好填满拓孔体积,和石材形成凸形结合,使应力均布,从而完成了无应力的锚固。此法适用于石材厚度25mm较厚、质韧石材。
②旋入式是用扭力扳手,通过拧入力迫使扩张片张开,完成无应力锚固。此法适用于石材厚度25mm较厚石材。
③拉锚式是采用专用的拉锚器,通过抽拉作用,完成无应力锚固。此法适用于厚度25 mm和质脆、易破损的石材。

(4)石材饰面板安装
组装完成的石板材按照从下到上、从左到右的原则,依
次卡入连接件安装即可。

图2 后切式背栓干挂石材幕墙横剖节点图
1.2.8粘结胶条
每块板安装完毕并经检查质量,应达到横平竖直、宽窄一至。即可进行注胶密封,注胶(环氧结构胶与水泥的拌合物)之前先把胶缝清理干净,并在胶缝的两侧贴上保护带,以免注胶时把石材弄脏。注胶抹平后再把保护胶带撕下来,凝固后打磨光滑。
1.2.9清理
每一块板安装完毕后,应立即清理板面,以保证全部板材安装完全符合标准要求。
1.2.10成品保护
将距地2m高已完成安装的板材墙面采用围挡保护措施,以避免碰撞损坏;高度为2m以上完成安装的墙面采用防污染的遮挡设施保护。
二、钢结构基层结构形式

2.1 清水幕墙工艺流程
墙面弹控制线安装主龙骨按控制线调直主龙骨镀锌板安装安装次龙骨调直就位焊接次龙骨焊缝防锈处理岩棉保温板安装铝合金防水板安装石材干挂母件安装拉通线检查调整大面积施工嵌缝胶清理。
2.2 清水幕墙施工工艺要点
2.2.1墙面控制线
1)复查由土建方移交的基准线;
2)放标准线:在石材挂板放线前,应首先对建筑物外形尺寸进行偏差测量,根据测量结果,确定出干挂板的基准面。
3)以标准线为基准,按照图纸将分格采用全站仪标定主龙骨位置线放在墙上,并做好标记;其余主龙骨依据此龙骨进行排尺确定。
4)主龙骨安装完毕后,依据龙骨分格图及标高线将次龙骨位置排尺标定。
5)注意事项:
放线时,应结合土建的结构偏差,将偏差分解;并应防止误差积累;
放线时,应考虑好与其他装饰面的接口;
应严格按照图纸放线;
控制重点为:基准线
2.2.2主龙骨安装
本工程骨架选用 口100*80*6方钢管作为竖向主龙骨,采用同等方钢与主结构H型钢进行焊接,口80*60*6方钢管作为横杆传力于竖杆,由于结构布设有保温岩棉板故横杆采用连接件方式与竖杆连接。骨架安装顺序:先安装竖向杆件,竖向杆件与主体结构相连,待竖向杆件就位后再安装横向杆件;

龙骨结构示意图
2.2.3镀锌板安装
镀锌底板安装时直接在结构檩条上固定。底板安装前应先在檩条上弹出底板安装边线,然后进行底板安装。底板安装边线以纵向或横向轴线为基准,沿纵向或横向轴线量出底板边线上的两点,两点连线即为底板安装边线;底板安装边线测放完后应进行复查,满足要求后再进行底板安装;底板安装边线要求准确。每隔10块板测放一条底板安装复核线,安装时通过底板安装复核线及时调整底板误差。底板误差每10块板不超过10mm时,可在下步安装过程中通过10张板进行调节:如果误差超过10mm,已安装的底板必须返工,重新安装。底板安装完后,应将屋面的纵横轴线弹在底板上.以便作为后序工序安装时的控制线。
底板用自攻钉固定.施工时必须保证自攻钉纵横方向在一条直线,钉距均匀;且自攻钉在垂直安装面固定,不得出现歪斜;同时控制自攻钉固定力度,既不能太大.也不能太小。
在镀锌钢板的两块板间的接缝部位一定要做好板与板之间的密封措施,为此,我们须采取如下图所示措施对板缝做特殊处理。

2.2.4保温岩棉板安装
2.2.4.1标准板规格尺寸为1200*600,对角线误差小于2,岩棉板用电热丝切割器或工具刀切割,尺寸允许偏差为1.5。
2.2.4.2网格布翻包:门窗洞口、变形缝两侧等处的岩棉板上预粘网格布,总宽度约200,翻包部分宽度为80,具体做法如下:网格布裁剪长度为180加板厚。首先在翻包部位抹长度为80宽度为2的专用粘结剂,然后压入80长的网格布,余下的甩出备用。
2.2.4.3将配置好的专用粘结剂涂抹在岩棉板的背后,粘结剂压实厚度约为3,为保证粘结牢固,粘结方法可采用条粘法和条点法。
2.2.4.4条粘法:用齿口镘刀将专用粘结剂水平方向均匀的抹在岩棉板上,条宽10,厚度10,中距50。
2.2.4.5条点法:用抹子在每块岩棉板周边及中间抹宽50,厚度为10的专用粘结剂,再在岩棉板分隔区内抹直径为100,厚度为10的灰饼。
2.2.4.6将抹好专用粘结剂的岩棉板迅速粘贴在屋面上,以防止表面结皮而失去粘结作用。不得在岩棉板侧面涂抹专用粘结剂。
2.2.4.7岩棉板粘上墙面后,应用2米靠尺压平操作,保证其平整度及粘贴牢固,板与板之间要挤紧,不得有缝,因切割不直形成的缝隙,用岩棉板条塞入并磨平。每粘完一块板,应将挤出的专用粘结剂清除。
2.2.4.8岩棉板粘贴应分段自下而上沿水平方向横向铺贴,每排板应错缝1/2板长,局部最小错缝不得小于100。
2.2.4.9安装固定件:
1)固定件在岩棉板粘贴8小时后开始安装,并在其后24小时内完成。按设计要求的位置用冲击钻钻孔,孔径10,钻入基层墙体深度约为60,固定件锚入基层墙体的深度约为50,以确保牢固可靠。
2)固定件个数按设计说明要求设置。
3)自攻螺丝应挤紧并将工程塑料膨胀钉帽与岩棉板表面齐整或略拧入一些,确保膨胀钉尾部回拧,使其与基层墙体充分锚固。
2.2.4.10打磨:
1)岩棉板接缝不平处应用粗砂纸打磨,动作为轻柔的圆周运动,不要沿着与岩棉板接缝平行的方向打磨。
2)打磨后及时将岩棉板碎屑及浮灰用刷子清理干净。

岩棉板安装示意图
2.2.5铝型件安装
(同混凝土基层结构形式)
2.2.6防水铝板安装
1)钢龙骨安装完毕后,对整个防水铝板进行安装,在龙骨上重新弹设防水铝板安装中心定位线,所弹墨线几何尺寸应符合要求,墨线必须清晰。
2)依据编号图的位置,进行防水铝板的安装,安装防水铝板要弹横向、竖向控制线。
3)防水铝板在搬运、吊装过程中,应竖直搬运,不宜将金属板饰面平台搬运。这样可避免金属板的挠曲变形。
4)金属板通过螺钉固定在铝型材上。
5)依据分格线进行调节,相邻两横向防水铝板的水平标高差不应大于2㎜,竖向板材直线度允许偏差为2.5 ㎜,横向板材水平度允许偏差控制在2~3㎜,调整完后拧紧螺钉。
6)防水铝板安装过程中,依据设计规定的螺钉的数量进行安装,不得有少装现象,安装过程中,不但要考虑平整度,而且要考虑分格缝的大小及各项指标,控制在误差范围内。
7)防水铝板打胶
①防水铝板安装完毕后,清理板缝,打底漆防止密封胶与金属板接不牢,然后进行泡沫条的填塞工作,泡沫条填塞深浅度要一致,不得出现高低不平现象。
②泡沫条填塞后,进行美纹纸的粘贴,美纹纸的粘贴应横平竖直,不得有扭曲现象。
③打胶过程中,注胶应连续饱满,刮胶应均匀平滑,不得有跳刀现象。

防水铝板安装完毕截面示意图
2.2.7挂件母件安装
(同混凝土基层结构形式)
2.2.8水泥挂板安装
(同混凝土基层结构形式)