一、工程概况
摄影棚为地上一层局部三层,建筑高度20m-25m不等。结构形式均为框架结构,大空间屋盖采用钢桁架。
各单体每楼层(含棚框架梁层高)砌筑高度为3m-8m不等,棚主体围护结构采用烧结页岩实心砖砌筑,摄影棚附属用房墙体采用蒸压加气混凝土砌块砌筑。
由于摄影棚主体部分砌筑作业超高,须搭设超高操作架,单层结构砌筑材料运输及操作降效严重,施工难度大。同时,从施工质量层面分析,隔声墙设计隔声要求严,检测指标高,施工可供借鉴的同类施工案列较少,砌筑施工须严格管控。砌筑工程主要概况如下表:
表2.2-1 砌筑工程概况表


1000、 2000、3000平方米摄影棚(直型房)
二、砌体结构施工方法
1、放线
每层每段墙体开始砌筑前,对墙体进行排砖,尤其须注意门窗洞口及构造柱的留置,并对操作工人进行安全技术交底。砌筑施工前,根据施工图及排砖图,准确放出墙体轴线、边线以及控制线。
2、植筋
填充墙拉结筋、构造柱、过梁、圈梁及压顶等砼构件均采用植筋工艺。根据墙体放线,定位出植筋孔的位置并做好标识。打孔时采用比设计钢筋直径大4mm的钻头成孔,成孔后进行吹孔清理,植筋打孔深度为15d(d为钢筋直径),技术参数见表2-1。然后孔内进行灌胶,保证孔内满灌,将钢筋旋转插入孔中,24小时内不得扰动钢筋。按规范对植筋进行现场拉拔检测,合格后方可进行下一道工序。
表2-1 植筋技术参数表

3、立皮数杆
在砌体转角及端部设置皮数杆,皮数杆采用3040mm木方制成,皮数杆上标明砖皮数、灰缝厚度以及门窗洞口、预制的混凝土块、拉结筋、圈梁、过梁的尺寸标高。且皮数杆垂直、牢固、标高一致。
摄影棚页岩砖墙砌筑时,采用粘贴时皮数条,粘贴在填充墙两侧框架柱上,严格按照标尺控制灰缝厚度。
4、排列砖块
按砌块排列图在墙体线范围内分块定尺、划线,第一皮砌筑时试摆。
页岩砖墙砌筑240mm厚,采用一顺一丁组砌方式(图4-1所示),上下错缝1/2砖、内外搭接,并不应有竖向通缝。页岩砖灰缝宽度宜为10mm,应控制在8-12mm。由于页岩砖砌筑房间有声学要求,墙体须满浆砌筑,不得有空隙。

图4-1 页岩砖240墙组砌方式
蒸压加气混凝土砌块砌筑时搭砌长度不应小于砌块长度的1/3,水平灰缝和竖向灰缝宽度不应超过15mm。按墙段实量尺寸和砌块规格尺寸进行排列摆块,不足整块的可锯截成需要尺寸,但不得小于砌块长度的1/3。蒸压加气混凝土砌块排砖见图4-2。

图4-2 加气混凝土砌块排砖示意图
5、拉线
根据立在墙端或转角的皮数杆砌筑两端墙体,并在之间拉双准线,砌筑中间砌块时根据准线控制灰缝及水平。

图5-1 皮数杆拉双线示意图
6、砂浆拌制
本工程按设计要求,使用预拌砂浆。砂浆拌制采用机械搅拌,砂浆拌成后使用时盛入贮灰器中,不得随意倾倒在地面上。砂浆须具有高粘附性,良好的和易性、保水性。如砂浆出现泌水现象,在砌筑前再次拌合。砂浆随拌随用,水泥砂浆须在3-4h内使用完毕,严禁使用过夜及落地砂浆。
7、砌筑
1)首层填充墙位置有回填土的,需做混凝土基础,做法示意见图7-1。

图7-1 隔墙下基础做法
2)砌块排列:按砌块排列图在砌体线范围内分块定尺、划线,排列砌块的方法和要求如下:
a、砌块砌体在砌筑前,根据工程设计施工图,结合砌块的品种、规格、绘制砌体砌块的排列图,经审核无误,按图排列砌块。
b、烧结页岩砖采用一顺一丁组砌方式,墙厚240mm。加气混凝土砌块采用全顺砌筑形式,墙厚200mm。上下皮竖向灰缝相互错开1/2砌块长。
3)砌块润水:烧结页岩砖应在上墙前1-2天浇水湿润,相对含水率宜为60-70%。加气混凝土砌块应在砌筑当天进行浇水湿润,冲去浮尘。
4)加气混凝土砌块采用铺浆法砌筑时,铺浆长度不应超过750mm。烧结页岩砖砌筑时采用三一砌筑法施工,即一块砖、一铲灰、一揉挤,并随手挂掉挤出墙面的砂浆。
5)砌块就位与校正:砌筑就位先远后近、先下后上、先外后内;每层开始时,从转角处或定位砌块处开始;吊砌一皮、校正一皮,皮皮拉线控制砌体标高和墙面平整度。
6)砌筑时,页岩砖水平灰缝及竖向灰缝宜为10mm,但不应小于8mm,也不应大于12mm;灰缝砂浆饱满度要求100%。加气混凝土砌块水平及竖向灰缝不应大于15mm,灰缝砂浆饱满度80%。
7)砌筑墙体要同时砌起,不得留直槎,隔声墙墙体砌筑时不得留设脚手眼。每天砌筑高度不超过1.5m(雨天不得超过1.2m)。
8)转角等部位整体咬槎砌筑时,临时间断处咬斜槎,斜槎水平投影不小于砌体高度的2/3,接槎时先将接槎处清理干净,浇水润湿。
9)门窗洞口两侧间隔设置150mm150mm与墙同厚的C20细石混凝土预制块,以便门窗固定,如图7-2。

图7-2 门窗洞口预制块设置示意
10)墙体砌筑时必须双面挂线,当砌筑到和拉结筋同高时,要将预先做好的拉结筋调整就位,并完全压在灰缝内,在拉结筋绑上铁丝甩出墙外侧,做出标识。填充墙砌筑至梁底应预留一定空隙,待砌筑完14天后采用斜砌塞实。墙中塞顶预制等角三角形混凝土块,两端采用直角三角形块,从中间向两侧按60斜向砌筑,砌块须逐块塞紧敲实,填满砂浆,如图7-3所示。

图7-3 填充墙顶部做法
8、拉结筋、门洞过梁及构造柱、圈梁
1)拉结筋设置:
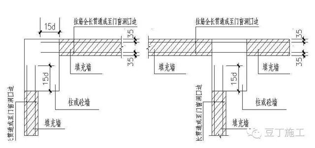
在砌体与混凝土墙、柱交接处采用植筋的方式设置拉结筋。设置2C6拉结筋,拉结筋植入砼内长度不小于15d(d为钢筋直径),沿墙贯通或至门窗洞口边。墙体拉结筋采用绑扎连接,搭接长度55d,且不小于400m,拉结筋外露砂浆保护层的厚度不应小于15mm。拉结筋应每隔500mm高设置一道。
拉结筋设置如图8-1:

图8-1 拉结筋示意图
2)过梁,圈梁,压顶梁设置:
a、过梁:墙门窗洞口顶无梁时需设钢筋混凝土过梁,当预留洞口宽度超过400mm时也需设置过梁。过梁钢筋采用后植筋方式,植入墙柱内15d(d为钢筋直径)。过梁规格、配筋详见图8-2及表8-1所示:

图8-2 过梁规格配筋示意图
表8-1 过梁选用表

b、圈梁(水平系梁):当墙高大于3.6m时,在墙体半高或门窗洞顶标高处设置与柱连接且沿墙全长贯通的圈梁,混凝土强度等级为C25;圈梁宽度同填充墙厚度b,圈梁高度120mm。配筋410(放四角),箍筋6@200。纵向钢筋采用绑扎搭接,全部纵筋可在同一连接区内搭接,钢筋搭接长度50d,钢筋保护层厚度不应小于20mm,圈梁钢筋采用后植筋方式进行,植筋深度为15d。圈梁设置见图8-3。


图8-3 构造柱、圈梁设置示意图
c、压顶梁:窗台均设置200mm高C20混凝土压顶梁,宽度均为墙厚,内配46通长筋,6@200箍筋。
3)构造柱设置
a、填充墙设置构造柱。构造柱断面为a200mm,a为墙厚;墙体相交处,构造柱断面尺寸为aa,a为墙厚。砌体构造柱配筋详见下图:

图8-4 构造柱配筋示意图
b、构造柱上、下端楼层600mm高度范围内,箍筋间距加密至6@100。构造柱搭接范围内的箍筋间距不大于100mm且不少于4根箍筋。构造柱纵向钢筋采用绑扎搭接,全部纵筋可在同一连接区内搭接,钢筋搭接长度50d。构造柱钢筋绑扎完以后再砌墙,由下到上逐层砌筑。
c、构造柱钢筋采用植筋,钢筋植入砼长度不小于15d(d为钢筋直径)。
d、按照规范及图纸要求,填充墙长度超过5m或当墙长度超过层高的2倍时,在墙体中间沿墙长每隔4000mm设置构造柱。填充墙端部无翼墙形成自由端时设置构造柱,门窗垛的墙体长度小于等于120mm时设置构造柱。填充墙上门窗洞口宽度大于2.1m时设构造柱,尺寸为墙厚150mm,配筋412。
e、构造柱施工时注意:先砌墙后浇注,墙身砌成马牙槎,马牙槎槎口60mm、槎高250mm。马牙槎设置先退后进。马牙槎留置如图8-8所示。
f、马牙槎边口应吊线砌筑构造柱边贴双面泡沫胶条,厚度不小于5mm,构造柱模板顶部支设喇叭口,混凝土浇筑时,应采用30振捣棒插入柱内进行振捣,不得通过振模板的方式传振,混凝土浇筑成型后凿除牛腿。


图8-8 构造柱马牙搓留置示意


图8-9 构造柱喇叭口示意

图8-10 构造柱布置示意图
9、导墙及门槛设置
室内有水房间、卫生间、管井以及电梯井填充墙底设150mm(距楼地面完成面)高C20混凝土反坎。强弱电间、配电所等有电房间门口设置300mm高100mm宽混凝土高门槛,与墙内皮平。外墙填充墙底浇筑高出楼地面250mm的C20素混凝土反坎。有防水要求的部位待混凝土浇筑完成后,及时将墙根抹成八字形,同时将根部300mm高度范围内砌体部分抹灰压光,便于防水施工。
对反坎位置放线确定后,支设模板前,在楼板面、墙面衔接部位进行凿毛处理,经过验收合格后方可施工混凝土。
10、砌体施工注意事项
1)砌块堆放现场必须平整,并做好排水。堆放高度不宜超过1.6m,堆垛之间保持适当的通道。并要有防雨措施。同时必须保证加气混凝土砌块施砌时龄期不小于28d。
2)烧结页岩砖提前一至两天浇水湿润,加气混凝土砌块砌筑当天向砌筑表面适量浇水湿润。砌块应将占有油污的表面切掉,其切割面不应有切割屑。切锯砌块应采用专用工具,不得使用斧子或瓦刀任意砍劈,洞口两侧,应使用规整的砌块。
3)砌体留置的拉结钢筋的位置与块体皮数相符合。拉结钢筋置于灰缝中,埋置长度为全墙通长。
4)墙转角等未设置构造柱时,将砌块分皮咬槎,交错搭砌。
5)将搅拌好的砂浆,通过灰车运至砌筑地点,在砌块就位前,用大铲、灰勺进行分块铺灰。
6)铺底时根据皮数杆最下面一层的标高,拉线检查表面标高是否合适,如第一层砖的水平灰缝大于20mm时,用细石混凝土找平。
7)砌体施工临时间断处补砌时,必须将接搓处表面清理干净,浇水湿润,并填实砂浆,保持灰缝平直。
8)安装预留洞口大小按照管道预留洞平面图预留并按要求设置过梁,等后续安装完毕后进行封堵。
9)墙体预留洞的封堵,砌筑墙体预留洞待管道设备安装完毕后,采用C20膨胀细石混凝土填塞密实。
10)施工队伍要配备业务熟练,政治素质高的工长和技术人员担任砌筑、检测等工序负责人,并落实责任,制定责任制奖惩制度,严格奖惩,及时检查及时处理,稳定砂达不到质量标准要求的坚决返工,并追究有关责任人的责任。
11)所有砌块进场验收合格后方能进行施工,每道工序经监理验收合格后方能进行下道工序施工。
11、砌体的砌筑砂浆取样规定及方法
A、取样规定
① 每一楼层砌体中的同一配合比的砂浆至少留取一组试件。
② 每一检验批且不超过250m3砌体的各种类型及强度等级的砌筑砂浆,每台搅拌机至少抽检一次。
③ 水泥砂浆试模尺寸为70.7mm70.7mm70.7mm的带底试模。试块制作后应在室温为(205)℃下静置(242)小时。当气温较低时,可以适当延长时间,但不应超过两昼夜。试件拆模厚应立即放入温度为(202℃),相对湿度90%以上的标准养护室养护养护期间,试块彼此之间的间隔不小于10mm。养护至28d后进行试压。
B、蒸压加气混凝土砌块同一品种、同一密度等级、同一强度,以一万块为一批,不足亦按一批计。
C、烧结页岩实心砖同一品种、同一强度等级,以十万块为一批,不足亦按一批计。