住宅外墙内保温做法标准
一、单元户型
1、首层入户大堂无空调则不做保温,有则需做。
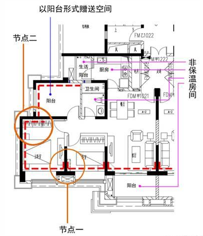
2、节能计算书及施工措施表中须明确外阳台及厕所、厨房等非保温空间不做保温。(参见附图1)
3、对于以阳台形式赠送的空间,将其按普通房间考虑, 保温做在外墙内侧。(参见附图1)
4、T字撞墙保温按规范转角做50公分。厚度按规范做,如果可拿到设计单位签发的技术核定单,则可做成与抹灰层同厚。(参见附图1节点一)

5、相邻房间外墙有凹凸关系时,墙体冷热桥搭接处向内做50公分,若保温墙体范围超过房间整个墙面长度的一半且剩余部分长度在1米以内,则做至阴角处收口。(参见附图1节点二,上图)
6、中空玻化微珠保温体系中有保温的墙体不必再做水泥砂浆抹灰。
二、飘窗上、下口板及侧面需做保温,其厚度原则上同保温设计厚度,但如超过窗框厚度,则应保证顺接窗框。(参见附图2)

三、其他方面内容
1、外立面为全幕墙结构的建筑(如写字楼),保温结构统一在幕墙结构体系中考虑。
2、底商外墙在保证验收能通过的情况下可不做保温。
1、外墙阳角按瓷砖压缝贴法,保证阳角顺直。

2、外立面所有窗口、空调百页及赠送阳台外口,洞口四周面砖铺贴至铝合金框边。

3、零砖小于半砖的,切两块砖均分。

4、不上人屋面女儿墙部分只贴至墙顶面,内侧不往下翻,上人屋面女儿墙内侧从顶面往下翻900mm内贴满。

5、门窗洞边不采用半砖铺贴,采用一块整砖铺贴,半块砖铺贴位置根据排版确定。
6、所有悬空梁四方贴砖拉通;露台、阳台梁砖上口铺贴至梁内侧,下口翻一匹砖,做鹰嘴。

7、公共区域外结构板内墙面全部满贴外砖;结构板属于赠送部分不贴砖,采用外墙防水腻子刷外墙涂料。

8、空调板有百页的贴至百页铝合金框边,无百页的上下翻边一匹砖。

9、面砖粘贴必须使用我司指定品牌的粘接剂。
10、面砖勾缝必须使用我司指定品牌的勾缝剂,不得使用水泥砂浆勾缝。
11、外墙面砖大面积施工前,施工单位必须做样板墙,经公司各部门确认后再大面积施工,样板墙必须做粘结强度试验,粘接强度满足规范要求。
面砖粘贴时粘结层厚度为3-5mm,面砖卧灰应饱满。