一、工程介绍
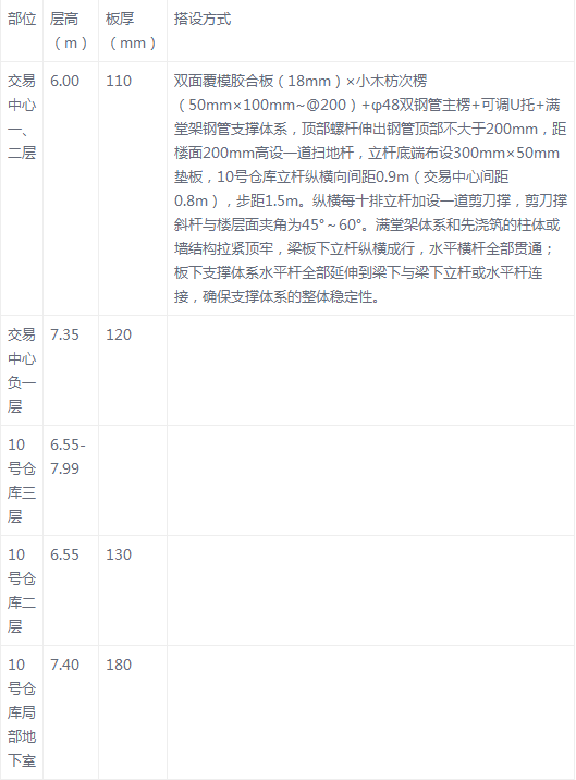
项目支模最大跨度为11.6m,含局部地下室,层高7.4m,一层支模高度为8.95m,屋顶为斜屋面,最大支模高度达7.99m。
典型梁截面有5501100、550950、400950、550900、400900、350900、300850、200950不等。一层搭设时,地基刚回填,较稳定,但为确保支撑的地基稳定,需对地基进行相关的处理。其余各楼层高支模地基均为相应楼板。

1#剖面图

2#剖面图
二、板高支模
1、4.5~8m楼层板高支模设计

2、其他楼层高支模设计

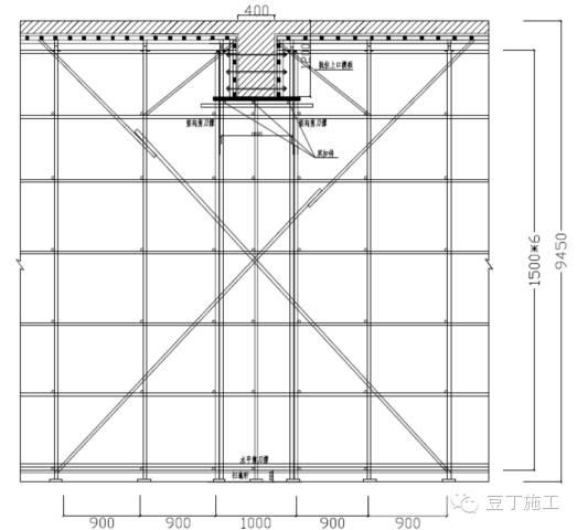
10号仓库8.95m标高板典型高支模布置:


10号仓库8.95标高满堂架搭设剖面图
交易中心屋面板典型高支模布置:


交易中心坡屋面满堂架搭设剖面图
三、 梁高支模
1、梁截面统计分析
分析本工程10号仓库及交易中心各平面图梁布置情况,对梁截面进行统计,得到支模高度大于8m,以及8m以下但线荷载超过15KN/m,需验算并经专家论证的梁截面统计表如下:
表一:层高超过8m,线荷载未超过15 KN/m

表二:层高超过8m,线荷载超过15 KN/m

表三:层高小于8m,线荷载超过15 KN/m


2、梁搭设综述
方案综述:针对上述统计,综合考虑,选取典型梁截面进行高支模设计验算。本工程高支模均采用483.5mm钢管搭设满堂脚手架支撑体系,步距1500mm,梁底木方小楞50100mm间距250mm,梁两侧立杆间距为1m。
(1)对于200(600,700,800,950),250(700,800),300(600,650,700,800,850,1000),350(850,900),梁底无立杆,两侧立杆用双扣件连接。
(2)对于400(700,750,900,950,1000,1050,1100,1200),500(600,800,900mm,1000),550(900,950,1100)梁底增设一排立杆,两侧立杆双扣件连接。梁跨度方向立杆间距为相应楼板纵横距的1/2(500mm或450mm)。
(3)对于600(700,800,950mm,1000mm,1050mm,1400),700(1000,1050,1900mm),800(1000,1200)梁底增设两排立杆,跨度方向间距450~500mm,梁两侧立杆与支撑大横杆双扣件连接。同时,扫地杆距基面200mm,顶托螺杆伸出顶部钢管不大于200mm,沿梁跨度方向于梁两测立柱下设置剪刀撑,并与周边柱按规范要求设置拉结措施。
3、典型梁具体搭设
(1)3001000梁高支模设计
梁两侧立杆间距1m,沿梁跨度方向立杆间距为450,步距1.5m;梁底50100mm木枋次楞间距250mm,主楞采用单钢管与立杆双扣件连接。梁侧模主楞采用双钢管@500,梁侧次愣采用50100mm,木枋间距250mm,采用12对拉螺杆支撑,首排距离梁底200、沿梁高间距300共3道,纵向间距500设置,支设1道45~60斜撑顶住与板相连的上口模板。其梁高支模设计如下:

3001000梁
(2)350900梁高支模设计
梁两侧立杆间距1m,沿梁跨度方向立杆间距为450,步距1.5m;梁底50100mm木枋次楞间距250mm,主楞采用单钢管与立杆双扣件连接。梁侧模主楞采用双钢管@500,梁侧次愣采用50100mm,木枋间距250mm,采用12对拉螺杆拉结,首排距离梁底200、沿梁高间距300共2道,纵向间距500设置,支设1道45~60斜撑顶住与板相连的上口模板。其梁高支模设计如下:

350900mm
(3)4001200梁高支模设计
梁两侧立杆间距1m,沿梁跨度方向立杆间距为450,步距1.5m;梁底50100mm木枋次楞间距250mm,梁底采用一道承重立杆,主楞采用单钢管与立杆双扣件连接。梁侧模主楞采用双钢管@500,梁侧次愣采用50100mm,木枋间距250mm,梁侧模采用14对拉螺杆拉结,首排距离梁底200、沿梁高间距350共三道,纵向间距500设置, 支设1道45~60斜撑顶住与板相连的上口模板。其梁高支模设计如下:

4001200mm
(4)5501100梁高支模设计
梁两侧立杆间距1m,沿梁跨度方向立杆间距为450,步距1.5m;梁底50100mm木枋次楞间距250mm,梁底采用一道承重立杆,主楞采用单钢管与立杆双扣件连接。梁侧模主楞采用双钢管@500,梁侧次愣采用50100mm,木枋间距250mm,梁侧模采用14对拉螺杆拉结,首排距离梁底200、沿梁高间距300共3道螺杆,纵向间距500设置, 支设1道45~60斜撑顶住与板相连的上口模板。其梁高支模设计如下:

5501100mm
(5)7001900梁高支模设计
梁两侧立杆间距1m,沿梁跨度方向立杆间距为500,步距1.5m;梁底50100mm木枋次楞间距250mm,梁底采用两道承重立杆,主楞采用单钢管与立杆双扣件连接。梁侧模主楞采用双钢管@500,梁侧次愣采用50100mm,木枋间距250mm,梁侧模采用14对拉螺杆拉结,首排距离梁底200、沿梁高间距350共5道螺杆,纵向间距500设置, 支设1道45~60斜撑顶住与板相连的上口模板。其梁高支模设计如下:

7001900mm
(6)8001200梁高支模设计
梁两侧立杆间距1m,沿梁跨度方向立杆间距为450,步距1.5m;梁底50100mm木枋次楞间距250mm,梁底采用两道承重立杆,主楞采用单钢管与立杆双扣件连接。梁侧模主楞采用双钢管@500,梁侧次愣采用50100mm,木枋间距250mm,梁侧模采用14对拉螺杆拉结,首排距离梁底200、沿梁高间距350共3道螺杆,纵向间距500设置, 支设1道45~60斜撑顶住与板相连的上口模板。其梁高支模设计如下:

8001200mm

四、柱高支模设计
本工程柱有多种截面形式,其中最大柱截面为10001000mm。统计所得柱截面表如下所示:

综上,柱模板采用18mm厚木胶合板为面板,50mm100mm木枋为龙骨,间距200mm采用483.5钢管加固体系,间距为400mm。为有效控制柱模垂直度,加钢管斜撑,支撑在基础底板预埋钢筋或满堂架上。

五、墙高支模设计
本工程交易展示中心外墙厚度有500、400、500、150mm四种,10号仓库局部地下室外墙厚度有500、400、350mm三种。地下室为剪力墙结构,地上墙体为砌体结构。墙模板最高支设高度为7.4m,及10号仓库局部地下室;交易中心地下一层墙模板支设高度为7.35m。此处选取交易中心地下一层进行墙模板设计,因支模高度小于8m,不对高支模进行验算。
交易中心地下一层墙模板,采用18厚木模,竖向次背楞采用50100木枋加固,距离为中到中250mm,横向采用483.5钢管加14穿墙螺杆对拉,间距500500mm。
墙加固支撑应与满堂架相连成一整体,内外墙均撑落地撑,防止砼浇筑时墙模偏位,支撑横距1500mm,步距1000mm,支撑与满堂架的连接点不少于2点。
墙模板上口采用铁丝进行调节,使上口平直,确保墙模在施工中达到横平竖直。墙模板转角及端部应加锁口以保证阳角质量,防止爆模。
墙模板安装结束后,应检查其垂直度、平整度,调节墙体落地斜撑和穿墙螺杆来调整墙模板的平直度,通墙拉线进行调节,要求落地斜撑与连接满堂架的横撑形成三角形受力,保证支撑牢固。


地下室外墙支设示意图