1. 连梁箍筋是怎么布置的?
【答】(1)中间层连梁:箍筋在洞口范围内布置。

(2)顶层连梁:箍筋在连梁纵筋水平长度范围内布置。洞口范围外箍筋间距150mm。

【依据】《11G101-1》P74
2. 如果遇到双洞口连梁,洞口间范围是否要设置连梁箍筋?
【答】洞口间范围要设置连梁箍筋,且连续通过。

【依据】《16G101-1》P78
3. 连梁拉筋怎么布置?
【答】连梁拉筋间距为箍筋间距2倍。竖向沿侧面水平筋隔一拉一。
【依据】《11G101-1》P74
4. 暗梁的纵筋是如何布置的?
【答】暗梁的纵筋在剪力墙内连续通过。
5. 暗梁的纵筋在端支座处是如何锚固的?
【答】(1)中间层暗梁端支座锚固:伸至对边弯折15d。

(2)顶层暗梁端支座锚固:上部钢筋伸至端部弯折LlE;下部钢筋伸至对边弯折15d。

【依据】《16G101-1》P79
6. 暗梁与连梁重叠时,纵筋如何布置?
【答】(1)若暗梁纵筋与连梁纵筋位置相同、规格相同,可连续贯通。

(2)若暗梁纵筋与连梁纵筋位置相同、规格不同,可将它们相互搭接,搭接长度=max(LlE,600)。

(3)若暗梁纵筋与连梁纵筋位置不同,就各自计算,互不影响。
【依据】《16G101-1》P79
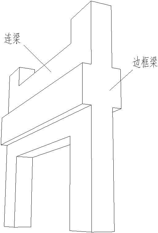
7. 边框梁与连梁重叠时,纵筋如何布置?

【答】纵筋布置方式同暗梁与边框梁重叠时布置方式一样。
即暗梁与边框梁的纵筋:
(1)位置相同,规格一致,连续通过;
(2)位置相同,规格不同,相互搭接;
(3)位置不同,各自计算,互不影响。