一般而言,冷冻水泵应设在冷水机组前端,从末端回来的冷冻水经过冷冻水泵打回冷水机组;冷却水泵设在冷却水进机组的水路上,从冷却塔出来的冷却水经冷却水泵打回机组;热水循环泵设在回水干管上,从末端回来的热水经过热水循环泵打回板式换热器。
冷却塔上的阀门设计
1、冷却塔进水管上加电磁阀(不提倡使用手动阀)
2、管泄水阀应该设置于室内,(若放置在室外,由于管内有部分存水,冬天易冻)。
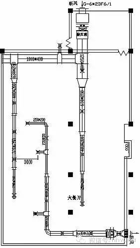
电子水处理仪的安装位置
放置于水泵后面,主机前面。
过滤器前后的阀门
过滤器前后放压力表。
水泵前后的阀门
1、水泵进水管依次接:蝶阀-压力表-软接。
2、水泵出水管依次接:软接-压力表-止回阀-蝶阀。

分/集水器
1、分/集水器之间加电动压差旁通阀和旁通管(管径一般取DN50)。
2、集水器的回水管上应设温度计。

各种仪表的位置
布置温度表,压力表及其他测量仪表应设于便于观察的地方,阀门高度一般离地1.2-1.5m,高于此高度时,应设置工作平台。
机组的位置
两台压缩机突出部分之间的距离小于1.0m,制冷机与墙壁之间的距离和非主要通道的距离不小于0.8m, 大中型制冷机组(离心,螺杆,吸收式制冷机)其间距为1.5-2.0m。制冷机组的制冷机房的上部最好预留起吊最大部件的吊钩或设置电动起吊设备。
问题点一:水管的坡度要合理
1、水平支、干管,沿水流方向应保持不小于0.002的坡度;
2、机组水盘的泄水支管坡度不宜小于0.01。
3、因条件限制时,可无坡度敷设,但管内流速不得小于0.25m/s。
问题点二:冷凝水干管的设计
1、冷凝水应就近排放,一般排于卫生间地漏。
2、凝水干管的长度设计要考虑因坡降引起的高度,管两端高低落差距离不能大于吊顶高度。

问题点三:选择合适的管路阀件
1、立管与水平管连接处装调节阀
3、水管路的每个最高点设排气装置(当无坡度敷设时,在水平管水流的终点)
3、立管最低处连接关断阀,便于维修立管
4、水管的热力补偿可以利用弯头自然补偿,不足时也可加设膨胀补偿器
问题点四:水管布置
1、立管在管道井内不宜乱放,宜靠墙靠角安放(见附图)
2、管道在水平面内禁止穿越楼梯、剪力墙、配电室等
问题点五:水管保温
1、保温结构一般由保温层和保护层组成
2、保温层厚度要根据热力计算确定,经验值可参考《民用建筑空调设计》。
3、保温材料可因地制宜,就近取材,应采用非燃或难燃材料,必须符合《建筑设计防火规范》。
问题点六:水力计算
1、空调水系统各并联环路压力损失差额,不应大于15%;
2、水管路比摩阻宜控制在100-300Pa/m。
问题点七:水系统补水
1、空调水系统补水应经软化水处理,仅夏天供冷的系统可采用电子水处理仪;
2、系统补水量取系统水容量的2%;
3、补水点宜设在循环水泵的吸入段。
末端设计中应注意的问题点
1.接风管的风盘的风口设计,见附图。
1)第一个送风口与风盘的出风口的距离要适当;
2)带有两个出风口的风盘送风管要变径;
3)风盘的送风口与回风口距离要适当。(5米)
2.风机盘管的进出水管路设计,见附图1-2。
1)进出水管路为上进下出;
2)风盘与供回水干管的相对标高不小于200mm;
3)进水管上依次接过滤器、闸阀、和软接;
4)出水管上接软接、闸阀。
3.同型号风盘的出风口数量的确定
同型号风盘的出风口数量可视空调区域的不同而定,见附图1-3。
4.两个小包间共用一个风盘的气流组织
两个小包间共用一个风盘,每个包间可设一个出风口,两个包间的回风口可以通过串联接到风盘的回风口上,见附图1-4。
5.靠近窗口的风盘布置:
为抵挡室外冷负荷渗透,风机盘管应该尽量靠近外墙、外窗布置。见附图1-5。
6.大空间的风机盘管的布置:
在大空间布置风机盘管时,宜以中间回风,两边送风的气流组织方式布置风盘,见附图1-6。
7.嵌入机的布置:嵌入机布置时离边墙的距离不得大于3米;
诸如会议室、多功能厅等布置嵌入机时应该选用小冷量的多台机器,均匀布置。
8.内机选型:大空间可选用嵌入机,长方形办公室最好选用卡式机。
9.风口选型:高空间不宜选用散流器送风(风不宜送达工作区),最好使用可调双层百叶送风口。
10.回风箱的做法:
空气处理机的回风设计:在回风处做比较大的回风箱,在回风箱一侧开回风口,该做法可调节气流,降低噪音),见附图1-7。
11.根据房间功用和冷负荷设计合适的风盘。
风盘选型要以设计负荷为依据,风盘布置要考虑空调房间的特点尽量布置美观。(见附图1-8)。
12.送、排风口的距离要适当。
排风口与送风口至少保持3米的距离以防气流短路,图示:
图1(效果差)原因:送风口和排风口距离太近。
图2(效果好)

13.选用合适的风阀。
从原则上讲,系统风压平衡的误差在10%-15%以内,可以不设调节阀,但实际上仅靠调风管尺寸来调风压是很困难的,所以,要设风量调节阀进行调节。
① 风管分支处应设风量调节阀。在三通分支处可设三通调节阀,或在分支处设调节阀。
② 明显不利的环路可以不设调节阀,以减少阻力损失。
③ 在需防火阀处可用防火调节阀替代调节阀。
④ 送风口处的百叶风口宜用带调节阀的送风口,要求不高的可采用双层百叶风口,用调节风口角度调节风量。
⑤ 新风进口处宜装设可严密开关的风阀,严寒地区应装设保温风阀,有自动控制时,应采用电动风阀。