一、建筑屋面女儿墙施工做法改良原因
平屋面为雨水渗漏的重灾区,是业主投诉集中的部位之一,严重影响业主对项目品质的评价。女儿墙作为平屋面与立面的交接处,应作为防渗漏的重点环节予以高度重视。

设计缺陷示例
原因分析:
1.女儿墙构造不合理,造成裂缝的产生,如上侧图示。
2.防水措施不到位:如附加防水层遗漏。
3.女儿墙压顶处未作滴水处理。
4.泛水高度不够,造成雨水渗漏。
5.砖砌女儿墙顶部未作钢砼压顶,造成裂缝引起渗漏。
6.施工单位为节省造价未按要求施工,如未安装密封膏等,导致屋
面砂浆与女儿墙挤塑保温层之间产生裂缝等。
造成屋顶女儿墙部位雨水渗漏的原因多种多样,因此在设计和施工
过程中要谨慎对待,避免出现渗漏现象。


渗漏实例照片
二、建筑屋面女儿墙改良构造做法及说明
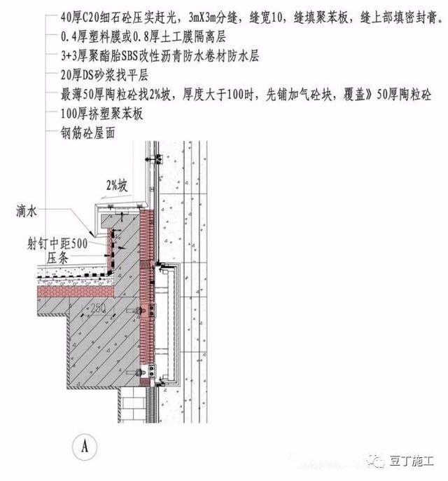
(一)第一种正置式平屋面女儿墙构造做法及说明
1、做法特点
1)本做法适用于平屋面防渗漏处理。屋面做法为正置式,屋面找坡应不小于2%
2)雨水口、排气管等四周应严密封堵。
3)平屋面与女儿墙交界处做附加防水层250宽。
4)保证泛水高度不小于250。

2、工艺流程及操作要点
1)保温层
100厚挤塑聚苯板(女儿墙内屋面。注:以下除特别说明外都指女儿墙内屋面做法),施工前要保证屋面清理干净。
2)找坡层
铺设前弹好标高线,控制好陶粒砼的厚度。
配合比要满足设计要求。冬期施工时陶粒上洒水不得受冻,应有足够的保温材料覆盖。
3)找平层
在墙角处要做R100的水泥砂浆抹角。
4)防水层
基层处理分格缝灌沥青砂涂刷基层处理剂铺贴卷材附加层热熔铺贴大面卷材热熔封边卷材收头淋水试验保护层施工。
铺设前地面一定要清理干净,伸出屋面的管道、设备或预埋件等,应在防水施工前安设完毕,不得在其施工完毕后进行打孔和重物冲击。
5)附加层
平屋面与女儿墙交界处做附加防水层250宽
6)女儿墙保温
DEA砂浆粘贴30厚挤塑聚苯板(女儿墙整个墙体)。
女儿墙外只做到幕墙处,不需做到屋面防水层上。
7)网格布
4厚BDI砂浆抹面,压入一层玻纤网格布(女儿墙整个墙体),抹面一定要平整。
8)面层
分缝一定要弹好线,保证缝的整齐,平直。
9)保护层
20厚DS砂浆保护层(女儿墙外屋面)
3、材料成本说明
100厚挤塑保温:140元/㎡;3+3 SBS:100元/㎡;20厚DS砂浆:15元/㎡
注:因品牌、地区差异,材料价格会有不同,以上价格仅供参考。
(二)第二种正置式平屋面女儿墙构造做法及说明
1、做法特点
1)本做法适用于平屋面防渗漏处理。屋面做法为正置式,屋面找坡应不小于2%
2)雨水口、排气管等四周应严密封堵。
3)平屋面与女儿墙交界处做附加防水层250宽。
4)保证泛水高度不小于250。

2、工艺流程及操作要点
1)保温层
100厚挤塑聚苯板(女儿墙内屋面。注:以下除特别说明外都指女儿墙内屋面做法),施工前要保证屋面清理干净。
2)找坡层
铺设前弹好标高线,控制好陶粒砼的厚度。配合比要满足设计要求。冬期施工时陶粒上洒水不得受冻,应有足够的保温材料覆盖。
3)找平层
在墙角处要做R100的水泥砂浆抹角。
4)防水层
基层处理分格缝灌沥青砂涂刷基层处理剂铺贴卷材附加层热熔铺贴大面卷材热熔封边卷材收头淋水试验保护层施工。
铺设前地面一定要清理干净,伸出屋面的管道、设备或预埋件等,应在防水施工前安设完毕,不得在其施工完毕后进行打孔和重物冲击。
5)附加层
平屋面与女儿墙交界处做附加防水层250宽。
6)隔离层
0.4厚塑料膜或0.8厚土工膜隔离层。
7)面层
分缝一定要弹好线,保证缝的整齐,平直
3、材料成本说明
100厚挤塑保温:140元/㎡;3+3 SBS:100元/㎡;20厚DS砂浆:15元/㎡
注:因品牌、地区差异,材料价格会有不同,以上价格仅供参考。
(三)第三种正置式平屋面女儿墙构造做法及说明
1、做法特点
1)本做法适用于平屋面防渗漏处理。屋面做法为正置式,屋面找坡应不小于2%
1)雨水口、排气管等四周应严密封堵。
3)平屋面与女儿墙交界处做附加防水层250宽。
4)保证泛水高度不小于250。

2、工艺流程及操作要点
1)保温层
100厚挤塑聚苯板(女儿墙内屋面。注:以下除特别说明外都指女儿墙内屋面做法),施工前要保证屋面清理干净。
2)找坡层
铺设前弹好标高线,控制好陶粒砼的厚度。
配合比要满足设计要求。冬期施工时陶粒上洒水不得受冻,应有足够的保温材料覆盖。
3)找平层
在墙角处要做R100的水泥砂浆抹角。
4)防水层
基层处理分格缝灌沥青砂涂刷基层处理剂铺贴卷材附加层热熔铺贴大面卷材热熔封边卷材收头淋水试验保护层施工。
铺设前地面一定要清理干净,伸出屋面的管道、设备或预埋件等,应在防水施工前安设完毕,不得在其施工完毕后进行打孔和重物冲击。
5)附加层
平屋面与女儿墙交界处做附加防水层250宽。
6)隔离层
0.4厚塑料膜或0.8厚土工膜隔离层。
7)面层
分缝一定要弹好线,保证缝的整齐,平直。
3、材料成本说明
100厚挤塑保温:140元/㎡;3+3 SBS:100元/㎡;20厚DS砂浆:15元/㎡
注:因品牌、地区差异,材料价格会有不同,以上价格仅供参考。
(四)建筑种植屋面女儿墙构造做法及说明
1、做法特点
1)本做法适用于平屋面防渗漏处理。屋面做法为种植屋面,屋面边缘做排水沟,上覆金属篦子,靠女儿墙一侧做石材或砼步道板,方便人员行走。
2)屋面防水层应从排水沟下方铺设,而不应卷起沿排水沟壁铺贴,这样可减少防水层弯折带来的防水隐患。
3)步道板下应附加一层防水卷材,铺贴至外侧幕墙扣板内,防止雨水从缝隙渗入。

2、工艺流程及操作要点
1)找坡层
铺设前弹好标高线,控制好陶粒砼的厚度。
配合比要满足设计要求。冬期施工时陶粒上洒水不得受冻,应有足够的保温材料覆盖。
2)找平层
在墙角处要做R100的水泥砂浆抹角。
3)保温层
施工前要保证屋面清理干净。
4)找平层
在墙角处要做R100的水泥砂浆抹角。
5)防水层
基层处理分格缝灌沥青砂涂刷基层处理剂铺贴卷材附加层热熔铺贴大面卷材热熔封边卷材收头淋水试验保护层施工。
铺设前地面一定要清理干净,伸出屋面的管道、设备或预埋件等,应在防水施工前安设完毕,不得在其施工完毕后进行打孔和重物冲击。
6)保护层
铺设前弹好标高线,控制好陶粒砼的厚度。配合比要满足设计要求。冬期施工时陶粒上洒水不得受冻,应有足够的保温材料覆盖。
7)隔离层
0.6厚塑料隔离层或聚酯纤维隔离层。
8)蓄排水板
将排水板杯状口朝上铺装,齿孔相扣,排水板上面覆盖土工布,土工布相互搭接10~20cm, 防止泥水穿过土工布,淤堵蓄排水系统,造成排水不畅,蓄水量减少,在土工布上面铺10~20mm中粗砂,形成渗透过滤层,可阻止种植土流失。
9)密封膏
嵌缝一定要密实。
10)种植土
厚度要控制好,过厚影响排水,过薄影响植物生长。
3、材料成本说明
100厚挤塑保温:140元/㎡;3+3 SBS:100元/㎡;20厚DS砂浆:15元/㎡
注:因品牌、地区差异,材料价格会有不同,以上价格仅供参考。
(五)平屋面带玻璃栏板女儿墙构造做法及说明
1、做法特点
1)本做法适用于平屋面带玻璃栏板做法。
2)玻璃栏板必须为安全玻璃,高度满足规范安全要求。
3)栏板与女儿墙连接部位主要保温、防水层的修补。

2、工艺流程及操作要点
1)保温层
100厚挤塑聚苯板(女儿墙内屋面。注:以下除特别说明外都指女儿墙内屋面做法),施工前要保证屋面清理干净.
2)找坡层
铺设前弹好标高线,控制好陶粒砼的厚度。配合比要满足设计要求。冬期施工时陶粒上洒水不得受冻,应有足够的保温材料覆盖。
3)找平层
在墙角处要做R100的水泥砂浆抹角。
4)防水层
基层处理分格缝灌沥青砂涂刷基层处理剂铺贴卷材附加层热熔铺贴大面卷材热熔封边卷材收头淋水试验保护层施工。
铺设前地面一定要清理干净,伸出屋面的管道、设备或预埋件等,应在防水施工前安设完毕,不得在其施工完毕后进行打孔和重物冲击。
5)附加层
平屋面与女儿墙交界处做附加防水层250宽。
6)隔离层
0.4厚塑料膜或0.8厚土工膜隔离层。
7)面层
分缝一定要弹好线,保证缝的整齐,平直。
3、材料成本说明
100厚挤塑保温:140元/㎡;3+3SBS:100元/㎡;20厚DS砂浆:15元/㎡