1、施工图设计标准化
施工图设计需考虑工业化建筑进行标准化设计,通过标准化的模数、标准化的构配件通过合理的节点连接进行模块组装最后形成多样化及个性化的建筑整体。

2、构件拆分设计标准化
构件厂根据设计图纸进行预制构件的拆分设计,构件的拆分在保证结构安全的前提下,尽可能减少构件的种类,减少工厂模具的数量。

3、节点设计标准化
预制构件与预制构件、预制构件与现浇结构之间节点的设计,需参考国家规范图集并考虑现场施工的可操作性,保证施工质量,同时避免复杂连接节点造成现场施工困难。
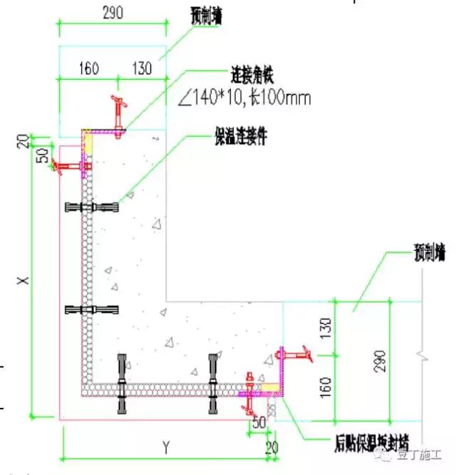
3.1、预制外墙节点设计

预制外墙套筒连接区竖向节点大样
采用半灌浆套筒,预制墙板内钢筋通过机械连接与灌浆套筒进行连接,下层墙体外伸钢筋插入上层墙体套筒空腔内,后注入注入高强灌浆料进行锚固。
墙体外侧采用弹性防水密封胶条进行封堵,防止注浆料从外侧渗漏,同时可保证上下层墙体之间保温的连续性。

非套筒区域直接通过注入高强灌浆料连接,现浇板面筋伸入预制外墙进行弯折锚固。
墙体顶部设计倒梯形型箍帽保证墙体竖向钢筋的连续。

预制外墙板墙体一侧预留钢筋为开口箍,出筋长度为180mm。
后浇段内墙体箍筋为分离式箍筋,便于后浇段区域箍筋的绑扎。
3.2、PCF板加固节点设计

L型PCF板加固节点
PCF板与混凝土后浇段通过保温拉结件粘接连接,PCF板与两侧预制外墙连接通过设置L型连接角铁,角铁型号为14010,长100mm。
转角PCF板安装时通过角铁进行初步的固定,保证PCF板与相邻两侧外墙之间的平整度及拼缝;

叠合板与端支座之间水平方向设计搭接10mm,墙体可对叠合板起到部分支撑作用,同时可以防止漏浆。
3.3、叠合板连接设计

叠合板与叠合板拼缝处预留120mm宽、5mm厚的凹槽,通过此凹槽预留因楼板标高控制偏差或楼板厚度偏差引起的错台问题,后期装修时在凹槽内铺设网格布作为加强措施进行装饰面的施工,保证楼板的整体平整度。
3.4、阳台、空调板节点设计

预制阳台及空调板为悬挑结构,与楼板连接采用甩筋方式连接。预制阳台上部钢筋伸入楼面现浇板,与面筋绑扎连接。预制阳台与预制外墙内叶板搭接10mm。
3.5、预制楼梯节点设计

3.6、门窗部位节点设计

门洞口细部做法
预制外墙门洞左右两侧及上部设置防腐木砖,用于门的固定,在底部设置一道加强钢加强墙体的整体刚度,保证墙体吊装过程中不因墙体自重发生损坏。


在窗洞上下口和侧部都设置企口、防腐木,防腐木尺寸为100X60X50mm,内穿锚筋一端锚固入内叶墙一端锚固入外叶墙,50mm厚的防腐木入外叶墙15mm,入内叶墙5mm。

窗框固定在防腐木上,窗框与预制构件之间的缝隙用发泡剂填充,并用硅酮耐候密封胶封堵。窗户四边留有20mm企口。
3.7、预留洞口节点设计

外挂架预留孔采用喇叭口形:其中内叶墙内侧面、内叶墙外侧面、外叶墙外侧面处孔径分别为30mm、40mm、60mm。

在预制外墙板上预留向下倾斜的洞口。空调孔洞需预留在预制墙板中。
预制外墙及保温板部位DN75PVC直接头提前在预制构件预埋,后浇墙板DN75PVC管在现场后连接。
3.8、预制外墙拼缝处节点处理

外墙水平缝节点
外墙从内至外依次为现浇混凝土、挤塑聚苯板保温层、混凝土外叶板、聚乙烯泡沫塑料棒、建筑耐候密封胶,保温层之间选用弹性防水密封材料封堵。
聚乙烯泡沫塑料棒,塞入指定深度,保证建筑耐火密封胶打入一定深度,起到密封作用。

外墙由内至外依次为现浇混凝土、岩棉封堵、防水空腔、聚乙烯泡沫塑料棒、建筑耐候密封胶。