一、基本要求
(1) 施工现场临时用电设备在 5 台及以上或设备总容量在 50KW 及以上者,应编制用电组织设计,并进行审核、审批,监理审查,临时用电工程必须经编制、审核、批准部门和使用单位共同验收,合格后方可投入使用。
(2)施工现场临时用电必须采取 TN-S 系统,符合三级配电两级保护,达到一机一闸一漏一箱的要求;
三级配电是指总配电箱、分配电箱、开关箱三级控制,实行分级配电;
两级保护是指在总配电箱和开关箱中必须分别装设漏电保护器,实行至少两级保护。

(3)电工必须持证上岗,安装、巡查、维修或拆除临时用电设备和线路必须由电工完成,施工现场临时用电必须建立安全技术档案;
临时用电工程应按分部、分项工程定期进行检查,定期检查时,应复查接地电阻值和绝缘电阻值,并做好相关记录。
严格实行一机、一闸、一漏、一箱的用电管理。
配电箱、开关箱的送电和停电的操作程序:
送电操作程序:总配电箱 -----分配电箱 ------开关电箱;停电操作程序:开关箱 --------- 分配电箱 ------- 总配电箱。
(4)配电系统应设置配电柜或总配电箱、分配电箱、开关箱,实行三级配电。
配电系统宜使三相负荷平衡。
220V 或 380V 单相用电设备宜接220/380V 三相四线系统;
当单相照明线路电流大于 30A 时, 宜采用 220/380V三相四线制供电。
(5) 总配电箱以下可设若干分配电箱;分配电箱以下可设若干开关箱。
总配电箱应设在靠近电源的区域,分配电箱应设在用电设备或负荷相对集中的区域,分配电箱与开关箱的距离不得超过 30m,开关箱与其控制的固定式用电设备的水平距离不宜超过 3m。

二、三级配电箱
三级配电选用的配电箱应符合国家标准和地方要求,选用的电器元件应有生产许可证和产品合格证,配电箱应注明编号、责任单位、责任人和联系电话,箱内张贴配电线路图和巡检记录;
配电箱应采用冷轧钢板式阻燃绝缘材料制作,配电箱箱体钢板厚度不得小于 1.2mm,箱体表面应做防腐处理。
总配电箱
总配电箱电器安装板必须分设 N 线端子板和 PE 线端子板。
N 线端子板必须与金属电器安装板绝缘;
PE 线端子板必须与金属电器安装板做电气连接。
总配电箱应设置总隔离开关以及分路隔离开关和分路漏电保护器;
隔离开关应设置于电源进线端,应采用分断时具有可见分断点,并能同时断开电源所有极的隔离电器;
如果采用分断时具有可见分断点的断路器,可不另设隔离开关。

构造说明:总配电箱、开关箱应设罝漏电保护装罝。
其中,总配电箱漏电保护器额定漏电动作电流大于 30mA、额定漏电动作时间大于 0.1s,但其两者乘积不应大于 30mA.s。
分配电箱
分配电箱应设在用电设备或负荷相对集中的区域,分配电箱与开关箱的距离不得超过 30m;
分配电箱应装设总隔离开关、分路隔离开关以及总断路器、分路断路器或总熔断器、分路熔断器。电源进线端严禁采用插头和插座做活动连接。

构造说明:固定式分配电箱中心点与地面的垂直距离应为 1.4m,配电箱支架应采用 L40404mm 角钢焊制。
开关箱
开关箱必须装设隔离开关、断路器或熔断器,以及漏电保护器,隔离开关应采用分断时具有可见分段点,能同时断开电源所有极的隔离电器,并应设置于电源进线端。
开关箱漏电保护器额定漏电动作电流不应大于30mA,额定漏电动作时间不应大于 0.1s,潮湿和腐蚀性场地漏电动作电流不应大于 15mA。
开关箱与设备之间的距离如图所示。

三、开关箱与用电设备
开关箱设置
用于单台固定设备的开关箱宜采用钢管扣件固定在设备附近,固定式开关箱箱体中心距地面垂直高度为 1.4~1.6m,移动式开关箱箱体中心距地面垂直高度为 0.8~1.6m。
设备开关箱与其控制的固定用电设备的水平距离不宜超过 3m。

构造说明:连接固定设备的电缆宜埋地, 且从地下 0.2m至地面以上 1.5m处必须加设防护套管,防护套管内径不应小于电缆外径的 1.5 倍。
开关箱与电焊机设置
电焊机变压器的一次侧电源线长度不应大于 5m, 其电源进线处必须设置防护罩,电焊机二次侧焊把线应采用防水橡皮护套铜芯软电缆,电缆长度不应大于 30m;
电焊机二次侧应安装触电保护器(空载降压保护装置) ,电焊机外壳应做保护接零;
使用电焊机焊接时必须穿戴防护用品,严禁露天冒雨从事焊接作业。

四、楼层配电
楼层分配电中,电缆垂直敷设应利用工程中的竖井、垂直孔洞,宜靠近用电负荷中心。
垂直布置的电缆每层楼固定点不得少于一处。
电缆固定宜采用角钢做支架,瓷瓶做绝缘子固定。

构造说明:(1)每层分配电箱电源电缆应从下一层分配电箱中总隔离开关上端头引出。(2)楼层电缆严禁穿越脚手架引入。
五、接地、接零保护系统及防雷
(1)在施工现场专用变压器的供电的 TN-S 接零保护系统中,电气设备的金属外壳必须与保护零线连接。
保护零线应由工作接地线、 配电室(总配电箱)电源侧零线或总漏电保护器电源侧零线处引出。
(2)施工现场与外电线路共用同一供电系统时,电气设备的接地、接零保护应与原系统保持一致。
不得一部分设备做保护接零,另一部分设备做保护接地。
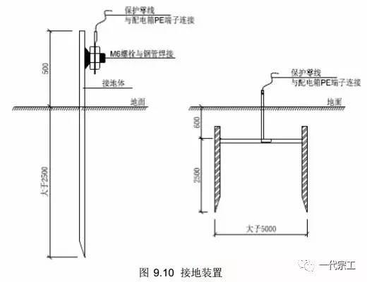
(3)工作接地电阻不得大于 4,重复接地电阻不得大于 10。
(4)每一接地装置的接地线应采用两根及以上导体,在不同点与接地体做电气连接。
不得采用铝导体做接地体或地下接地线。
垂直接地体宜采用热镀锌扁钢、钢管或光面圆钢,不得采用螺纹钢和铝材,垂直接地体的间距一般不小于 5m, 接地体顶面埋深不应小于 0.6m; 水平接地线为热镀锌扁钢 40X4、 12 圆钢。
(5)施工现场起重机、物料提升机、施工升降机、脚手架应按规范要求采取防雷措施,防雷装置的冲击接地电阻值不得大于 30。
做防雷接地机械上的电气设备,保护零线必须同时作重复接地。

构造说明:
1 、为工作接地;
2、PE 线重复接地;
3、电气设备金属外壳 (正常不带电的外露可导电部分 );
4、L1、 L2、 L3:相线; N:工作零线; PE:保护零线;
5、DK :总电源隔离开关;
6、RCD:总漏电保护器 (兼有短路、过载、漏电保护功能的漏电断路器 );
7、T:变压器。

六、配电线路
施工现场电缆线铺设必须埋地或架空,电缆线中必须包含全部工作芯线和用作保护零线或保护线的芯线,需要三相四线制配电的电缆必须采用五芯电缆,电缆线路应采用埋地或架空敷设,严禁地面明设,并应避免机械损伤和介质腐蚀。
埋地电缆路径应设方位标志,电缆埋设与架空如下:

构造说明:(1)电缆类型应根据敷设方式、环境条件选择。电缆直接埋地敷设的深度不应小于 0.7m,并应在电缆紧邻上下左右侧均匀敷设不小于 50mm 厚的细砂,然后覆盖砖或混凝土板等硬质保护层。
(2)埋地电缆在穿越建筑物、构筑物、道路、易受机械伤害、介质腐蚀场所及引出地面从 2.0m 高到地下 0.2m 处, 必须加设防护套管, 防护套管内径不应小于电缆外径的 1.5 倍。
(3) 埋地电缆与其附近外电电缆和管沟的平行间距不得小于 2m,交叉间距不得小于 1m。
(4)架空线路的档距不得大于 35m,架空线路的线距不得小于 0.3m,靠近电杆的两导线的间距不得小于 0.5m;
架空线最大弧垂与地面的最小垂直距离为 4m。
(5)架空电缆应沿电杆、支架或墙壁敷设,并采用绝缘子固定,绑扎线必须采用绝缘线,固定点间距应保证电缆能承受自重所带来的荷载,沿墙壁敷设时最大弧垂距地面不得小于 2.0m。
(6)电缆线路必须有短路保护和过载保护,短路保护和过载保护电器与电缆的选配应符合相关要求。
七、现场照明
(1)一般场所宜选用额定电压为 220V 的照明。
(2)室外 220V 灯具距离地面不得低于 3m,室内 220V 灯具距离地面不得低于 2.5m,在隧道、高温、有导电灰尘、比较潮湿或者灯具离地面高度低于 2.5m 等场所的照明,电源电压不应大于 36V。
(3)潮湿和易触殛带电体场所的照明,电源电压不得大于 24V
(4)特别潮湿场所、导电良好的地面、锅炉或金属容器内照明,电源电压不得大于 12V
(5)照明灯具的金属外壳必须与 PE 线相连接,照明开关箱内必须设置隔离开关、短路与过载保护器和漏电保护器。
(6) 普通灯具与易燃物距离不宜小于 300mm;
聚光灯、 碘钨灯等高热灯具与易燃物距离不宜小于 500mm,且不得直接照射易燃物。
八、外电防护
(1)在建工程不得在外电架空线路正下方施工、搭设作业棚、建造生活设施或堆放构件、架具、材料及其它杂物等。
(2)在建工程(含脚手架)的周边与外电架空线路的边线的最小安全操作距离应符合要求。

(3)在施工现场一般采取搭设防护架,其材料应使用木质等绝缘性材料。
防护架距外电线路一般不小于 1m, 必须停电搭设 (拆除时也要停电) 。
防护架距作业面较近时,应用硬质绝缘材料封严,防止脚手架、钢筋等误穿越触电,当架空线路在塔吊等起重机械的作业半径范围内时,其线路上方也应有防护措施,搭设成门型,其顶部可用 5cm 厚木跳板或相当于 5cm木板强度的材料盖严。
为警示起重机作业,可在防护架上端间断设置小彩旗,夜间施工应有彩灯(或红色灯泡) ,其电源电压应为 36V。
(4)施工现场的机动车道与外电架空线路交叉时,架空线路的最低点与路面的最小垂直距离应符合下表规定。

(5)起重机严禁越过无防护设施的外电架空线路作业。
在外电架空线路附近吊装时,起重机的任何部位或被吊物边缘在最大偏斜时与架空线路边线的最小安全距离应符合下表规定。

(6)施工现场开挖沟槽边缘与外电埋地电缆沟槽边缘之间的距离不得小于 0.5m。
(7)当架空线路与在建工程(含脚手架)的周边、机动车道及起重机等的最小安全距离达不到上述第(4)、(5)、(6)条时,必须采取绝缘隔离防护措施,并应悬挂醒目的警告标志。
(8)架设防护设施时,必须经有关部门批准,采用线路暂时停电或其它可靠的安全技术措施,并应有电气工程技术人员和专职安全人员监护。
(9)防护设施应坚固、稳定,且对外电线路的隔离防护应达到 IP30级。防护设施与外电线路之间的安全距离不应小于下表所列数值。
