
试验表明并筋的承载能力与原各单根钢筋的总和相同,但由于配筋密集握裹力的相对不足(二并筋影响不大,三并筋影响稍多)将影响其受力性能。经试验分析确定,这种影响可以用并筋(钢筋束)的等效直径来表述。即并筋可视为计算截面相等的单根等效钢筋。
不知道各位朋友平常有没有好好总结,今天小编就给大家汇总一下,在各个规范中,对并筋是怎么讲解的!
混凝土结构设计规范[2015修订]4材料4.2钢筋
4.2.7 构件中的钢筋可采用并筋的配置形式。直径28mm及以下的钢筋并筋数量不应超过3根;直径32mm的钢筋并筋数量宜为2根;直径36mm及以上的钢筋不应采用并筋。并筋应按单根等效钢筋进行计算,等效钢筋的等效直径应按截面面积相等的原则换算确定。
混凝土结构设计规范[2015修订]8构造规定8.4钢筋的连接
8.4.3 同一构件中相邻纵向受力钢筋的绑扎搭接接头宜互相错开。钢筋绑扎搭接接头连接区段的长度为1.3倍搭接长度,凡搭接接头中点位于该连接区段长度内的搭接接头均属于同一连接区段(图8.4.3)。同一连接区段内纵向受力钢筋搭接接头面积百分率为该区段内有搭接接头的纵向受力钢筋与全部纵向受力钢筋截面面积的比值。当直径不同的钢筋搭接时,按直径较小的钢筋计算。

图8.4.3 同一连接区段内纵向受拉钢筋的绑扎搭接接头
注:图中所示同一连接区段内的搭接接头钢筋为两根,当钢筋直径相同时,钢筋搭接接头面积百分率为50%。
位于同一连接区段内的受拉钢筋搭接接头面积百分率:对梁类、板类及墙类构件,不宜大于25%;对柱类构件,不宜大于50%。当工程中确有必要增大受拉钢筋搭接接头面积百分率时,对梁类构件,不宜大于50%;对板、墙、柱及预制构件的拼接处,可根据实际情况放宽。
并筋采用绑扎搭接连接时,应按每根单筋错开搭接的方式连接。接头面积百分率应按同一连接区段内所有的单根钢筋计算。
并筋中钢筋的搭接长度应按单筋分别计算。
混凝土结构设计规范[2015修订]9结构构件的基本规定9.2梁
4在梁的配筋密集区域宜采用并筋配筋形式。
建筑工程预应力施工规程CECS180:20054构造要求4.1先张预应力
4.1.2 当先张法预应力钢丝难以按单根方式配筋时,可采用相同直径钢丝并筋方式配筋。并筋的等效直径,对双并筋应取单筋直径的1.4倍,对三并筋应取单筋直径的1.7倍。并筋的保护层厚度、锚固长度和预应力传递长度等均应按等效直径考虑。
预应力混凝土结构设计规范JGJ369-201611构造规定11.1一般规定
11.1.3预应力混凝土单向板应符合下列规定:
2 预应力筋沿板宽单根或并筋均匀布置,每束预应力筋不宜超过4根,间距不宜大于1.2m;
预应力混凝土结构设计规范JGJ369-201611构造规定11.1一般规定
11.1.4预应力混凝土双向板应符合下列规定:
2双向均沿板宽单根或并筋应均匀布筋,每束预应力筋不宜超过4根,间距不宜大于1.2m;

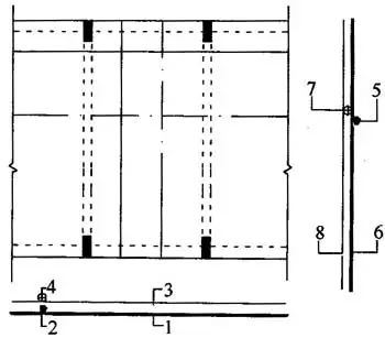
图11.1.4 预应力筋与普通钢筋的位置关系
1-板底短向普通钢筋;2-板底长向普通钢筋;3-板底短向预应力筋;4-板底长向预应力筋;5-板顶短向普通钢筋;6-板顶长向普通钢筋;7-板顶短向预应力筋;8-板顶长向预应力筋
冷轧带肋钢筋混凝土结构技术规程JGJ95-20116构造规定6.1一般规定
6.1.2 在构件中配置的冷轧带肋钢筋宜采用单根分散配筋的方式,当配筋数量较多且直径不大于8mm时,也可采用两根并筋配筋。当采用并筋的配筋形式时,可按面积相等的原则等效为单根钢筋,并按单根钢筋的等效直径确定钢筋间距、锚固长度、搭接长度、保护层厚度等构造措施。
上述规范条文应该是咱们在工作过程中最常用,也是最重要的要求了。如果大家还需要了解更多的规范要求的话,大家可以用下面的又土又木APP 查询,其中的条文对比功能直接就帮大家全部汇总了。