危害比在地面上要大得多
研究表明,在火灾中造成人员伤亡的主要因素是浓烟和与烟同时发生的有毒气体。而地下车库属密闭空间,因此浓烟所造成的危害就更为明显,一方面车库内一些轻质材料及防水材料等可燃物在助燃空气不足时燃烧,将大量发烟,并伴生有毒气体。另一方面,由于缺乏自然通风,使烟迅速达到一定浓度,短时间即可对人员造成极大的生命威胁。
疏散与消防更为困难
因空间大而封闭性强,人的方向感很差,在慌乱的情况下很容易迷路,火灾发生后的混乱程度比地面上更严重,且规模越大,危险性越大。同时,火势蔓延的方向和烟的流动方向与人员撤离走向一致,都是自下而上,火与烟的扩散速度如果大于人员的疏散速度,就十分危险。消防扑救线路单一,只能自上而下,扑救线路与火势又相冲突,烟和热气流汇集在出入口。这些不利因素给消防人员进入地下灭火造成很大困难。
综上分析,地下车库防火的关键是遵循防患于未燃,立足于自救的原则,做到预防为主,防消结合。
1、车库的防火分类

2、防火分区

注:
①敞开式、错层式、斜楼板式的汽车库的上下连通层面积应叠加计算,其防火分区最大允许建筑面积可按本表规定值增加一倍。
②室内地坪低于室外地坪面高度超过该层汽车库净高1/3且不超过净高1/2的汽车库,或设在建筑物首层的汽车库的防火分区最大允许建筑面积不应超过2500㎡。
③复式汽车库的防火分区最大允许建筑面积应按本表规定值减少35%。
汽车库内设有自动灭火系统时,其防火分区的最大允许建筑面积可按规定增加一倍。
各防火分区以防火墙进行分隔,当必须在防火墙上开设门、窗、洞口时,应设置甲级防火门、窗或耐火极限不低于3.00h的防火卷帘注意防火挑檐
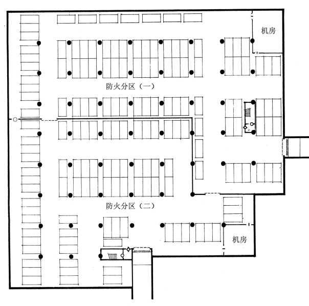
案例

按不同功能划分三个防火分区
①停车库(设喷洒)2900m2
②物业管理用房,机房(设喷洒)600m2
③变配电室、机房(无喷洒)350m2
◇ 安全出口 ○ 防火门 ﹣ 疏散门
某高层建筑地下汽车库 建筑面积 3850m2 停车 70辆
3、人车分流要求
汽车库的人员安全出口和汽车疏散出口应分开设置。设在工业与民用建筑内的汽车库,其车辆疏散出口应与其他部分的人员安全出口分开设置。
(1)汽车疏散出口
车道数量:
汽车库的汽车疏散出口不应少于两个,但符合下列条件之一的可设一个: A、Ⅳ类汽车库(50辆以下) B、汽车疏散坡道为双车道,且停车数少于100辆的地下汽车库。
车道宽度:
汽车疏散坡道的宽度不应小于4m,双车道不宜小于7m。
(2)人员疏散要求
疏散口数量
汽车库的每个防火分区内,其人员安全出口不应少于两个,但符合下列条件之一的可设一个:
A、同一时间的人数不超过25人;
B、Ⅳ类汽车库
C、当地下车库规模较大,划分为两个以上的防火分区,且相邻防火分区之间的防火墙上设有防火门时,每个防火分区可分别设一个直通室外的安全出口。

①汽车库防火分区与相邻防火分区,以防火卷帘分隔,本区内仅有一个人员安全出口,防火墙上未设置可供人员疏散的防火门

案例:某工程地下大型车库
①汽车库内最远点至楼梯间距离大于60m(两楼梯间距离大于120m)。
②停车位阻挡人员安全出口。
疏散距离:
汽车库室内最远工作地点至楼梯间的距离不应超过45m,当设有自动灭火系统时,其距离不应超过60m。单层或设在建筑物首层的汽车库,室内最远工作地点至室外出口的距离不应超过60m。
案例:地下车库人员安全疏散示意图

人员疏散距离最大58m小于60m,满足国家标准