一、防洪渡汛的准备措施
工程施工期开始便即将进入汛期,施工难度加大,因此为保证如期完成工程施工,保证施工正常进行,防洪渡汛的准备工作相当重要。
(1)在雨季到来前,组织工程技术人员和现场管理人员进行雨季施工准备大检查,对施工管区内的防排水设备、设施和有关的生产、生活房屋等进行一次全面细致的检查,切实做好避雷装置和防漏电措施,如检查中发现问题或隐患,必须立即采取措施进行整改。
(2)举办雨季施工岗位技能培训,制定防洪渡汛救援预案并组织防洪抢险演练,让每个人员对防洪抢险有个深刻的认识,提高参建职工的雨季施工应对能力。
(3)雨季施工的工程严格执行施工技术规范的各项规定,制定详细的施工组织技术措施,确保工程质量。编制雨季施工作业指导书,作为雨季施工中的强制性执行文件。
(4)备足工程常用材料,如编织袋、圆木、彩条布等防洪物资和材料,特别是需要长途运送的材料,一定要准备充足,防止因雨天路滑交通受阻,而影响材料进场。
(5)做好历史水情、灾情调查,施工过程中要加强与地方气象部门的联系,及时获取准确的水情预报,确保防洪工作的主动权。
二、施工工期的水流控制
2.1对沟水的处理
在开挖阶段,对沟水的处理主要采用预先埋设混凝土涵管的方法,将沟水引开,截水沟要提前做好,同时为了保证路基不被冲刷而遭破坏,在临时施工场地上游侧及周边设置截水沟和排水沟,排水沟出口处设置沉沙池,导排地表径流、施工便道两侧或上游设临时截水沟,将汇水倒入路旁原有沟渠。采用开挖土质排水沟,梯形断面,底宽0.5m,净深1.5m。两侧坡比1:0.5。
2.2滑坡处防洪渡汛方案和高边坡落石、泥石流的处理
工程区边坡为浅层粘性土滑坡,滑坡体位于一浑圆状的山坡上,滑坡体中上部有泉水出露。根据图纸和监理工程师的要求制定处理方法并报监理审批。要做好临时的排水系统,设置挡墙,对涌出的泉水,采用涵管进行引流。滑坡体上的地表水要防渗;对于地下水采取渗沟、盲洞及平孔等排水措施。在汛期要加强对滑坡段的观测,发现异常状况马上报告。
2.3 在汛期,由于雨水的冲击,容易造成落石,对落石的处理,遵循以工程治理为主、管理与养护相结合的原则,危石一般采用人工清除,必要时可采用小当量光面或预裂爆破并注意不得破坏附近稳定岩体,引发新的危石。同时要在危险地段设置明显的警示标志,以提醒驾驶员和过往行人注意;还要派专人在易出现危石的路段进行重点巡查,一旦发现情况马上处理,决不拖延。
2.4 在高边坡有沟谷易发生泥石流的地方,设置明显的警示标志,加强巡查,防止泥石流发生而带来的隐患。
2.5汛期进行涵洞施工,要先埋设临时混凝土涵管,改移水流的流经路线,然后进行施工。另配备抽水工具,以便在施工前将涵洞内积水清除。
2.6桥梁施工防洪渡汛措施
在挖孔施工前,要做好临时围堰,以保证施工顺利进行;围堰迎水面采用1:1的自然堆渣料放坡,要在洪水来临前,将围堰填筑到与桥一致的洪水位高程,且达到安全防洪渡汛标准。在基坑内缘设置排水沟,在围堰内低凹处设置集水坑,水经排水沟流入或利用潜水泵汇水至集水坑后,经集水坑沉淀后用离心泵将水从集水坑中抽排至围堰外。如遇超标洪水时,用粘土麻袋加高围堰,确保工程在干地施工。要准备好抽水设备,以便在施工前将基坑内积水抽除,顺利进行施工。
对于在洪水位以上的部位的施工,混凝土要在洪水来临前浇筑完毕。
2.7弃渣场的防洪渡汛措施
每年汛期同时也是水土流失较严重的时期,为了能在汛期对水土进行保护,同时保证施工的安全顺利进行,制定了以下技术措施:
(1)弃渣场按照先拦后弃的原则,拦挡设施要在弃渣前完成,以减少弃渣过程中的水土流失;
(2)弃渣场的防护均采用渣体坡脚修建挡渣拦墙;
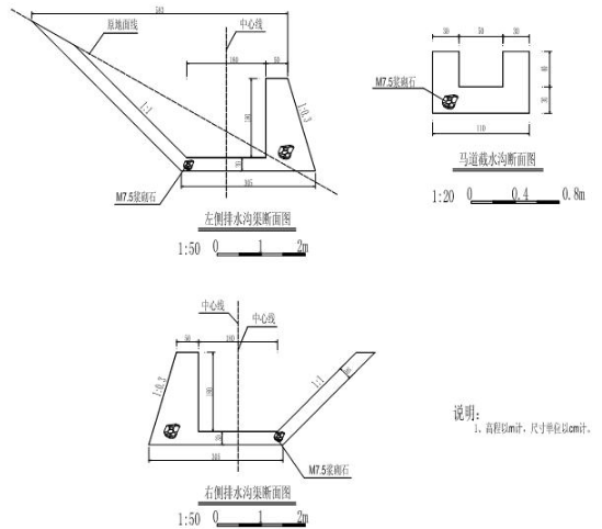
(3)在挡渣高度比较高的渣场的马道上设置马道排水沟,排导坡面径流,汇入两侧的排水沟渠。两侧排水沟渠和马道截水沟断面图如下:

(4)冲沟型渣场两侧坡面来水均采用排水沟导排,同时在冲沟型渣场底部设置盲构。弃渣场排水沟原则上按20年一遇的洪水标准设计,K20处弃渣场则按50年一遇的洪水标准进行设计。
三.安全渡汛措施
工程进入施工阶段便要进入汛期,每年的5~10月为主汛期。根据施工总进度安排,结合其它施工环节,从人力、力财、物力上采取组织和工程预防措施,以确保施工期的安全渡汛。为此,拟定的安全渡汛措施如下:
(1) 成立以项目经理为首,施工、技术、物资供应部门参加的防洪渡汛领导机构,统一领导、协调防洪渡汛工作。
(2)落实防洪渡汛责任制到施工厂队,抽调精干人员组成防洪抢险队,随时排除可能的险情。并具有应急处理突发超标准洪水的能力,尽力减少超标洪水时的损失。
(3) 落实施工措施,保证施工进度的按时完成,对防洪渡汛有关的施工项目实行目标考核制度。
(4)渡汛施工要立足于防, 汛前做好充分的渡汛准备,及时准备好充足的防洪渡汛器材设备、材料,如粘土麻袋、防洪水泵等,如遇险情迅速撤走基坑的人员、设备,进行抗洪抢险。
(5)在各项工程进行施工以前,要对施工作业面作必要的检查,以防导致发生上坍下塌的安全事故,排除安全隐患,只有在检查以后确认没有不安全因素存在才可以进入工作面进行施工工作。
(6)施工临时堆放的物料要防止影响泄水排洪。及时清理不用的施工机具,防止水淹及堵塞河道引发水害。
(7)做好机电设备防护工作,对机电设备及电闸箱,采取防漏、防潮、防淹措施,雨天施工时,电力线可靠接地,防止雷击造成危险。
(8)在雨天施工中,应该做好施工临时房屋、设备、材料以及人员的安全保护工作,务必防止由于山体坍塌、洪水等带来的不必要的损失。特别是要禁止在容易发生土体坍塌的地质不良地段避雨和住宿。
(9)施工人员在雨天作业一定要带好防雨用具。雨天必须停止露天电焊作业,如的确需要电焊操作,要求电焊工穿戴绝缘用品,同时采取避雨措施;电工雨天作业必须穿绝缘鞋。此外应该对各个配电箱和用电设施安装遮雨设备。
(10)组织人员进行水情分析,及时掌握有关的气候、水情预报,并由专人随时监视水情变化。
(11)有汛情时要保证通讯、道路的畅通,防洪渡汛物资的供给,严密监控汛情的发展。
四、拟投入设备和材料
拟投入的设备

(3)钢筋等材料做好避雨措施,防止锈蚀,雨天施工时,正在进行施工的钢筋骨架或已绑扎完准备浇筑混凝土的,须用篷布、雨布加以覆盖,并把中间垫高,以利于排水,防止雨水腐蚀钢筋。
五、雨季施工措施
(1)在编制总进度计划及安排施工时,雨季尽量避免路基基层的施工,各项防护措施要在雨季来临前完成,按实际施工情况提前编制防洪渡汛专项施工措施。
(2)雨季加强路基、边坡及桥涵基础的截、排水,施工工作面做好防洪、防汛的工作,先安排截、排水沟的施工,并要经常性清理高边坡截水沟,保障水沟水流畅通。边坡开挖到设计规格后,及时进行支护和防护。加强对施工道路的维护,边坡开挖、桥涵施工时作好边坡稳定性的监测工作。尽量避免雨期进行户外装修工作,严格控制拌合料的含水率。对刚浇筑完的混凝土应加以覆盖,防止受雨水冲刷。
(4)低洼地段、高填地段应避免在雨季施工。雨季填筑路堤,除填石路堤外,应做到随挖、随运、随铺、随压实,应保持施工场地始终处于良好的排水状态。各施工层应随时保持一定的泄水横坡或纵向排水通道,以保证路面没有积水。路槽修整后,立即开始路面工程的施工。桥涵、墩台避开汛期施工,桥梁基坑开挖好后,及时浇筑混凝土。施工面应配备一定数量的抽水设备,保证把挡墙、桥涵基础内积水及时排出。
(5)在雨天,将安排不受气候影响或影响较小的单项工程施工,避免在雨天浇注混凝土,对遇雨而必须连续施工的混凝土工程,浇注前要准备好防水篷布覆盖于混凝土上,避免雨水直接打到混凝土面上。混凝土施工时要测定砂、石等料的含水率,及时调整配合比。
(6)砂石料因含水量变化较大,需要经常测定,以调整拌和时的用水量。混凝土在运输过程中严禁雨淋。
(7)做好工程临时设施或永久设施的排水工作,保证排水畅通,防止雨水和洪水影响预制场地;做好水泥、炸药和生活、生产用品的贮存库房的避雨,防水,排水工作。
六、组织机构
项目部成立以项目经理为组长,安全副经理为副组长,各部门正职为成员的防洪渡汛指挥小组,明确领导小组成员和各施工单位的责任分工,做到责任到人,各负其责。 指挥小组负责汛期有险情时项目部所有人力、物力的统一调配指挥,认真贯彻执行业主、地方和其他有关部门关于防洪工作的相关规定,加强对防洪工作的领导,建立汛期防洪值班制度。
七、防洪渡汛紧急预案
(1)紧急停电时的预案
项目部供电系统正常情况下由地方供电系统供电,如连降暴雨发生紧急停电时,由备用电源供电,备用电源采用柴油发电机。一般情况下,由防洪渡汛领导小组值班人员通过电话或对讲机指示机电值班人员启动备用电源,如发生特殊情况无法收到防洪领导小组值班人员指令时,机电队值班人员根据现场电工反馈的情况,可立即启动紧急应对措施。机电值班人员立即行动,进行线路的切换和柴油发电机发电前的检查准备工作,一切就绪后,由机电队值班员下令柴油机组运行人员开启柴油发电机。
(2)营地面临险情紧急撤离方案
当遇到连续暴雨时,须加强天气预报的收听,及时掌握第一手资料,做到特大洪水和暴雨到来之前24小时向监理和业主汇报,在得到监理和业主的确认和批示下组织人员、物资设备12小时内安全撤离工作。具体撤离措施如下:
1、首先要保证人员安全撤离。由负责营地的防洪渡汛领导小组成员组织大家安全撤离,提前与业主也当地政府取得联系,解决临时住房和营地食堂设施的转移,妥善解决人员的临时吃住问题。在此期间主要调配小型车辆,要求机动灵活,紧急情况下租用当地大巴和出租车作为人员和个人物资的转移手段。在撤离时要与防洪指挥组保持密切联系,以确保人员的安全为第一前提。在人员转移时,以作业队为单位,各队长为第一现场负责人,负责本队员工的安全转移;所有厂队、部门人员必须无条件的服从现场指挥的组织和统一安排。在营地门口集合清点人数后,再有组织的撤离。
2、其次是营地物资转移。由负责混凝土拌和场的领导小组成员组织人员进行物资设备的转移和保护,主要调配自卸车,主要抢救的物资设备为营地仓库、堆放的钢筋木材及已加工成型的模板和加工设备,到确保主要物资的转移,尽量减少财产损失。
3、组织人员成立紧急抗洪抢险突击队,对工程区及营地周边的防洪设施进行加固和抢修,及时疏通水道,并尽可能与业主和监理取得联系,按业主和监理的指示进行处理,应对可能引起的任何突发事件。