一、工程概况
1. 工程概况
天津某工程总用地面积 26666.7m 2 ,场地内拟建两幢分别为 358m(二号塔楼)和 102.9m(一号塔楼)高度的塔楼以及 3 层裙房,整体设置 4 层地下室。基坑面积约为 22900 m 2 ,周长约为 585m。基坑挖深塔楼区域约为 20.6m~23.1m,裙楼区挖深约 20m。工程处于新开发区域,周围尚无建成的建(构)筑物。基地四周的道路和道路下已埋设的市政管线为本工程的保护对象。图 2-10 为本工程的塔楼、裙楼分布和周边环境条件情况。

图 2-10 塔楼、裙楼分布和周边环境条件情况
2. 工程地质概况
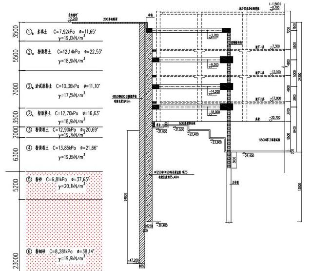
拟建场地位于天津市塘沽区海河南岸,场地总体地势平坦,仅四周地势略高,地面大沽高程介于 2.04~1.25m。基坑开挖深度范围之内的场地土层主要以粉质粘土为主,浅层分布有较厚的流塑淤泥质粘土,深层分布有深厚的粉、细砂微承压含水层,微承压含水层顶板已基本接近基坑底部。场地内土层部分物理力学指标如表 2-10 所示。

二、基坑总体设计方案选型分析
类似特点和规模的基坑工程基于不同的经济性和工期等因素的要求,可选择的总体方案一般有整体顺作、全逆作、分区顺作和顺逆结合。
本工程的两幢塔楼均为超高层建筑物,塔楼核心筒、框架柱等竖向承重结构施工质量至关重要。全逆作法根据其自身工艺特点,要求塔楼地下部分竖向承重结构留设多道施工缝,对塔楼竖向承重结构的抗风、抗震等性能有不利影响,因此两幢塔楼均不适宜采用逆作法实施。同时考虑到塔楼区域所占地下室面积相当大,因此全逆作法或顺逆结合方案均不适合在本工程中应用。
因此从技术可行性角度,本工程可采用以下两套总体方案设计思路:
1. 方案一:整体顺作方案
裙楼和塔楼基坑作为一个整体同步实施,根据本基坑工程的面积和开挖深度、地下室外墙与红线的关系以及周边的环境,本工程应采用板式围护体结合坑内设置多道支撑的支护体系。
2. 方案二:分区顺作方案
考虑到 358m 高的二号塔楼的工期是本工程的控制工期,为加快整体工程的工期,首先对该塔楼区域进行单独围护,采用顺作法施工,待该基坑工程结束、进入上部结构的施工之后,才采用顺作法实施剩余的裙楼和一号塔楼基坑。同样,分区基坑均采用板式围护体结合坑内设置多道支撑的支护体系。分区顺作设计方案平面图如图 2-11 所示。

图 2-11 分区顺作设计方案平面图
根据对方案的工程量对比分析,分区顺作方案由于需要设置一道临时隔断围护体,因此工程量相比整体顺作方案有较大幅度的增加;同时从工期角度,将较大幅度地增加一号塔楼的总工期。因此经与业主沟通,本工程选择整体顺作方案。
三、围护体选型分析
根据软土地区已实施的大量基坑工程的成功实践经验,类似深基坑工程中可供选择的围护体有型钢水泥土搅拌墙(SMW 工法)、灌注桩结合隔水帷幕以及地下连续墙。
1. SMW工法
现阶段可供选择的 SMW 工法桩抗侧刚度较为有限,在软土地区开挖深度超过 13m 的深基坑工程中,采用工法桩时基坑的变形较难控制。而本基坑工程面积大,开挖深度深达到20m~23.1m,经初步估算,即使采用目前可供选择的工法桩中刚度最大的 1000@750 三轴水泥土搅拌桩,并满插 H8503001624 型钢,计算变形大,不能满足规范的要求,而且三轴水泥土搅拌桩一旦开裂,会影响到围护体的止水可靠性。
另外本工程地下室开挖深度深,体量超大,其施工工期相对较长,初步估计围护体施工至0.000 工期在一年以上。采用 SMW 工法桩,不仅型钢用量大,型钢租赁期也较长,经济性较差。综上所述,方案设计不考虑采用 SMW 工法桩作为围护体。
2. 钻孔灌注桩结合隔水帷幕
钻孔灌注桩结合隔水帷幕作为一种成熟的工法,其施工工艺简单、质量易控制,施工时对周边环境影响小,在天津以及长三角等软土地区应用十分广泛,尤其适用于顺作法基坑工程。隔水帷幕可根据工程的土层情况、周边环境特点、基坑开挖深度以及经济性要求等综合因素选用合适的工艺。
钻孔灌注排桩围护结构施工便捷,造价经济。围护桩一般设置于地下室以外距地下室外墙 800mm 的位置,仅在基坑开挖阶段用作临时围护体,且在主体地下室结构平面位置、埋置深度确定后即有条件设计、实施。图 2-12 为钻孔灌注桩结合三轴水泥土搅拌桩围护剖面图。

图 2-12 钻孔灌注桩结合三轴水泥土搅拌桩围护剖面图
3. 地下连续墙
地下连续墙具有抗侧刚度大、可有效控制基坑变形保护周边环境,以及施工工艺成熟等诸多优势,近年来在周边环境保护要求高以及基坑开挖深度大的基坑工程中得到了大量的应用。地下连续墙既作为基坑开挖阶段的围护体,同时作为地下室的结构外墙,称为两墙合一。
地下连续墙整体刚度大于分离式的钻孔灌注围护桩,因此基坑开挖阶段水平变形比钻孔灌注桩小,且基坑挖土施工时周边渗漏情况一般比钻孔灌注围护桩少。由于两墙合一可充分利用地下空间,并且可节约地下室外墙费用,因此经济性较好。
两墙合一地下连续墙形式近年来在天津及长三角等软土地区得到广泛的应用,并在实践中已经发展并形成了成套的设计理论和专项施工技术,几乎已成为类似面积和深度规模基坑工程首选的围护体形式。但对于本工程而言,由于工期紧迫,且难以及时提供两墙合一地下连续墙设计所需的相关主体地下结构资料,因此经权衡,最终确定选择钻孔灌注桩结合三轴水泥土搅拌桩隔水帷幕作为围护体。
四、水平支撑体系选型
深基坑板式支护体系中常用的水平传力体系有水平支撑和锚杆两种形式。本工程基坑开挖深度范围内分布有较厚的高压缩性的软弱淤泥质粘土,该土层中难以提供锚杆足够的锚固力;而且四周紧邻下方埋设有众多市政管线的道路,采用锚杆很难满足受力和对周边环境的保护要求;此外本工程地下室外墙与用地红线的距离较小,也不具备施工锚杆的空间。综合以上三方面的因素,本方案选用水平内支撑作为基坑开挖阶段的水平传力体系。
1. 支撑材料选型分析
深基坑工程中水平支撑主要有钢筋混凝土支撑以及钢支撑两种形式。钢筋混凝土内支撑具有刚度大、变形小的特点,对减少围护体的水平位移,并保证围护体稳定具有重要作用。同时混凝土支撑施工适应性强,可适用于各种复杂形状和基坑面积超大的基坑工程。采用钢筋混凝土支撑体系,第一道支撑杆件在适当加强后又可作为施工中挖、运土用的施工栈桥和材料的堆放平台,可以解决施工场地狭小的问题,同时又方便施工,加快了出土效率,降低了施工技术措施费。由于施工栈桥与第一道支撑结合设计,大大节省了工程造价。
由于本基坑工程面积大、开挖深度深,采用钢支撑体系主要有四个方面的不利因素:
其一,由于基坑面积大且开挖深度深,采用钢支撑杆件较密集,挖土空间较小,在一定程度上会降低挖土效率;
其二,基坑面积巨大,单个方向钢支撑长度过长,拼接节点多易积累形成较大的施工偏差,传力可靠性难以保证;
其三,基坑长、宽两个方向距离均较大,钢支撑刚度相对较小,不利于控制基坑变形和保护周边的环境,不能满足对邻近市政管线的保护要求。
其四,本工程属深大基坑,基坑周边施工场地狭小,需设置施工栈桥作为挖运土平台和材料堆场,如采用钢支撑必须设置大面积的钢平台,会大大增加工程造价。
综上所述,采用钢支撑体系在技术上不合理,因此支撑材料选用钢筋混凝土支撑体系。
2. 支撑平面布置分析
钢筋混凝土支撑体系可采用圆环支撑布置形式(如图 2-13 所示)以及对撑角撑布置形式(如图 2-14 所示),两种支撑体系布置形式各有特点,从技术角度上都能满足本基坑工程的要求。但对比可以发现,本工程采用圆环支撑布置形式,基坑中部的开敞空间更大,利于土方开挖;同时也能够避开绝大部分的塔楼核心筒与框架柱,有利于地下结构的施工。因此方案设计最终确定了采用圆环支撑布置形式。

五、最终选择的支护设计方案
基于以上对总体方案选型、围护体选型、支撑选型等的技术可行性分析,也对可能采用的总体方案(整体顺作和分区顺作)及各种不同围护结构(地下连续墙和钻孔灌注桩结合隔水帷幕)、坑内支撑体系(圆环形钢筋混凝土支撑及对撑角撑布置的钢筋混凝土支撑)等的不同组合从工程经济、工期上进行了充分的对比和分析,从而确定最终采用整体顺作+钻孔灌注围护桩+隔水帷幕+四道钢筋混凝土圆环形支撑的基坑支护设计方案。