省工期、省造价,对周边建筑影响小,阻隔噪音,减少扬尘,这么牛的技术,作为工程人怎么能不知道?
这项技术就是逆作法。
但是,广大求知若饥的工地人表示,这还不够!所以,今天就来给大家详细介绍一下逆作法的应用。准备好了吗?
首先,来看一则视频,简单明了介绍了逆作法:
逆作法原理

先沿建筑物地下室轴线或周围施工地下连续墙或其他支护结构,同时建筑物内部的有关位置浇筑或打下中间支承桩和柱,作为施工期间于底板封底之前承受上部结构自重和施工荷载的支撑。
然后施工地面一层的梁板楼面结构,作为地下连续墙刚度很大的支撑,随后逐层向下开挖土方和浇筑各层地下结构,直至底板封底。同时,由于地面一层的楼面结构已完成,为上部结构施工创造了条件,所以可以同时向上逐层进行地上结构的施工。如此地面上、下同时进行施工,直至工程结束。

逆作法作为一种新型施工技术,形成于日本。上世纪90年代初,由上海建工二建集团在地铁车站施工中引进。
适用工程
1.深基坑
2.周边环境比较复杂,
比如毗邻保护建筑、交通枢纽等等。
3.工期紧张
4.环保要求高
根据工程情况不同,逆作法可以分为三类:
逆作法分类
1.全逆作法
利用地下各层钢筋混凝土肋形楼板对四周围护结构形成水平支撑。楼盖混凝土为整体浇筑,然后在其下方掏土,通过楼盖中的预留孔洞向外运土并向下运入建筑材料。
2.半逆作法
利用地下各层钢筋混凝土肋形楼板中先期浇筑的交叉格形肋粱,对围护结构形成框格式水平支撑,待土方开挖完成后再二次浇筑肋形楼板。
3.部分逆作法
用基坑内四周暂时保留的局部土方对四周围护结构形成水平抵挡,抵消侧向压力所产生的一部分位移。
逆作法优缺点
优点:
逆作法最大优点就是节省工期,相对于顺作法,可节省工时1/3。其次,节省造价。一般可节省地下结构总造价的25%~35%。
(1)可使建筑物上部结构的施工和地下基础结构施工平行立体作业,在建筑规模大、 上下层次多时,大约可节省工时1/3。
(2)受力良好合理,围护结构变形量小,因而对邻近建筑的影响亦小。
(3)施工可少受风雨影响,且土方开挖可较少或基本不占总工期。
(4)最大限度利用地下空间,扩大地下室建筑面积。
(5)一层结构平面可作为工作平台,不必另外架设开挖工作平台与内撑,这样大幅度削减了支撑和工作平台等大型临时设施,减少了施工费用。
(6)由于开挖和施工的交错进行,逆作结构的自身荷载由立柱直接承担并传递至地基,减少了大开挖时卸载对持力层的影响,降低了基坑内地基回弹量。
缺点:
(1)支撑位置受地下室层高的限制,无法调整高度,如遇较大层高的地下室,有时需另设临时水平支撑或加大围护墙的断面及配筋。
(2)挖土作业空间狭小,不利于规模机械化施工、土方施工困难。
(3)结构接头处理多。
(4)对围护结构施工精度要求高。
那么在具体施工中如何利用逆作法呢?来看一个经典案例:
1 工程概况
1.1 结构概况
上海恒积大厦于1994年~1996年建设,工程地处上海淮海东路、西藏南路的东南角。建设基地北面为淮海东路,西面为西藏南路,南面为桃源路,东面为桃源新村。
本工程地下4层、地上22层,其中裙房5层,总建筑面积约70000m。大楼的主要功能为商业和办公,柱网轴线尺寸为8.4m8.4m,结构形式为典型的框架核心筒结构,基坑面积约4000m,地下4层,开挖挖深约17m。工程地质条件为上海地区典型的软土地基,自地面以下约30m为软粘土、砂土,含水量较丰富,地下承压水在层面位于30m的第⑦层砂土中。
本工程的基坑围护墙为800mm厚地下连续墙,地下连续墙长度为35m,工程桩为800钻孔灌注桩,灌注桩的桩尖持力层为第⑨层土,桩尖深度为84m,有效桩长为67m。
根据业主要求,本工程必须在16个月内裙房交付装修,在24个月内全部竣工。因此要求施工单位采取必要的措施加快施工进度。

上海恒积大厦平面图及效果图
1.2 工程环境
本工程地处闹市中心,周边环境复杂,西侧的西藏南路与北面的淮海东路交通繁忙,地下各类管线较为密集。其中北侧的自来水管距基坑边为5~8m;东面的桃源新村为上一世纪50年代所建5层混合结构,无桩基,其距基坑边约为8m;南面的桃源路路幅较窄,桃源路南侧的民房为上世纪三十年代所建的二层石库门砖木结构,房屋相当陈旧,其与基坑隔街相距约10m左右。
2 工程难点
本工程开工前,施工方与业主磋商,为满足工期要求,拟采用逆作法施工。当时在逆作法施工方面的成功工程实例较少,可借鉴经验不多,施工中需要解决的文图及技术难点主要有以下几方面:
①对周边环境的保护;
②逆作法一柱一桩的形式确定,以及一柱一桩在施工期间的各工况的承载力计算,相邻柱之间差异沉降的控制;
③逆作法的挖土施工方法及如何提高挖土效率;
④逆作法的地下室柱梁板节点设计及施工方法;
⑤地下室梁板、柱的支模与浇混凝土方式。
3 本工程逆作法施工
根据本工程的结构平面布置,其电梯井筒在建筑物的中心,这种结构平面布置也是一般商办楼结构平面布置较为典型的方式,即外框内筒的结构受力形式。电梯内筒为剪力墙结构,若剪力墙采用逆作法,必须在其筒体剪力墙布置相当的工程桩,并且在逆作法施工过程中要进行墙体置换法施工。这种方法施工速度受到一定的制约,且技术措施费用较贵。因此,针对该工程的结构特点,在逆作法设计与施工中采取了相关的技术措施。
3.1 逆作法总体施工技术路线
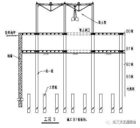
除电梯井筒剪力墙外,其余框架部分地上、地下结构同步逆作施工。在地下室基础底板封底时,上部结构施工计划施工至5层裙房。
其逆作法工况如图所示。








上海恒积大厦逆作法施工工况图
(1)逆作法的柱桩选型
由于逆作法施工需要部分工程桩作为一柱一桩的立柱桩来承载施工阶段的竖向结构荷载,因此当主体结构设计完成桩位与桩型后,施工单位应根据以下原则对结构设计的工程桩进行调整,以满足工程在进行逆作法施工阶段的受力需要。
原则一:应不改变建筑物的使用功能,如层高、柱网轴线、柱、墙的截面外型尺寸等;
原则二:应不削弱原结构桩基的承载力,不改变其合力重心;
原则三:应方便逆作法的各项施工工艺,使现有的施工工艺手段基本满足施工规范与结构设计规范的质量要求;
原则四:能满足施工阶段各工况的承载力要求,即在各施工工况下,结构有足够的安全度;
原则五:尽可能不增加或少增加因逆作法而引起的施工成本。
在以上原则下,若主体结构设计为钻孔桩、PHC桩等桩型时,则逆作法施工设计尽可能不改变其桩型,一柱一桩的立柱可选用钢管混凝土柱或钢格构柱。其中钢管混凝土柱的承载力大,而钢格构柱的柱梁节点较容易处理(钢格构柱在遇到有主梁处时其主筋较容易穿过格构柱),因此能较好地满足结构设计要求。
钢立柱的选用均应进行施工验算,满足逆作法施工各工况的承载力。具体选用哪类柱型可根据工程情况而定。
(2)逆作法一柱一桩的平面布置
在软土地区,对主体结构的框架柱基础设计一般布置为多桩承台,而逆作法施工设计一般只利用一根桩,因此在施工设计时可按如下原则进行调整:
原则一:逆作法施工设计不改变原结构设计的工程桩合力大小。
原则二:逆作法施工设计不改变原结构设计的工程桩合力重心的平面位置。
依上述原则,若原设计承台为多桩承台,则可以按下列方式调整多桩承台的平面布置。

多桩承台调整示意图
若为二桩承台,则可将原设计的桩形作适当调整,加大桩径或桩长,改为单桩承载形式;或减小桩径或桩长,形成如图所示的三桩承台。
3.2 一柱一桩的选型
一柱一桩可采用800钻孔灌注桩,其上端不采用格构柱,直接由800桩施工至0.000标高(图4-2-4),用工程桩兼作为支撑力柱,此种方式费用较省,但为保证梁柱节点处梁的钢筋布置,其外包柱的截面尺寸较大,往往要达到1400mm1400mm。

一柱一桩示意图
本工程800一柱一桩的持力层设在第⑨层土,根据静载试桩,其承载力可达到12000kN,沉降值仅为24mm,而实际施工时只需满足单桩荷载为7200KN的承载要求(地下4层地上5层),故单桩承载力满足施工阶段的要求,因此最终设计采用了这一方法。工程实施中根据施工监测结果,相邻两桩(柱)的沉降差不大于6mm,远小于设计要求的20mm。
3.3 柱梁节点的设计与施工
(1)柱梁节点
地下室临时立柱由于直接采用800灌注桩,因此,梁的主筋在节点处贯通带来一定困难。本工程采用了的解决方法见下图。该方法是在箍筋上加焊连接钢板,并将梁的纵向钢筋焊接在连接钢板上。但这一方法应保证梁的纵向钢筋有一定数量在柱的节点处贯通,这也是采用这种方法的外包柱截面尺寸较大的原因。

用灌注桩作临时立柱的梁柱节点示意图
(2)外包柱的支模及浇混凝土
外包柱的混凝土浇筑可在楼板上留设100浇捣孔进行施工。柱子顶部的模板设置为倒八字形形成柱帽,在模板四周设置若干振捣器,利用柱帽位置的空间由浇捣孔浇灌外包柱(下图)。

柱顶预留浇捣孔
(3)逆作法梁板模板施工方法
逆作法的地下室梁板结构模板的支模形式,若采用常用的主次梁结构形式,施工模板比较复杂。因此,本工程施工单位提议,采用了密肋板的形式。其密肋板的受力性能与经济性比主次梁板形式更好,而且密肋板的高度较小,本工程设计为500mm,而梁板结构一般梁的高度要达700~800mm,因此采用密肋板结构的地下室楼层净空高度可增加200~300mm。这给地下室的电缆桥架、消防管道等布置提供了方便。另外,密肋板的支模材料为塑料壳而非木材,因此以环保角度来看,更加绿色环保。本工程密肋板支模方法见下图。

逆作法密肋梁板支模方法
从以上看,在逆作法施工中,密肋楼板比一般主次梁板施工更加方便,而且地下室挖土因支撑而超挖的深度更小,因此对基坑围护墙的变形控制效果更好。
(4)逆作法的挖土方法
基坑的挖土方法是逆作法施工工艺的关键技术之一,尤其是上、下结构同步施工时,由于上部结构的柱网轴线一般为8~10m,层高在5~6m,因此若采用传统的液压挖土机或钢索抓斗挖土机在0.00板上垂直取土的方法,因其把杆高度及把杆的回转半径远超过柱网轴线,该方法会影响逆作法的上部结构施工。为此恒积大厦的逆作法挖土方法首次研制专用提升土方的机械专用取土架(下图)。专用取土架设置在取土口上方,其高度满足土方运输车辆和土斗作业高度,取土架上方架设行车轨道,钢索抓斗通过滑车组可在行车轨道开行。抓斗的上、下运动和挖土、卸土作业通过钢索控制,而水平向则可沿行车轨道开行

取土架挖土方法示意图
4 实施效果
4.1 对周边环境的影响
由于采用逆作法,本工程在整个施工期间西藏南路及淮海东路的地下管线的位移(沉降)在10mm左右,桃源小区临近基坑一侧的煤气管位移小于10mm,桃源路对面的二层民居(砖木结构)房屋无明显沉降。逆作法施工对周边环境的保护达到了预期目标。
4.2 施工工期
1994年11月1日至1995年4月30日,基坑围护墙、工程桩施工(约6个月)
1995年5月1日至1995年10月5日,地下4层、地上5层主体结构施工(约5个月)
1995年10月6日至1996年5月10日,地上22层主体结构全部施工完成(约7个月)
1996年5月11日至1996年10月15日,二结构、装饰施工(约5个月)
从以上工程实施情况来看,满足了24个月总工期的要求,尤其是地下四层与地上五层裙楼施工的逆作法施工仅用了5个月的工期,体现了逆作法施工的优越性。
4.3 经济方面
在施工措施费用上,由于采用地下室楼板作为水平支撑,替代基坑顺作法的四道水平支撑,其节省费用测算为:
4000m(基坑面积)4(道支撑)400元/道m= 640万元
扣除逆作法措施费等320万元左右,实际节约约320万元。
4.4 社会效益
通过本工程的逆作法施工不仅在环境保护方面取得良好的社会效益。同时,在当时的施工条件下,创立了一系列新的施工工艺,为以后逆作法的推广应用打下了良好的基础。
其中逆作法挖土技术、逆作法支模方法、逆作法柱梁节点的设计与施工、逆作法一柱一桩施工方法与质量控制等施工技术经以后多项工程的应用,逐渐发展,日趋成熟与完善。
5 工程模拟分析
5.1 计算模型说明
以下介绍本工程地下室三、四层顶板的计算。有关计算参数和计算模型如下:
荷载:土压力500 kN/m,楼面施工荷载2.0 kPa。
柱截面为800灌注桩,长度为8 m,柱底假定为铰接。
假定基坑周边地下连续墙为800mm3000mm的边梁。

计算模型
5.2 计算结果

板XY平面变形
(50KN/m水平土围压荷载,最大值4.63mm)

板Z竖向变形
(2 KN/m等效施工荷载,最大值-3.95mm)

板单元X方向轴向应力
(最大值-10.15 N/mm)

板单元Y方向轴向应力
(最大值-13.14 N/mm)

板单元最大有效应力
(最大值17.61 N/mm)