一、附着式升降脚手架介绍
什么是附着式升降脚手架?
搭设一定高度并附着于工程结构上,依靠自身的升降设备和装置,可随工程结构逐层爬升或下降,具有防倾覆、防坠落装置的外脚手架。
附着式升降脚手架,这种新型脚手架适合高层建筑施工,特别是对于超高层建筑而言非常实用。它是在挑、吊、挂脚手架的基础上发展起来的,今天我们就系统的学习一下附着式升降脚手架。
二、附着式升降脚手架优点
1、施工速度快:悬挑脚手架需要不断安拆,爬架30~40分钟升高一层,可满足结构施工3天一层、装修施工一天2层的防护需要;
2、安全性好:采用多重附着与建筑外墙,设置多重水平防护,操作人员始终处于架体防护范围以内,可有效防止落物打击和人员坠落。
3、节约材料:爬架架体搭设不超过五层楼高,根据施工进度逐层升降,比双排脚手架从地面一直搭设到结构顶层,节约大量的钢管、 扣件、脚手板及安全网;
4、节约塔吊台班费用:爬架搭设好后,利用自身升降系统就可对爬架进行升降,节约大量塔吊台班费用。
5、节约人工费用:爬架架体搭设好后,只需少量人员就可对架体进行升降,节约大量的人工。
6、外观较为漂亮。

三、附着式升降脚手架的构造拆解
1、架体结构
由竖向主框架、水平支承桁架、架体构架三部分组成。

2、竖向主框架
附着式升降脚手架最主要组成部分,垂直于建筑物外立面,并与附着支承结构连接。主要承受和传递竖向和水平荷载的竖向框架。


单片式竖向主框架(较为常见)

空间桁架式竖向主框架
3、水平支承桁架
宽度与主框架相同,平行于墙面,高度不宜小于1.8m,最底层设置脚手板,与建筑物之间宜设置可翻转的密封翻版,板下用安全网兜底。主要承受架体竖向荷载,并将竖向荷载传递至竖向主框架的水平支承结构。



4、架体构架
在相邻两主框架之间和水平支承桁架之上的架体。
1)立杆:设置在水平支承桁架的节点上;
2)纵向水平杆、横向水平杆;
3)剪刀撑:连续设置,水平夹角45~60,与立杆或横向水平杆伸出端扣紧。
4)密目网:2000目/100cm
5)作业层设1.2m防护栏和18cm高挡脚板。

5、架体高度
架体最底层杆件轴线至架体最上层横杆(即护栏)轴线间的距离。
(不得大于5倍层高)

6、架体宽度
架体内、外排立杆轴线之间的水平距离。
(不得大于1.2m)

7、支承跨度
两相邻竖向主框架中心轴线之间的距离。
导轨主框架直线布置的架体支承跨度不得大于7m,折线或曲线布置的架体支承跨度(相邻两主框架支撑点处的架体外侧距离)不得大于5.4m。


折线布置架体
注意:
1)物料平台不得与脚手架各部位和各结构杆件相连,其荷载应直接传递给建筑工程结构。
2)断开处应封闭。
8、悬臂高度
架体的附着支承结构中最高一个支承点以上的架体高度。(不得大于架体高度的2/5,且不得大于6m)

9、悬挑长度
指架体水平方向悬挑长度,即架体竖向主框架中心轴线至架体端部立面之间的水平距离。
架体水平悬挑长度不得大于2m,且不得大于跨度的1/2。


悬挑段长度:L1
锚固段长度:L2
L21.25L1
注意:与悬挑脚手架的悬挑段长度概念的区别!
10、防倾覆装置
防止架体在升降和使用过程中发生倾覆的装置。

11、防坠落装置
防止架体在升降或使用过程中发生意外坠落的装置。


提升结束后使用钢管卡子固定,注意再次升降时应拆除。

提升结束后使用斜杆支顶,下降时应掰向左侧。
12、升降机构
控制架体升降运动的动力机构,有电动和液压两种。


13、荷载控制系统
能够反映、控制升降机构在工作中所承受荷载的装置。

14、悬臂梁
一端固定在附墙支座上,悬挂升降设备或防坠落装置的悬挑钢梁,又称悬吊梁。

15、导轨
附着在附墙支承结构或者附着在竖向主框架上,引导脚手架上升和下降的轨道。

16、同步控制装置
在架体升降过程中,控制各升降点的升降速度,使各升降点的荷载或高差在设计范围内。
17、附墙支座
附墙支座是升降架的附着支承结构,承受并传递升降架的荷载,同时通过其内部设置的防坠落装置,实现意外坠落状况下的卡阻保护功能。集承载、防坠、防倾、导向功能于一身,能较好的适应结构垂直度和预留预埋管误差和较小的偏差等情况。


附墙支座由钢材焊接、加工装配而成,导轨主框架的导轨穿插在导轮座内,利用导向滚轮与导轨的滑动配合,约束导轨主框架进行上下运动。通过调整调节螺栓可实现升降架架体与工程结构间距离的调节,调节范围为18025mm。




18、转换装置
1) 三角铁件
当主体结构外部为阳台或其它悬挑板,此处的主框架无法正常安装在墙或梁上时,可考虑通过三角铁件进行转换,以确保附墙支座的正常安装。

三角铁件应用实例

2)垫块
结构外围有200~300mm宽水平装饰檐时,用以将架体与结构的距离适当加宽,确保结构施工和架体升降能顺利进行,有多种型号可选用。

3)加高件
当结构外围有宽度300mm~600 mm的空调板或飘窗板时,用以将架体与结构的距离适当加宽,确保结构施工和架体升降能顺利进行,有多种型号可供选用。

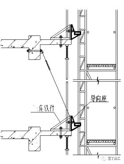
4)吊挂件
用于吊挂电动葫芦,采用M30的锚固螺栓与工程结构牢固连接,升降时将架体荷载传递给工程结构的承载件,分为普通吊挂件、加长吊挂件、槽钢吊挂件、小吊挂件几种。

普通吊挂件

加长吊挂件

槽钢吊挂件
