一、地基基础工程
基础模板工程篇
01箱型基础外模板
一、地板导墙模板
施工要点
筏板基础底板施工时应设防水导墙,导墙高出底板上皮300mm,导墙与地板一起浇筑。如果导墙模板采用单侧支模,外侧模板采用防水保护墙砖胎模,为保证砖胎模的稳定,应将导墙外侧回填或另加支撑加固,每隔4m砌筑一个砖垛,如下图所示:

质量要求
表面按普通抹灰标准要求,砌体按合格标准控制,阴阳角按柔性防水卷材不同设定弧度。导墙上设置3~4层卷材压边砖。
做法详图

图 底板导墙模板
效果图

图 导墙效果图
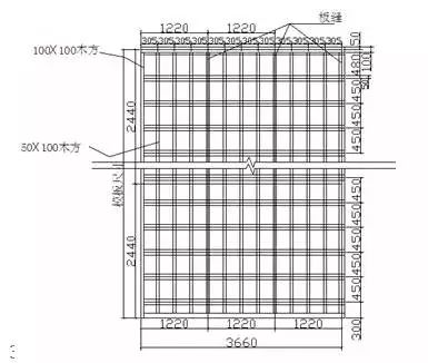
二、筏板上翻外梁墙基础模板
施工要点
筏板上翻外梁墙基础模板,一般采用12~15mm厚木(竹)低档次多层板事先拼装而成,外帮木方作横竖背楞,水平向间距30~1000px(1px=0.4mm),竖楞间距100~3750px;当上翻梁墙模高50cm时,按施工方案要求设置拉模杆,拉模杆上焊接40止水环;底部每隔100~3750px设置一道托模杆,托模杆由钢筋下脚料制作而成;竖向采用48短钢管或25钢筋作锁模架,间距120~3750px;外导墙按设计要求设置300宽止水钢板或止水槽等。
质量要求
模板刚度、强度满足施工方案要求,加固牢固,节点拼装合理,节约简捷,满足绿色施工要求。止水构造正确可靠。
做法详图

图 筏板梁墙基础模板
三、电梯井及集水坑模板
施工要点
电梯井及集水坑模板多采用低档次木(竹)模整拼,可在外场整拼好,由塔吊直接吊入坑内。模板厚12~15mm,水平背楞为木方,竖向采用钢管;支撑体系视坑大小用钢管或木方;底模设置砂袋做抗浮装置,砂袋多少按坑大小1.3~1.5倍配置。
质量要求
模板刚度、强度满足施工方案要求,加固牢固,节点拼装合理,节约简捷,满足绿色施工要求。四角宜采用型钢定型方式。
做法详图

图 筏板梁墙基础模板
02地下室墙体模板
一、地下室外墙木胶合板模板
施工工艺
地下室外墙木模板采用多层板或竹胶板加木方或钢管拼装,根据墙高场外拼装,直接调入现场,采用钢管斜支撑加固。
质量要求
模板刚度、强度满足施工方案要求,加固牢固,节点拼装合理,节约简捷,满足绿色施工要求。四角宜采用型钢定型方式。
做法详图

二、地下室外墙单侧支模
施工要点
地下室外墙采用钢制定型模板,采用配套支腿进行支撑加固,外墙外侧采用不带支腿的钢模板,外侧模板通过对拉螺栓进行加固。
质量要求
模板刚度、强度满足施工方案要求,加固牢固,节点拼装合理,节约简捷,满足绿色施工要求。四角宜采用型钢定型方式。
做法详图、效果图

三、地下室外墙墙根防烂根做法
施工要点
墙柱单侧或两侧为吊模时,在阴角根部的位置增加钢丝网可有效防治烂根现象
质量要求
钢丝网垂直底板面,绑扎点每750px一道。
做法详图

地下防水工程篇
一、底板及外墙卷材防水
施工要点
底板垫层混凝土平面部位的卷材宜采用空铺法或点粘法,其他与混凝土结构相接触的部位应采用满粘法;卷材接缝必须粘贴严密,接缝口宽度不应小于10mm;在里面与平面的转角处,卷材的接缝应留在平面上,距立面不应小于600mm;阴阳角处找平层应做成圆弧或45/135角,并应增加1层相同的卷材,宽度不宜小于500mm;防水基层必须平整、牢固,铺贴卷材前应使基层表面干燥,基层含水率小于9%,新作业面施工前先用简易法测基层含水率,即用1m2的卷材覆盖4h后察看凝结水情况,若无凝结水即可进行卷材的铺贴。
做法详图

二、主体结构工程
直螺纹丝头检查
施工要点
钢筋丝头螺纹中径尺寸的检验应符合通环规能顺利旋入整个有效扣长度。
质量要求
止环规旋入丝头的深度应小于等于3P(P为螺距)。
做法详图

直螺纹丝头有效旋合长度检查
施工要点
加工人员逐个目测检查丝头的外观质量,每工作班内生产的丝头作为一批,用环规抽检10%丝头,当抽检不合格时,应用环规逐个检查该批全部丝头,剔除其中不合格丝头,并调整设备至加工的丝头合格为止。
质量要求
钢筋丝头螺纹的有效旋合长度用专用丝头卡板或专用卡尺板检测,允许偏差不大于1P。

翼墙端部水平钢筋锚固
施工要点
翼墙端部水平钢筋应伸直至对边且有15d直拐,施工中注意控制水平钢筋应伸直至对边竖筋内侧,转角墙外侧水平筋应连续通过转弯。
质量要求
墙主筋插筋与底板上下筋需妥善固定绑扎牢固,确保位置正确,混凝土浇筑应有专人检查修整。

穿梁管洞口钢筋
施工要点
当在基础承台梁上开洞时洞口尺寸Dh/5,连续开洞净距4D;当在框架梁上开洞时洞口尺寸Dh/5,且150mm,连续开洞3D。
质量要求
预留洞口中心线位置、水平高差应符合设计要求,混凝土浇筑应有专人检查修整。
做法详图

梁柱(墙)钢筋放置顺序
施工要点
当梁与柱或墙侧平时,梁该侧主筋置于柱或墙竖向纵筋之内。
质量要求
钢筋型号长度应准确无误,钢筋需妥善固定绑扎牢固确保位置正确保护层厚度符合规范,混凝土浇筑应有专人检查修整。
做法详图

效果图

底(顶)板钢筋放置顺序
施工要点
两向钢筋交叉时,基础底板及楼板短跨方向上部主筋宜放置于长跨方向主筋之上,短跨方向下部主筋置于长跨方向下部主筋之下。
质量要求
钢筋型号长度应准确无误,钢筋需妥善固定绑扎牢固确保位置正确保护层厚度符合规范,混凝土浇筑应有专人检查修整。

三、屋面细部构造
饰面砖、石材天沟
施工要点
坡度及坡向、对缝、颜色搭配、铺贴顺序。
质量要求
平整度偏差<2mm,缝格平直度<1mm,接缝高低差<0.3mm,天沟排水坡度不小于1%。
做法详图


效果图

饰面砖、砂浆泛水
施工要点
分色镶边、钢丝网挂设、对缝、勒角弧度、分格、压光、养护、鹰嘴。
质量要求
饰面砖(砂浆)粘贴牢固、无空裂,坡度及鹰嘴明显,线条清晰顺直。勒脚弧度圆润。
做法详图

效果图
