
施工部署
一、技术准备
1) 项目技术部根据现场及图纸编制卸料平台施工方案。
2) 施工前,要对操作人员进行书面安全技术交底及班前喊话。
3) 施工过程中,要进行现场指导及复核等工作。

二、 人员计划
根据现场进度及卸料平台搭设的工程量,每个卸料搭设劳动力计划安排如下表:
劳动力计划安排表

三、 材料要求
3.1. 钢管
(1) 钢管截面尺寸外径为 48mm,壁厚 3.5mm。用于卸料平台的维护栏杆。
(2) 钢管质量要求:
a.钢管表面应无裂纹,两端面平整,严禁打孔;
b.钢管外观质量按下表进行:

3.2 扣件
(1) 应使用与钢管管径相配合的可锻铸铁制作的扣件,其材质应符合国家现行标准《钢管脚手架扣件》(GB15831)的规定;
(2) 扣件与钢管的贴合面应严密整合,应保证与钢管扣紧时接触良好;
(3) 扣件活动部位应能灵活转动,开口处的最小距离应小于 5mm;
(4) 在螺栓拧紧力矩达到 65Nm 时,扣件不得发生破坏。
3.3. 工字钢
悬挑式卸料平台中的钢梁均采用 16#工字钢,其质量应符合《碳素结构钢》(GB/T700)中 Q235-A 级钢的规定,并有产品出厂合格证。
3.4. 钢丝绳
钢丝绳选用 619,钢芯 18.5mm,钢丝绳抗拉强度 2000N/mm2。
四、 卸料平台搭设工艺
4.1. 悬挑式卸料平台的构造
为解决楼层周转架料及其它物料的垂直运输问题,在每栋高分别设置 4 个悬挑卸料平台,低层建筑只需设置落地式卸料平台。
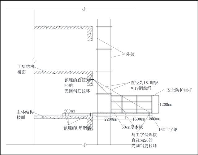
卸料平台宽度为 2.20m,悬挑工字钢均为 6m 长 16#工字钢,悬挑端布置两道直径为 18.5mm 的 619 钢丝绳卸荷。外侧钢丝绳距离主梁外侧端部200mm,内侧钢丝绳距外侧钢丝绳距离 1600mm。卸料平台搭设立面图如下:

卸料平台侧立面图
卸料平台搭设要求:
①次梁为 14#工字钢,间距 800mm。在卸料平台底面满铺 5cm 厚木板(或者先在次梁上铺设木枋,间距 150mm,再满铺 18 厚模板)。
②卸料平台搭设时,主次梁要避开外脚手架立杆,外脚手架立杆钢管直接穿过卸料平台,外脚手架水平杆避开卸料平台,在相邻位置补充加密水平杆。严格禁止卸料平台和外脚手架架体连在一起。
③在卸料平台工字钢锚固端,要用木楔将 U 形螺栓与工字钢卡紧,防止工字钢在钢丝绳的斜拉作用下往回缩。
④钢丝绳端头采用至少三个 U 形专用卡口螺栓紧固,螺栓的 U 口方向应两正一反。安装时对钢丝绳预加适当应力,保持钢丝绳处于绷直状态。
⑤卸料平台应设置 200 高踢脚板,防止扣件等物体坠落而造成伤害。
⑥卸料平台三侧边需做 1200 高防护栏杆,采用 483.0 钢管@1000 作立柱、Ф14 圆钢@400 制作防护栏,防护栏满挂安全网。
⑦卸料平台上需挂设限载公示牌,堆放材料总重不得超过额定限制荷载。按本交底制作出的卸料平台额定限制荷载为 600Kg。
⑧卸料平台制作完毕后,必须由生产部门组织,技术、质量、安全等部门相关人员参加,对平台进行验收,合格后方可投入使用。

卸料平台平面结构图

卸料平台护栏平面图

吊环及钢丝绳夹做法示意图

工字钢上吊环大样


4.2. 卸料平台的搭设、验收和使用
4.2.1. 卸料平台的搭设
1) 在搭设之前,必须对进场的杆配件进行严格的检查,禁止使用规格和质量不合格的杆配件。
2) 卸料平台的搭设作业,必须在统一指挥下,严格按照以下规定程序进行:
a.按施工设计定位预埋梁上拉环;
b.按施工设计放线、设置卸料平台位置;
c.定型卸料平台采用塔吊整体吊装;
d.按设计方案进行钢丝绳的拉接,紧固花篮螺纹;
e.设置防护栏杆,工字钢与预埋钢筋用预埋钢筋之间另用 U 形钢筋焊接固定。
3) 卸料平台的布置应考虑搭设方便、塔吊吊运半径和额定载重,与施工电梯等设备的相互位置关系等因素。
4) 装设钢丝绳时,应注意掌握撑拉的松紧程度,避免引起杆件的显著变形。
不得随意改变构架的设计、减少配件设置和对型钢纵横距放大。确实有实际情况,需对构架作调整和改变时,应提交技术总工解决。
4.2.2. 卸料平台的验收和检查
根据现行国家标准《建筑施工安全检查标准》(JGJ59-2011)、专项方案对卸料平台进行检查、验收。
1) 结构符合前述的规定和设计要求,个别部位的尺寸变化应在允许的调整范围之内;
2) 钢丝绳连接可靠;
3) 钢丝绳的直径在允许偏差范围内;
4) 卸料平台铺设花纹钢板、安全防护措施应符合上述要求;
5) 卸料平台下列阶段进行检查和验收,检查合格后,方允许投入使用或持续使用
a.施加荷载前后;
b.在遭受台风、大雨等强力因素作用之后;
c.在使用过程中,发现工字钢和钢丝绳有显著的变形以及安全隐患的情况时。
4.2.3. 卸料平台的使用规定
卸料平台的使用应遵守以下规定:
1) 卸料平台上料时,须轻放堆载物,并应使堆载物均匀放置在平台上,以保证其受力均衡。
2) 卸料平台允许堆载为 0.6t,不得随意超荷载使用。卸料平台应挂上明显的限载牌,人员和物料总重量严禁超过设计荷载,配专人监督。
3) 卸料平台搭设好后,进行全封闭使用,外侧围护立面满挂密目安全立网。
4) 卸料平台在使用过程中,要经常检查,确保安全可靠。六级及六级以上
的大风和雨天应停止卸料平台作业,雨天之后作业时,应把平台上的积水清除掉,仔细检查确认安全后,方可上人操作。
5) 施工人员应严格执行《建筑安装工人 安全技术操作规程》。
6) 卸料平台使用期间,严禁拆除钢丝绳的紧固件、工字钢与预埋钢筋的 U 形焊接钢筋、周围的防护栏杆。
7) 工人在平台上作业中,应注意自我安全防护和他人的安全,避免发生碰撞、闪失和落物。严禁在平台上戏闹和坐在栏杆等不安全处休息。
8) 每班工人上平台作业时,应先行检查有无影响安全作业的问题存在,在排除和解决后方可开始作业。在作业中发现有不安全的情况和迹象时 ,应立即停止作业进行检查,解决以后才能恢复正常作业。
9) 平台上作业时应注意随时清理落到平台上的材料,不得超载堆放物料,不得让物料在平台上放置停留超过 2 小时。
五、应急预案
5.1. 应急机制小组
1) 应急机制小组本工程应急机制小组分二级,第一级直接对接现场,由项目经理部领导成员组成,这也是事件发生第一反应小组,也是事件的控制中心。第二级间接对接现场,由公司总部高层领导成员组成,它支持、服务于第一级应急小组工作,为第一级应急小组提供财政支持,社会关系求助,对第一应急小组工作提供建议和决策参考。
2) 应急救援队伍
根据事件发生对象,组成事件相应救援队伍。一级救援队伍来源于项目经理部各主要部门,有项目的安全部、工程部、机电部、技术部、行政部、医务室等;二级救援队伍来源于公司总部各主要部门,有总部的质量安全保证部、企卫公司、项目管理部、机电部、资金部、财务部、公司医院等;两级之间相互配合、相互支持,由一级救援队伍处理事件的发生初始阶段;由二级救援队伍解决事件的调节、安抚、后期调查、上报政府部门、补偿等工作。
3)应急机制小组激活时间
事故发生后 1 小时内,启动应急机制,同时上报市政府有关部门。全天24 小时进入应急状态。事后处理报告提交公司总部、业主、政府部门 48 小时后,应急状态解除。
5.2. 物体打击应急预案
1)发生物体打击事故后,要立即停止施工,并及时报告,迅速抢救伤员。
2) 要即使将伤员脱离危险区域,转移到安全区域,防止事故的扩大,同时在现场采取必要的紧急救护措施,若受外伤,可用温水洗伤,在用干净绷带或布类包扎。如伤口出血,责应立即设法止血。
3) 要迅速备车或求援救护车将伤员送医院或急救中心,抢救时根据伤员受伤情况及部位,尽可能送往转科医院。
4)发生事故后,要迅速保护现场,事故现场范围内设警戒,派专人看守,或用绳索白灰将事故地点围起来,由于抢救伤员而需移动相关物件时要记录,拍照或记录。
5)在事故原因未明,未经事故调查组审查审批,严禁恢复生产。
5.3. 触电事故应急预案
发生触电事故后,要立即先切断电源,及时报告,采取救护措施。
1) 假如触电者伤势不重,神志清醒,未失去知觉,但有些内心惊慌,全身无力,或触电者在触电过程中曾一度昏迷,但已清醒过来时,则应将触电者置于清新空气流畅处,并要注意保暖,使触电者安静休息,不要走动,同时派人守护,严密观察。
2) 假如触电者伤势较重,已失去知觉,但心脏跳动和呼吸还存在,应将触电者舒适、安静的平卧,周围不围人以保持空气流通,解开触电者的衣服以利呼吸,如天气寒冷,要注意保暖,并迅速送往医院做进一步诊治。
3) 假如触电者伤势较重,呼吸停止或心脏跳动停止,或二者都已停止,应立即实行人工呼吸或胸外挤压,并迅速送往医院,但应注意急救,要尽快的进行,不能等医生的到来,在送往医院的途中,也不能终止急救,在急救中实行人工呼吸时,应迅速将触电者身上妨碍呼吸的衣领、上衣、裤带等解开,使胸部能自由扩张,并迅速取出触电者口腔内呼吸的事食物,以免堵塞呼吸道,同时使触电者仰卧,并使其头部充分后仰,鼻孔朝上,作胸外心脏挤压时,应使触电者仰卧在比较坚实的地方,在触电者胸骨中段叩击 1~2 次,如反应在进行胸外心脏挤压,直到病人清醒为止,不要轻易放弃抢救。
4) 假如触电者受外伤,可先用温水或无菌生理盐水洗伤,在用干净绷带布类包扎。若伤口出血,则应设法止血,将出血肢体高高举起,用干净纱布扎紧止血,同时立即送往医院进行进一步处理。
5)立事故调查组,查明事故原因,制定防范措施,经事故调查组同意后方可重新施工。
5.4. 高处坠落事故应急预案
1)发生高处坠落事故后,要立即停止施工生产,封闭作业区域,及时报告。
2) 要立即抢救伤员,及时将伤员脱离危险区,防止事故扩大,同时有必要在现场采取紧急救护方案,若受外伤,可用温开水洗伤,在用干净绷带或布类包扎。入伤口出血,则应设法止血。
3)迅速备车或求援救护车将伤员送医院或急救中心,抢救时根据伤员受伤情况及部位,尽可能送往专科医院。
4) 要迅速保护现场,在事故调查人员赶到施工现场前,要保护现场的原始状态,防止受自然条件或人为有意或无意的破坏,事故现场周围应设警戒,派专人看守,或用绳索撒白灰等方法标示出警戒区,采取抢险急救措施时要做好现场变动记录和拍照、录像。
5) 在事故原因未查明,未采取有效防护措施之前,严禁继续施工,必须经事故调查组同意后方可恢复生产。
5.5. 机械伤害事故应急预案
1)发生伤害事故后,要立即停止施工,切断电源,并及时报告迅速抢救伤员。
2)如果伤员伤势不重,要立即送到工地医务室,由卫生防护部门进行消毒,包扎伤口,并给予消炎药物。
3) 如果伤员伤势严重,要迅速备车,或求援救护车,将伤员送医院或急救中心,抢救时根据伤员受伤情况及部位尽可能送往专科医院诊治。
4) 迅速保护现场,在事故调查人员赶到施工现场前,要保护现场的原始状态,防止受自然条件或人为有意或无意的破坏,事故现场范围应设警戒,派专人看守,或用绳索撒白灰等方法标示出警戒区,禁止无关人员进入保护范围,更不允许其它部门人员擅自进入现场勘察,采取抢险,急救措施时要做好现场变动记录和拍照、录像。事故原因未查明,未采取有效防范措施之前,严禁继续施工,必须经事故调查组同意后方可恢复生产。
