施工图的专业分类
对于一个工程项目来说,想要进行施工,必须配备一套完整的施工图。通常来讲,完整的施工图包括:建筑施工图、结构施工图、给排水施工图、暖通空调施工图和电气施工图。而水施、暖施和电施也被统称为设备施工图。
以土建造价为例,在工作中涉及到的基本上是建筑施工图和结构施工图。
一、建筑施工图的组成
对于一个公司来讲,当进行项目的施工时首先要拿到相应的建筑施工图纸和结构施工图纸。
以建筑施工图纸为例进行讲解,首先要了解图纸的组成。
通常建筑施工图由目录、图纸说明、图例、平面图、立面图、剖面图和节点详图组成。
(一)图纸目录及说明
对所有建筑专业图纸的汇总目录,或是整个单项工程的汇总目录等

通过图纸目录,我们可以了解这个项目的内容。
忽略图纸说明直接看后面的图纸是新手最常犯的错误。图纸说明包括很多重要的信息,项目的工程概况、使用的规范标准、通用或特殊情况的说明。无论是对施工还是算量,都具有极强的指导作用。
(二)平面图
经过了图纸的目录和说明后,终于开始看到图纸的内容了。一般包括首层平面图、标准层平面图、屋面层平面图等。
所有层(某建筑的4-8层或3-16层)全都是一样的,可称为标准层平面图。
对于每一层都是不一样的,可称为首层平面图。所以对于平面图来说,出现多少个平面图取决于工程项目的具体情况。若出现很多层不一样,则需要分别单层表达。
屋面需要单独出一个平面层的原因在于,屋面上有很多排水、坡度、屋面挑檐等等。
建筑平面图的识读内容
下面以某单位住宅楼底层平面图为例说明平面图的识读方法
首层平面图

某单位住宅楼底层平面图
1、了解平面图的图名、比例
2、了解建筑的朝向
3、了解建筑的平面布置
对于上图,底层平面图、首层平面图或一层平面图指的都是最底下的平面图。比例为1:100,朝向为上北下南。
整个建筑的平面布置,除卧室、厕所、盥洗室等外,应注意首层和外面的地面关系,室内的地坪一定要大于室外地坪;还需注意的是墙体和门窗洞口的设置,以及首层的楼梯。
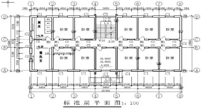
标准层平面图

1、为了简化,已在首层平面图上表示过的内容,在标准层平面图和顶层平面图上不再表示。如:不再画散水、明沟、室外台阶等;识读标准层平面图和顶层平面图重点应与底层平面图对照异同。
2、顶层平面图上不再画二层平面图上表示过的雨篷等。识读标准层平面图和顶层平面图重点应与首层平面图对照异同。如:平面布置如何变化、墙体厚度有无变化;楼面标高的变化、楼梯图例的变化等。
屋顶平面图的识读

屋顶平面图主要反映屋面上天窗、水箱、铁爬梯、通风道、女儿墙、变形缝等的位置以及采用标准图集的代号、屋面排水分区、排水方向、坡度、挑檐、雨水口的位置、尺寸等内容。
二、阅读建筑施工图的基本方法、步骤
识图基本方法
1、建筑施工图的平面、立面和剖面是运用三面正投影的成图原理, 按照制图统一标准来绘制的,因此也要按投影原理和制图标准来识读。
2、一整套施工图是表示并说明一栋建筑物的各层之间的关系, 因此要互相对照阅读,找到相互之间的关系。
3、看图时基本要求:应按照从整体到局部,由粗到细,从大到小,由外向内,仔细认真的阅读。
识图步骤
1、先看目录,了解图纸的组成和张数,对应检查图纸是否齐全。
2、再看施工总说明。对建筑工程名称,设计单位,建设单位、工程概况、施工技术要求加以了解,明确采用哪些规范及标准图集,并准备好图集。
3、看总平面图。了解建筑位置、室内外整平地面标高、建筑物朝向建筑物总长、总宽、总层数。
4、看各层平面图及立面图、剖面图。从平面图了解房屋的长、宽、轴线、尺寸、开间大小,并结合立面图及剖面图,想象出房屋的立体形象。
5、了解房屋的功能,由施工顺序从首层平面图、标准层平面图、屋顶平面图,建筑构造及装修的顺序,仔细阅读,若有问题可在会审图纸时向设计人员提出。
6、阅读图纸过程中,注意与施工工序有关部分,在计算工程量与套价时才能做到心中有数。
7、看图时应将各工种图纸结合起来看。看建施要参照结施和设施,查看是否有自相矛盾之处。如设施中管道的位置是否穿梁、穿基础。若有问题应即时向设计部门反映,不得私自修改图纸。
由此,我们就能够较顺利地识读施工图,并能在头脑中想象出房屋的整体形象,这是工程造价计算工程量的基础。