一、工程概况
案例工程由多栋高层住宅楼组成,地下部分均为整体地下车库。场地整体呈西高东低布置,基坑大开挖最深处约5.5米,最浅处约2.5米。
由于该地块西侧筏板边线距建筑红线较近,结合现场实际情况,基坑支护设计边坡坡度为1:0.4,基坑开挖范围内土质均为粉砂或粉土,且边坡顶部原先埋有高压电缆线,土方开挖过程中局部边坡沿电缆线位置出现塌方现象。西侧边坡总长度约205m。
二、处理方案
1、局部塌方区域处理措施
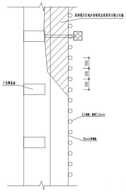
先按照设计图纸放出基坑边线(筏板边线外扩60cm),沿边线垂直钉入A63钢管,钢管壁厚3.5mm,钢管外露于基底以上1.5m,钉入土层内2m,钢管间距50cm。在钢管内侧衬8mm厚钢板,钢板高度1.5m。钢管及钢板安装到位后,在塌方区域自坑底往上堆放沙袋,沙袋堆放坡度1:0.55,沙袋堆放时每层缝隙错开咬槎,沿坡面间距2m埋设泄水管。最后在堆好的沙袋坡面上,按照原基坑设计方案做土钉墙。

局部塌方区域剖面图
2、西侧边坡未塌方区域加固措施
对于未塌方的西侧边坡,待原设计方案中土钉墙施工完毕后,为安全起见,沿西侧基坑边坡底通长,按照上述钢管及钢板施工方法进行加固。壁厚3.5mmA63钢管按照间距50cm,钉入土层内2m,外露于基底标高以上1.5m,在钢管内侧通长放置1.5米高8mm厚钢板,最后在坡底空隙处堆放沙袋镶牢。

3、西侧边坡塌方区域广告牌基础加固措施
对于塌方区域外露的广告牌基础,采取以下措施进行加固:在坑底广告牌基础对应位置另行打入4根壁厚3.5mmA63钢管,然后用钢管斜撑于广告牌外露的基础上,用可调顶托顶牢。

西侧基坑处理平面图
三、基坑监测
1、本工程监测要求包含以下内容:周边地表竖向位移;边坡顶部水平位移、竖向位移。
2、变形控制的监测报警值:边坡顶部水平位移累计值小于30mm,并小于5mm/d;边坡顶部竖向位移累计值小于30mm,并小于3mm/d;基坑周边地表竖向位移,累计值小于20mm,且小于2.5mm/d。
3、在基坑开挖期间,须做到一日一测,在地下室施工期间的观测间隔可视测得的位移及内力变化情况放长或缩短。监测频率和监测报警条件应根据规范要求进行。
4、沿基坑周边共布置20个水平位移和沉降观测点(其中西侧处理边坡处共布置7个)。基准点选在相对稳定和使用方便的位置。监测期间,应定期检查工作基点和基准点的稳定性,具体点位设置以检测单位现场定点为准。监测基准定布置如下图:

监测基准定布置图
注:▲基坑边坡位移、沉降观测点
5、沉降观测:沿基坑四周道路布置观测点,间距不大于20m,仪器采用DS1水准仪。基准点布置在基坑边线20m以外。
6、位移观测:沿基坑四周布置位移观测点,其间距为20m,且不大于25m,观测仪器采用经纬仪。
7、基坑监测过程中要做好巡视检查。
8、检测频率

四、雨季施工措施
由于该基坑工程施工正处于雨季,因此必须做好防雨、防雷、防风等措施。
1、一切机械设备应设置在地势较高,防潮避雨的地方,要搭设防雨棚。机械设备的电源线路要绝缘良好,要有完善的保护接零。
2、做好现场的排水系统,将地面雨水及时排出场外,并安排抽水设备,防止场地内积水。施工前应做好场内的道路畅通,排水通畅,使场内雨后不陷不滑、不积水。
3、提前备好防雨器具,薄膜3000㎡,3寸水泵3台,排水胶管500米,编织袋2000条、铁锹30把、雨衣、雨靴等防雨物资,确保雨季正常施工不受影响。
4、机动电闸箱的漏电保护器装置要可靠,施工要按电气专业规定设置临时装置。雨后对所有用电设备及电线做全面检查,发现问题及时处理。
5、施工道路用200mm厚混凝土硬化,避免因下雨道路泥泞无法施工。
6、做好中长期天气预报收听工作,及时调整施工顺序。如果暴雨后基坑内集水,把提前准备好的3台水泵立即安装启动,将基坑内水排出,确保基坑安全。
7、如果刚开挖的坡面还没有支护就遇到下雨,可调动应急库存的薄膜把坡面覆盖,防止坡面冲塌。
8、雨期施工期间,必须派专人昼夜值班,并准备好抢险材料和人力,时刻准备排除险情。
第二个案例
一、工程概况
案例工程为1栋集厂房、科研、办公楼于一体的建筑,建筑层数为地下4层,地上自西向东两侧建筑为14层,建筑高度为59.98 m,其中1~7层为厂房,8~12楼为科研楼,13层为办公楼;中间地上建筑为4层,建筑高度为24 m,其中1~3层为厂房,4层为会议室。基础形式采用筏板基础,CFG桩复合地基。
二、出现险情
1、在马道出入口处左侧第7根支护桩和第8根支护桩之间、-8.96米至-12.96米处出现流砂现象,致使支护桩外地面出现塌陷现象。塌陷坑3米x4米左右,深4.5米左右。时间:2016.10.18上午11:00
2、经项目部检查,此次塌陷的地方是原来的回填位置。
3、经第三方检测单位复测,地面塌陷没有对支护桩和基坑边坡造成任何的影响。

支护桩外地面塌陷位置
三、应急措施
出现险情后,我方立即启动应急预案,使用钢管搭设围挡、采取隔离等办法,封闭现场。

塌陷处采取钢管隔离
四、原因分析
塌陷位置处于马道口位置。由于支护桩锚索施工没有达到马道边缘。支护桩之间没有锚喷混凝土,地面渗水由此处造成流沙冲击口。随着流沙量的加大,支护桩外土方量减少,由此造成地面塌陷。

流沙口位置
五、整改措施
1、首先人工拆除由于塌陷所造成的超出设计坡脚部分;
2、基坑内的杂物清理干净。
3、将马道的土方整平,达到锚索施工条件。将锚索钢梁施工完毕。

流沙口处锚索施工
4、锚索施工完毕后,在支护桩中间使用14@200钢筋网植筋,C20细石混凝土喷锚。附图4,锚喷混凝土植筋

5、植筋注意事项。按照技术要求确定钻孔的位置、深度、孔径,如有串动或遇原有钢筋密集间隙不足须经主管工长许可后改变孔位。孔径应大于钢筋直径4~6mm,成孔时不得破坏原有混凝土的构件结构,不得切损构件原有主筋和其他受力钢筋。成孔后的孔壁必须完整无损,无裂缝、蜂窝、孔道。
6、使用编织袋满装沙子,在支护桩(锚喷)外面密实排放。编织袋以外塌陷处使用沙土回填。
7、回填注意事项:
1)回填时禁止直接将沙土直接倾倒于基坑内。
2)沙土回填分层夯实,禁止使用蛙式打夯机。