一、基础钢筋计算和对量
1、独基的翻样和对量:
(1)当独基底板X向或Y向宽度=2.5M钢筋长度可减短10%,但对偏心基础某边自中心至基础边缘=1.25M时沿该方向钢筋长度=L-2*保护层。独基四周钢筋不缩减。
(2)当双柱独基和四柱独基柱距较大尚需在双柱间配置基础顶部钢筋或设置基础梁。
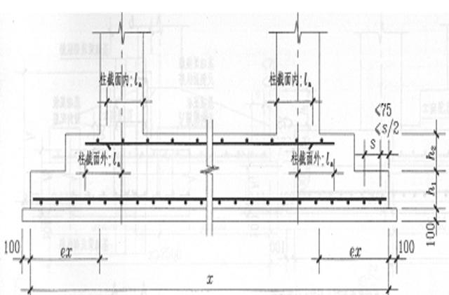
(3)柱截面内钢筋长度=净长+2*La;柱截面外钢筋长度=跨长+2*La.
双柱独基构造:

独基构造:

2、条基的计算和对量:
(1)双梁或双墙条基顶板尚需配置钢筋,锚固从梁内边缘起。
(2)当独基底板X向或Y向宽度=2.5M钢筋长度可减短10%,但对偏心基础某边自中心至基础边缘=1.25M时沿该方向钢筋长度=L-2*保护层。
(3)T和十字型条基布进1/4,L字条基满布。
(4)条基分布筋扣梁宽。
条基构造:

条基平面表示图:

3、承台及承台梁钢筋计算与对量:
(1)承台、承台梁钢筋弯折为10D.当桩内侧伸至端部直段长度35D时不设变折。
(2)承台钢筋不缩短,长度为L-2*保护层。
(3)桩顶钢筋在承台内锚固长度为MAX(LAE,35*D)。
承台构造:

4、基础连梁的翻样与对量:
基础连梁有两种情况:
(1)一是不贯通基础,主筋在独基、条基和承台边缘开始锚固。
(2)二是贯通基础,纵筋在框架柱截面投影范围内锚固。
(3)贯通基础的连梁遇支座能通则通。
(4)一般来说:大支座不贯通,小支座贯通。
基础连梁的三种构造:

基础连梁贯通构造:

5、地框梁的翻样与对量:
地框梁是基础顶面以上室内地坪以下且以框架柱为支座的梁。地下框架梁以下的柱称地下框架柱。
有地框梁时柱加密从基础顶面至地框梁顶以上Hn/3 (柱净高/3)。
有地框梁时柱加密情况:

地框梁钢筋构造

(1)地框梁钢筋支座负筋与楼层框架梁不同:L=Ln1/3+Hc+Ln2/3.
(2)其余钢筋构造同楼层框架梁。
6、平板式筏基钢筋计算
基础纵向钢筋构造:

基础梁钢筋计算注意:当底部贯通筋出现不同配置的纵筋时配置较大一跨的底部纵筋须延伸至毗邻跨配置较小的跨中1/3连接区域。
梁高加腋是计算加腋,需要标注;侧腋是构造加腋,由施工方面实施,设计不注。

基础梁负筋计算:
(1)下部非贯通筋(中间跨)= max(1/3 Lo,a)*2
(2)下部非贯通筋长度(边跨)有外伸=max(1/3 Lo,a)+L-保护层+12*D;无外伸max(1/3 Lo,a)+(左支座-保护层)+(h-保护层*2)/2或15d(上部无连接时候)
(3)Lo取柱相邻两跨较大值,a取值:基础主梁a=1.2La+Hb+0.5Hc;基础次梁a=1.2La+Hb+0.5Bb

基础梁钢筋计算:
基础主梁侧面构造钢筋计算:


基础主梁箍筋设置范围:

基础主次梁端部外伸构造:

(1)梁上部第一排与下部底排纵筋伸至外伸边缘弯折,其弯折长度为12*d;
(2)上部第二排纵筋伸入边柱或角柱内弯折12*d;
(3)下部非底排纵筋伸至外伸边缘截断;
基础主梁端部无外伸构造:


(1)端部无外伸构造中基础梁底部与顶部纵筋成对连通设置,成对连通
(2)底部或顶部多出的纵筋伸至基础梁端部弯折,其弯折长度为15*d;
(3)端部无外伸构造中基础梁底部与顶部纵筋成对连通设置(可采用通长钢筋,或将底部与基部钢筋对焊连接后弯折成型),并向跨内延伸或在跨内支付宝区域连接,成对连通后,底部或顶部多出钢筋按下图构造。

基础次梁无外伸时构造:

(1)下部钢筋锚入基础主梁内la,当无法直锚时弯折;
(2)上部钢筋锚入基础主梁内为:max(12*d,bb/2);
(3)基础次梁端部第一道箍筋距基础主梁边50开始布置;
梁板式筏形基础无外伸构造:

(1)上部纵筋锚入基础梁内为:max(12*d,梁宽/2)
(2)下部纵筋伸至基础梁边缘弯折,弯折为15*d
平板式筏形基础无外伸构造:

(1)上部纵筋伸至基础边缘弯折,且总锚长la,弯折长度15*d
(2)下部纵筋伸至基础边缘弯折,其弯折长度max(1.7*Lae,h-bhc)
平板式筏基钢筋计算筏板边缘侧面封边构造:



梁标高变化时构造节点:

(1)上部第一排钢筋的锚固为:hc+c(高差)+La,其弯折长度为:c(高差)+ La
(2)上部第二排纵筋伸至对边,总锚长la,当直锚(hc-bhc)la时,可不设弯勾;
(3)下部第一排纵筋应伸至低标高较高处的梁内满足la;其锚固长度为:hc-bhc+斜长+La,弯折长度为:Lw=斜长+La
两边梁宽不同构造:


(1)宽出部位的上下第一排纵筋成对连通配置;
(2)宽出部位的上下第二排纵筋伸至对边,总锚长la,当直锚la时,可不设弯勾;
二、基础计算要点
1、基础梁外伸时钢筋弯折长度为12D,无外伸时为梁高1/2,多出部分钢筋弯折长度为15D。
2、高低基础梁低跨钢筋伸入高跨内Lae。
3、基础梁底部负弯矩钢筋自柱中心线向跨内延伸的长度为跨度/3且=1.2LA+梁高+0.5柱宽。
4、基础次梁无外伸时上部钢筋伸入支座(基础主梁)内为=12D且=支座宽1/2.基础次梁下部钢筋=LA,外伸时上下部钢筋弯折12D。
5、梁板式筏形基础外伸时底板上部钢筋和中部钢筋=12D且到梁中心线,下部钢筋伸到梁箍筋内侧+弯折15D。
6、平板式筏板外伸时上下钢筋弯折12D,U型封边筋长度:筏板厚-2*保护层+2*12D.交错封边纵筋弯折长度:板厚1/2-保护层+75。