计也是非常有讲究的。楼梯不仅是连接上下层的通道,而应是一个舒适的空间。
我们将通过以图文的形式向大家介绍楼梯的基本知识、常犯错误、正确画法、各式创意楼梯,以及著名楼梯举例等等。帮助大家轻松掌握楼梯的设计技巧。
住宅中的楼梯
首篇我们先整体看一下住宅中楼梯的设计要点,后面篇幅会再为大家一一剖析。
复式的空间配置
复式是指高度不同的层相互交替重叠,用楼梯连接的空间。
复式的特点是,上下层空间的连续性高,以楼梯为中心的设计,可以创造出流动性的空间。特别是半层的设置,缓解上下楼梯带来的心理上的压迫感。
下图是将面前的楼梯切开,往里面看去的剖面图。
略微向内的楼梯平台比较宽阔,除了方便轻松上楼,还使上楼的空间得到延展。

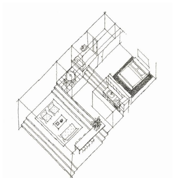
平面图参考:

下图是整体住宅的平面图。
需注意:复试平面图是以楼梯为分界线,左右的高度是不一致的。
一层的平面图,楼梯左侧是一层,右侧是夹层;
二层平面图,楼梯左侧是二层,右侧由于是天井,不作任何标记;
地下一层的左侧是实地。
楼梯设计法则住宅中的楼梯
2.楼梯平台
楼梯中间设置一个平台,上楼梯时可以停顿一下,也可以防止从楼梯滚落下来的时候,一下子滚落到最底层,给上下楼一个缓冲的空间。这个在楼梯中间设置的平台,成为休息平台。
休息平台并不是为了消除上下楼的恐惧心理而设置的。它的作用就像它的名字一样,是一个能够让身体稍微得到休息的空间,当然也可以把它装饰得高雅华丽,犹如一个舞台。

下图是楼梯部分平面图。
在这个住宅里,为了充分体现休息平台作为一个舞台的作用,把休息平台设计得比较宽阔,长900mm,宽3300mm。并为了有效利用空间,把浴室设置在中间。浴室周围环绕着楼梯,这样既能够保证浴室空间的宽阔,还能够使楼梯在结构上安排得紧凑。
除此之外,厨房与浴室相距不远的设计,满足了平面设计上的用水区域尽量整合在一起的要求。

下图是楼梯部分的剖面图。
从楼梯可以望见饭厅,这样设置是考虑到在上下楼的家庭成员、休息平台的家庭成员和饭厅的家庭成员,可以目光交融,产生对话,勾画出一幅生动和谐的家庭生活画面。
踏步梯面高度180mm,踏面宽225mm。半层(高1800mm)上来是浴室,如果想窥探浴室,人体视线要向上大幅度移动,所以很好地保护了个人私密空间。

下图是楼梯部分的剖面图。
从楼梯可以望见饭厅,这样设置是考虑到在上下楼的家庭成员、休息平台的家庭成员和饭厅的家庭成员,可以目光交融,产生对话,勾画出一幅生动和谐的家庭生活画面。
踏步梯面高度180mm,踏面宽225mm。半层(高1800mm)上来是浴室,如果想窥探浴室,人体视线要向上大幅度移动,所以很好地保护了个人私密空间。

3.环绕天井的旋转楼梯
下图住宅在中央天井的周围设置了楼梯。
人们从不同高度的休息平台上通向空间。
光线从天井的天窗直射下来,面向天井的房间只要有窗户,就可以保证采光和空气的流通。
这样设计的住宅,即是位于城市中的人口密集处,也可以保证不受周围环境的影响,享受舒适空间带来的快乐。

下图是楼梯部分的剖面图。
楼梯的踏步随着楼层的升高略微发生变化。根据踏步数进行计算,从下至上,踏步高度大约为128mm,143mm,133mm。

本图是楼梯部分的平面图。
从中间的楼梯踏面计算,宽度为1350mm/6=225mm。请注意外围的楼梯口不是紧贴着天井的拐角,而是略微向后设置。这样可以使右侧连接楼梯口的道路变宽,从而消除心理上的不安全感。

本图是二层整体平面图。从这张平面图上来看,是一个连续的空间,但实际上有高低落差,各个区域被划分。像这样通过高低落差进行区域划分,遮挡每个房间的声音和视线,既保证了空间的连续性,也保证了个人空间的私密性。

4.缓斜面上的楼梯
城市里的住宅面积有限,不少住宅需要建造在斜面上。在这里,我们探讨有效利用斜面建造住宅的方法。

4.缓斜面上的楼梯
城市里的住宅面积有限,不少住宅需要建造在斜面上。在这里,我们探讨有效利用斜面建造住宅的方法。

下图是另外一个有效利用斜面的住宅。该住宅将斜面设计成了楼梯。

下图是上图住宅的平面图。楼梯穿插在起居室、饭厅、厨房、浴室和书房的缝隙处,平行设置,踏步高度逐层加大。从最低处的饭厅到最高处卧室,通过高低落差划分了区域,私密性得到双重保护。
