攒了多年的钱(土豪走开),好不容易凑了个首付,当然要选一个满意的房子。
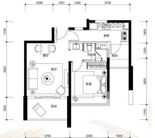
怎样的房子才是好呢,在户型图上就能看个大概。来张一般的户型图,骚年,请问你看懂了多少?

房间布局你肯定是看懂了(有字标注好不好),但里面的很多猫腻你一定不知道!
户型图体现出住房的平面空间布局,对各个独立空间的使用功能、相应位置、大小都进行了描述,可以直观的看清房屋的走向布局。
户型在某些时候是需要先天不足后天补的,所以了解户型的可变结构很重要。比如哪些墙能动,哪些墙不能动等等。
这些符号都是什么鬼
户型图上的三大要素是图画、数字和文字,其中主要以图画来表示房屋结构以及功能分布,所以,如果你不认识这些图标,你就不可能看懂户型图。
图标认识
一般户型图都会包含一些基本的家具,例如床、沙发、椅子等,这些在户型图中都会被形象地标注出来,很好辨认。
而其他像空调、油烟管道、窗户、结构墙这种则难一些:


看尺寸数字
每个户型图上在墙的外围都会有尺寸的标准,通过这些尺寸,我们可以清楚测量各个功能区间的面积。都是mm为单位哦,比如2000就是2米。

不过,要注意的是,这个尺寸是包含了墙体的厚度的,所以,算出来的是建筑面积,而不是套内面积。
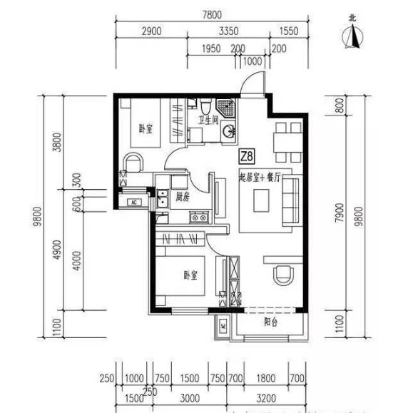
户型图上看到房间挺大的,怎么收楼时感觉那么窄小,怎么回事?
问题可能就出在示意家居的尺寸上,有时候开发商为了显示出房间的宽敞感,会在户型图上适当将家居尺寸画小,所以,大家一定要警惕不可信的家具,自己要对常用家具尺寸心中有数。

认识了这些,你还要注意下面这些点:
~ 要记住一些基本数据标准:客厅开间至少要有3.5米,否则坐在沙发上看电视眼睛很难受。卧室长和宽最好别低于3米,否则床、衣柜和梳妆台将难以共存。
~ 大落地窗、大飘窗不宜太多,因为这样会减少了墙面的有效使用面积,原本可以墙上钉隔板、做整面墙柜子,但现在都办不到了,这样收纳面积就很少了。
~ 使用率是住宅套内净面积(使用面积)和住宅面积的比,一般70%~80%左右;实用率是套内建筑面积和住宅面积之比。
实用率大于使用率,有些开发商用实用率代替使用率并混淆这个概念来吸引购房者。(我猜你已经眼花分不清了)
~ 按国家有关规定,阳台、露台、飘窗等这些地方本身就只能算半面积或不算面积,这部分面积本来就不应当计入建筑面积,应属购房人所有。另外赠送面积不属于产权面积,不会写入合同内。
怎样才是好的户型
01
整体形状方正
方正的户型并不是一直的标准,曾经偏爱长方形。20 世纪的建筑大师们厌倦了古代城堡和宫殿的长方形,便把目光转向了正方形。
在建筑师勒柯布西耶(Le Corbusier)看来,正方形是一种合理、理性的象征,是近代的处理方式。日本建筑大师隈研吾曾评论道:如果放任使用长方形的话,就会显得很野蛮、幼稚。
现在方正户型才是香饽饽,方正不是说非得一个规矩的正方形,而是各个房间和功能区域的形状是方正的矩形。这样就意味着空间利用不会出现浪费的情况。

02
开间偏大、进深偏小
开间直接关系到房间的宽阔度和房间里家具的摆放是否有足够空间,同时影响到自然采光的问题。如果房间进深偏大,光线很难照到深处角落。
是不是一脸懵逼,什么是开间,什么是进深?
我们把房间的主采光面称为开间(有些地方称作面宽),与其垂直的称为进深。

也可根据房间门的朝向来确定开间和进深,房门进入的方向的距离为进深,左右两边距离为开间;
卧室以床顺着摆放的方向为开间,床头依靠的墙宽度为进深。

因为开间反映的是户型的采光情况,如果开间狭窄,进深偏宽则不利于采光、通风。如果开间过大进深偏小,则不利于房间保温、浪费能源。
开间和进深的比例要适用,一般意义上的户型方正就是指户型的进深与开间之比合理,进深/开间一般介于1~1.5之间。
下面要说的就是横厅和竖厅,又一脸懵逼?很多人对于这两个厅傻傻分不清,其实它们的不同就在于进深和开间的相对大小。
如果客厅进深小于开间,那么这种客厅则为横厅,反之则为竖厅。

横厅减少了过道空间,提高了户型的使用率,更大气,并且采光和通风效果更好。
缺点就是客厅的沙发不能靠墙,不符合中国人背有靠山的习俗追求;客厅与房间遥遥相望,私密性较低。

竖厅的话各个功能区布局分明,各有界限,动线合理;沙发可以靠墙摆放,符合习惯。
缺点是采光面较小,过道会占用一定面积,浪费空间,实际可用面积变小。
03
户型没有暗间
房间都是坐北朝南当然是最理想的,但是,总有这样那样的不完美,比如暗间。
暗间是多少人心中的痛,一个完全没有窗户的房间真的是硬伤。除了无法自然采光,通风也是大问题。
现在的新房多数暗间被安排在卫生间(暗卫不是白叫的),家里哪最暗,一般都是卫生间。(厕所也想哭好不好)厕所通风不好,湿气有较大,白天进入也需要灯光。

04
静线和动线合理,干湿分区
动静区分:
卧室+书房+主卫=静区
动线一般是客厅和厨房要和卧室休息区合理分开,各在不同的两边,这样不会打扰到休息。厕所和厨房一般较潮湿,所以和卧室最好也要分开。

干湿分区:
厨房+卫生间=湿
干湿分区就是指厨房、卫生间这两个湿气较重且较容易产生脏污的房间应与精心装修的怕水怕脏的卧室客厅等尽量分离。

卫生间现在就很流行干湿分离,这样能够减少卫生间的潮湿感,也能够提高卫生间的使用率,当然,卫生间大一丢丢更好实现干湿分离。

05
房间大小要适中
房间越大越好?非也非也。整套房间的设计要考虑比例和布局。
一般卧室、客厅的位置是相对固定的,创意亮点往往体现在其他功能性空间的处理上。厨房、餐厅、卫生间,是必须仔细关注的三个位置。
你可以假想日常的生活状态,就能判断出设计是否合理。比如,卫生间离次卧会不会太远,餐桌的摆放空间是否足够,或者,当卫生间的门恰好打开时,餐厅里的人会不会能够看见马桶,等等。
原则上厨房、餐厅、厕所的位置至少应具足够的私密性。
