后浇带根据设计要求或施工要求进行设置,宽度一般为0.7~1.Om,当地上、地下均为现浇钢筋混凝土结构时,设计留设的后浇带应包括地上、地下,并贯通地下、地上整个结构,且该部分钢筋连续不间断。
加强带又称 工艺后浇带,是指因结构构件超长,面积超大,为防止构件因温度变化而使结构开裂破坏,需要采取特殊措施加以处理,且不人为设缝,仅滞留一段混凝土浇筑时间就进行带内混凝土浇筑,使其与结构成为整体的无缝结构。
加强带根据设计或施工要求进行设置,加强带宽一般为1.5~2.Om,当地上、地下都为现浇钢筋砼结构时,留设的加强带应包括地上、地下并贯通地下、地上整个结构,且该部分钢筋连续不间断。
采用本施工方法,我单位先后施工了中铁十三局地段改造项目基础底(筏)板、牡丹江市百万米安置房工程东湖丽景项目基础底板等工程的基础底(筏)板大体积砼施工,均取得了良好的效果。
工法特点
解决因功能需要的超常规设计和解决高层与裙房间的差异沉降、混凝土的收缩变形以及混凝土构件温度应力等问题,后浇带法或加强带法在建筑工程中已广泛应用,由于后浇带或加强带是通过施工过程来解决设计中考虑沉降或混凝土变形的调整办法,所以,后浇带或加强带的施工就显得尤为重要,必须采取切实有效的施工技术方法进行施工,确保后浇带或加强带的施工质量,来保证整个工程的施工质量,使后浇带或加强带真正起到设计的效果。
本工法从后浇带或加强带的构造设置、模板安装、支撑架搭设、钢筋绑扎、技术处理、后浇带或加强带混凝土浇筑、混凝土养护等方面采取措施,来确保后浇带或加强带的施工质量。
施工时只要根据设计要求的后浇带或加强带的位置、宽度留设后浇带或加强带,严格按工法要求进行搭设架子、支模板、绑扎钢筋、浇筑混凝土、混凝土养护、拆模即可满足设计要求。
该工法可操作性强,易于掌握,方便快捷,大大地提高了工作效率。在施工当中除执行现有的规范要求外,还要根据不同的工程性质、特点、作用,精心施工,才能保证每个工程项目设计的整体性、完整性,才能达到提高工程质量的真正目的。
适用范围
适用于所有设有后浇带或加强带的群体或超长建筑工程。
工艺原理
采用后浇带、加强带解决高层与裙房间的差异沉降、混凝土的收缩变形以及混凝土构件温度应力等问题,主要从模板安装、支撑架搭设、钢筋绑扎、技术处理、后浇带或加强带混凝土浇筑、混凝土养护等方面采取措施,确保后浇带或加强带的施工质量,从而保证建筑工程的完整性。
施工工艺流程及操作要点
施工工艺流程
施工准备支撑架复核(原结构施工时已搭设)钢筋修复、绑扎清理带内杂物混凝土浇筑养护。
操作要点
后浇带构造
底板后浇带

内、外墙后浇带

地下室顶板及楼板后浇带

模板工程
地下室顶板及楼板后浇带的支撑架子、模板要求与同一结构平面内的主体结构方案中架子、模板工程部分相同,并与主体同时搭设,
主体结构架子、模板拆除时后浇带处的架子、模板不得拆除,应待后浇带的混凝土浇筑养护达到设计及规范要求后方可拆除,支模时底模上应留出渣洞,便于清除后浇带内的杂物,浇筑混凝土前用木模封严渣洞。
后浇带两侧设置密目钢丝网加一层铁纱,也可采用快易收口网或木模支挡两侧的混凝土。
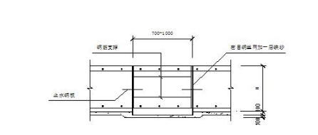
底板后浇带
后浇带两侧模板采用密目钢丝网加一层铁纱或快易收口网,也可采用木模板作模板支挡两侧的混凝土,见下图:

若后浇带两侧采用密目钢丝网或快易收口网的采用 钢筋作支撑,浇筑混凝土时可不必拆除,若采用木模的用木材作支撑,浇筑后浇带内的混凝土前拆除。
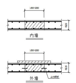
内、外墙后浇带
内、外墙后浇带处的模板采用定型组合钢模板,内外模板采用对拉螺混凝土配合加固,对拉螺栓直径和间距根据墙厚及墙高计算确定。
对用于外墙上的对拉螺栓,在中部设置70704 止水片,内墙的可不设。
后浇带两侧可用密目钢丝网加一层铁纱或用快易收口网,也可采用木模作模板支挡两侧的混凝土,见下图:

地下室顶板及楼板后浇带
地下室顶板及楼板后浇带模板、架子搭设要求同主体结构施工方案中的模板、架子搭设,搭设时应考虑后浇带以外的模板、架子便于拆除,后浇带两侧支挡混凝土采用密目钢丝网加一层铁纱、快易收口网或木模板,见下图:

后浇带两侧支挡混凝土的密目钢丝网加铁纱或快易收口网或木模板,应在钢筋绑扎时就配合进行安装并固定,对采用密目钢丝网和快易收口网的,采用钢筋作支撑,可不必拆除;对采用木模板的,要求两侧的模板、支撑牢固紧密,还应便于拆除。后浇带的模板必须待混凝土强度达到设计要求后方可拆除。
钢筋工程
后浇带处的钢筋与其它部分的钢筋连续一起绑扎,当用密目钢丝网或快易收口网支挡混凝土的,密目钢丝网或快易收口网应按设计位置预先安装好,便于钢筋绑扎时穿过。
对于设有加强筋的应按设计要求进行绑扎;
对于设有止水钢板的应与钢筋焊接固定;
对于后浇带两侧不同时施工,钢筋接头留在后浇带位置的,在施工后浇带前,应对钢筋进行清理,接头采用焊接,接头位置及焊缝质量必须符合设计及规范要求;
后浇带位置应进行覆盖避免钢筋污染,若钢筋及混凝土上被油性物质污染的,必须用碱水清洗干净,碱水浓度根据污染情况再做出选择。
混凝土工程
后浇带保留时间,若设计没有特殊要求的,一般不宜少于40天,若设计有要求的,按设计要求的保留时间,达到后方可浇筑后浇带内的混凝土。
后浇带混凝土采用较两侧混凝土提高一个强度等级的微膨胀混凝土,配制该部分混凝土须满足:
选用标号不低于32.5级的普通混凝土酸盐水泥或矿渣混凝土酸盐水泥。
选用级配良好的粗、细集料,且粗集料含泥量〈1%,细集料含泥量〈3%。
混凝土膨胀剂目前较多选用UEA(低碱型混凝土微胀剂),掺量经过试验确定。
若混凝土中须使用减水剂(泵送、强度等级较高),则须选用减水率较高,泌水较小的减水剂,品种及掺量通过试验确定。
后浇带的处理
对于底板后浇带必须在后浇带两端基坑围护墙内设置集水井,内设潜水泵,保持地下水位在后浇带底面位置以下
在浇筑底板混凝土时,趁渗入后浇带内的砂浆还未凝固之际,将高压水枪伸入后浇带内冲洗残浆;在浇筑后浇带混凝土前也用水枪冲洗,杂物随水流入集水井,由污水泵集中排除。
后浇带混凝土浇筑前,应清除带内的杂物,并用高压水枪冲洗干净,因后浇带滞留时间长,为防止垃圾等杂物落入带内,后浇带位置上应作覆盖(先铺一层防尘布,再满铺一层厚25mm板)。
后浇带混凝土浇筑之前的24h内必须浇水充分湿润两侧的混凝土。
后浇带混凝土浇筑前必须先浇筑一层与后浇带内的混凝土强
度等级相应的细石砂浆,以保证新旧混凝土的结合。
后浇带混凝土浇筑
后浇带的混凝土采用较两侧的混凝土高一个等级的微膨胀混凝土浇筑;
混凝土浇筑应会同建设单位、监理单位人员一起进行隐蔽验收,签证后方可浇筑混凝土;
混凝土浇筑采用泵送,同一楼层的后浇带混凝土应连续一次浇筑完毕,浇筑过程中的间歇时间不得大于初凝时间,且应避免出现冷缝。
混凝土入模后采用插入式振动器和平板振动器加强振捣,不得漏振。
混凝土养护
底板、顶板及楼板后浇带养护采用覆盖浇水养护或蓄水养护,若采用蓄水养护的,在后浇带两侧砌两皮砖,内侧用1:2水泥砂浆粉面厚20mm,混凝土终凝后蓄50~l00mm水对后浇带进行养护,见下图:

地下室内、外墙及主体结构内、外墙后浇带可采取带模浇水养护或拆模后采取挂袋定时浇水养护,浇水次数以保证墙面处于湿润状态为宜。
后浇带混凝土养护必须指派专人负责,养护时间不得少于14天。
加强带构造
底板加强带

内、外墙板加强带

地下室顶板及楼板加强带

模板工程
底板加强带
加强带两侧采用密目钢丝网加铁砂或快易收口网支挡两侧的混凝土,支撑采用木枋或钢筋,拆模时用钢筋作支撑的可不拆除,见下图:

内、外墙加强带
内、外墙加强带处的模板采用定型组合钢模板,内、外模板采用对拉螺栓配合加固,对拉螺栓直径和间距根据墙厚(高)计算确定,对用于外墙室外地面以下的对拉螺栓中部设置70704止水片,内墙可不设。
加强带两侧可用密目钢丝网加一层铁纱或用快易收口网作模板支挡两侧的混凝土,见下图:

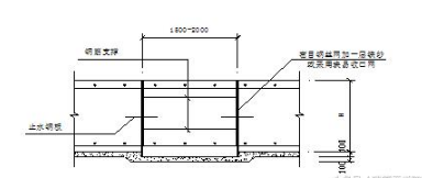
地下室顶板及楼板加强带
地下室顶板及楼板加强带模板、支撑架子搭设要求同主体结构施工方案中的模板、架子搭设,加强带两侧支挡混凝土采用密目钢丝网加铁纱或快易收口网,见下图:

加强带模板及架子(顶板及楼板)拆除时间与同一平面内其他部位的模板及架子拆除时间相同。
钢筋工程
加强带处的钢筋与其它部分的钢筋连续一起绑扎,当采用密目钢丝网加铁砂或快易收口网作支挡混凝土模板的,密目钢丝网或快易收口网应按加强带设计位置预先安装好,便于钢筋绑扎时穿过,有加强筋的按设计要求绑扎,有止水钢板的要与钢筋焊接固定。
混凝土工程
加强带混凝土要求
加强带内的混凝土采用较两侧混凝土高一个等级的微膨胀混凝土,配制该部分混凝土须满足:
选用标号不低于32.5级的普通硅酸盐水泥或矿渣硅酸盐水泥;
选用级配良好的粗、细集料,且粗集料含泥量〈1 %,细集料含泥量〈3%。
混凝土微膨胀剂目前较多选用UEA(低碱型混凝土微胀剂),掺量经过试验后确定。
若混凝土中须使用减水剂(泵送、强度等级较高)则须选用减水率较高、泌水较小的减水剂,品种及掺量经过试验确定。
配制加强带混凝土必须使用与两侧混凝土相同生产厂家、 同品种、同标号的水泥; 相同产地、品质的粗、细集料;同厂家、同品种、同批号的UEA及混凝土减水剂。
加强带混凝土浇筑
加强带混凝土浇筑时间与同一结构平面内的其他部位的混凝土浇筑时间相同。
混凝土浇筑顺序按施工组织要求进行,一般情况下浇筑混凝土的前进方向垂直于加强带,当混凝土浇筑至加强带前侧(或后侧)时跨过加强带,浇筑加强带后侧(或前侧)的混凝土,待加强带前侧(或后侧)的混凝土达到终凝,后侧(或前侧)的混凝土达到初凝时,调整配合比,浇筑加强带内的混凝土。地下室底板、内、外墙、顶板及楼板浇筑顺序均同。

加强带内混凝土浇筑应先从混凝土终凝的一侧浇筑,用振动棒捣固密实,且振动棒还应避免振动初凝一侧的混凝土。