从工程的设计、施工、原材料的控制等方面,对于地下室的裂缝和渗漏,使用目前比较成熟和先进的技术措施和材料,有效地解决了地下室的开裂和渗漏问题。
采用了建设部推广使用的十项新技术中的多种新型防水材料,推动了科技的进步和发展。
使用的一部分新型防水材料很适合在雨季施工,缩短了工期,保障了工程的总体目标的实现。
解决了裂缝和渗水的问题,为工程创优和树立企业品牌形象奠定了基础。
适用范围
本工法适用于超长大面积的地下室的施工,也可以指导一般混凝土结构的地下室的施工。
工艺原理
在设计方面,为控制结构温度引起的裂缝采取以下措施:
设置一道1000mm宽的后浇带,以减少外应力和温度应力。
采用低水化热的水泥配置混凝土,掺加适量的微膨胀剂或抗裂纤维。
采用碎石骨料配置混凝土。
施工时应严格控制水灰比,加强养护,采取合理的施工工序。
在材料方面,通过采取以下措施控制裂缝:
通过掺加粉煤灰、矿渣粉,减少水泥用量,以减少水泥水化热引起的温度应力和温度变形(按90天龄期强度计算);
通过减水剂、缓凝剂以及膨胀剂的复合使用,优化混凝土配合比,降低混凝土水化热,增强混凝土抗裂性能;
地下室底板、外墙混凝土内添加WJ砼抗裂防水剂
在施工技术方面,从钢筋、模板的制作安装至混凝土的浇注,防水工程的施工,均严格按照操作规程施工,以保证混凝土的结构施工质量。大体积混凝土必须进行二次抹面工作,减少表面收缩裂缝。
施工工艺流程及操作要点
工艺流程
定位放线破桩头垫层混凝土浇注防水找平层施工桩头及筏板防水层施工防水保护层施工定位放线基础筏板钢筋绑扎筏板混凝土浇注定位放线内外墙、柱钢筋绑扎内外墙、柱、顶板模板支设顶板钢筋绑扎内外墙、柱、顶板混凝土整体浇筑后浇带清理及混凝土浇筑外墙防水及防水保护层施工室外回填土
操作要点
钢筋工程
钢筋工程:钢筋接头形式主要有绑扎、闪光对焊、电渣压力焊及滚压直螺纹连接。本工程基础筏板钢筋全部采用滚压直螺纹连接,墙柱直径大于等于22mm的钢筋接头用滚压直螺纹连接,水平受力钢筋采用闪光对焊连接;竖向钢筋直径小于16mm采用绑扎连接,直径大于等于16mm的采用电渣压力焊连接。
地下室筏板底部钢筋保护层为50mm,剪力墙外侧迎水面钢筋保护层为50mm,梁柱钢筋保护层30mm,墙体钢筋保护层为15mm。墙体钢筋保护层采用成品塑料垫块,布置间距小于1m;底板宜用新型水泥砂浆保护层垫块。施工中严格控制钢筋保护层厚度,以保证混凝土自防水的质量。
钢筋的绑扎:钢筋的交叉点应全部交叉绑扎,绑扎丝尾部应弯入钢筋网内,所有绑扎搭接处最少绑扎三处。绑扎丝严禁与模板接触。
模板工程
筏板侧模:筏板底防水卷材为三元乙丙防水卷材,采用砖胎膜,做法见下图所示:
剪力墙模板:本工程的模板全部采用竹胶板拼模,钢架管、扣件及木方支撑系统。地下室防水要求采用自制防水穿墙对拉螺栓。
基础模板
底板与混凝土外墙之间留水平施工缝,墙体水平施工缝高出底板300mm,施工缝处设3mm厚钢板止水带,上下各150mm。
外墙模板采用竹胶合模板。支模采用50x100木方钢管架子与自制螺栓相结合,外墙螺杆Ф12,长度为墙厚加420mm,螺杆上焊上4x80x100止水钢片,木方间距不大于250mm,竖向钢管间距不大于350mm,横向钢管间距不大于450mm。具体做法如下图所示:

对拉螺栓在高度1m以下垂直间距300mm,水平间距500mm;1m以上垂直间距500mm,水平间距600mm。钢管排架立杆间距500mm~800mm,注意跨中加强部位间距小、加密。立杆架设扫地杆,底部设铁板或竹胶板垫片。排架应有剪刀撑加固,保证其稳定性和刚度。
剪力墙模板设计
剪力墙模板采用竹胶合模板。支模采用50x100木方钢管架子与自制螺栓相结合,墙体螺杆Ф12,长度为墙厚加360mm,木方间距不大于250mm,竖向钢管间距不大于250mm,横向钢管间距不大于450mm。对拉螺栓垂直间距450mm,水平间距450mm。
剪力墙模板支设如下图所示:


框架柱模板
采用竹胶板作面板,竖楞采用50100mm木方,间距250㎜;外侧横

向外楞采用2Ф483.5mm钢管进行加固,间距为400㎜,螺栓间距为400*400。


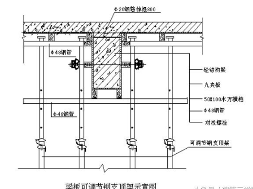
梁、顶板模板支设
采用竹胶板作底模,小楞采用50100mm木方,间距300㎜,大楞采用100100mm;支柱采用Ф483.5mm钢管,间距为800㎜。

模板的拆除
非承重模板的拆除如柱模和梁的侧模可在不损坏砼棱角的强度前提下拆除,具体时间要根据当时的气温来确定。
底模模板拆除必须遵循规范中规定砼强度达到设计强度的百分比后方可进行拆模,对重大复杂的模板的拆除需有详细的技术及安全交底,拆除前需经技术负责人同意。在砼强度符合下表后方可拆除。

拆除时严禁用大锤硬砸,以免损伤模板边框,每次拆除后,必须进行清理、涂刷隔离剂、分类堆放,拆下的模板发现有变形、短角、损坏等现象,应及时修理。
支、拆模板和砼浇筑时的注意事项:
在模板面进行钢筋等焊接工作时,必须用石棉板或薄钢板隔离,泵送混凝土的布料架脚和输送混凝土支架脚下应加垫板等有效措施。
模板支设时,须仔细检查埋件及各类预留洞口的位置和数量标高、几何尺寸等是否正确、牢固可靠,安装工作检查无误后方可合模,封模前还必须作好墙底部的清理工件,杂物清除干净后方可合模。
模板支设完毕后,在浇注前必须经技术、质量、安全部门和监理部门验收合格,签发砼浇注令后方可浇筑,并且在浇注过程中须派专人看护模板及支撑的变化情况,发现异常,应立即停止砼的浇注,并在砼初凝前将问题处理完毕,继续浇筑砼。
成品保护,吊装模板时轻起轻放,不许碰撞已安装好的模板,随安随吊,模板拆除时不得用大锤或撬棍强行拆模,以免损坏砼棱角,钢模及竹胶模板在使用过程中及时涂刷隔离剂,并且不得污染钢筋,施工过程中及时维修模板,保证砼截面的几何尺寸的正确性。
基础筏板后浇带模板:采用木模板。模板支设在钢筋骨架内,其内侧按照止水条尺寸用木条留出凹槽。
混凝土工程
混凝土浇筑
混凝土浇筑应按设计后浇带(加强带)的位置分区流水施工,各区段混凝土要求一次浇注完成。
本工程基础筏板厚度为2m,采用泵送商品混凝土。为控制好混凝土内部温度与表面温度之差不超过25℃,表面温度与大气温度之差不超过20℃ ,施工中主要采取如下措施:
合理控制混凝土入模浇筑温度。
为防止混凝土表面散热过快,避免内、外温差过大而产生裂缝,混凝土终凝后,立即进行保温养护,保温养护时间根据测温控制外界环境气温而决定。
混凝土的浇筑:为提高混凝土泵送率,避免冷缝出现,底板混凝土浇注采取一个坡度,薄层浇注,循序渐进,一次到顶的连续浇注方法。浇筑时,混凝土自然流淌形成斜坡,在下层混凝土凝固之前浇注上层混凝土,分层厚度宜控制在500mm内。在每一下料口,三个操作人员均匀分布在整个斜面,沿浇筑方向推进,确保不漏振,使新泵出的混凝土与上一斜面混凝土充分密实地结合。振捣应及时、到位避免混凝土中石子流入坡底,发生离析现象。振捣棒的操作,要做到快插慢拔,上下抽动,均匀振捣,插点要均匀排列,插点采用并列式和交错式均可;插点间距为300~400mm ,插入到下层尚未初凝的混凝土中约50~100mm,振捣时应依次进行,不要跳跃式振捣,以防发生漏振。每一振点的振捣延续时间30s,使混凝土表面不再显著下沉、不出现气泡、表面泛出灰浆为止。为使混凝土振捣密实,每台混凝土泵出料口配备3台振捣棒,分三道布置。第一道布置在出料点,使混凝土形成自然流淌坡度,第二道布置在坡脚处,确保混凝土下部密实,第三道布置在斜面中部,在斜面上各点要严格控制振捣时间、移动距离和插入深度。大体积混凝土的表面水泥浆较厚,且泌水现象严重,应仔细处理。对于表面泌水,当每层混凝土浇筑接近尾声时,应将水引向低洼边部,收缩成小水潭,然后用小水泵将水抽至附近排水井。在振动界限以前对混凝土进行二次振捣,排除混凝土因泌水在粗骨料、水平钢筋下部生成的水分和空隙,提高混凝土与钢筋的握裹力,防止因混凝土沉落而出现的裂缝,减少内部微裂,增加混凝土密实度,使混凝土抗压强度提高,从而提高抗裂性。在混凝土浇筑后4~8h 内,将部分浮浆清掉,首先用长刮尺刮平,然后用木抹子搓平压实。在初凝期间,当混凝土表面出现龟裂时,要进行二次抹压,以便将塑性裂缝消除。
墙体混凝土浇筑:墙体混凝土浇筑前,应在新旧混凝土的结合处均匀浇注50mm厚与墙体混凝土强度等级相同的水泥砂浆或石子减半混凝土。混凝土应采取自由斜度流淌,分层浇筑振捣的方法两侧混凝土下料高差不宜超过500mm,每次浇筑不得超过1m;混凝土下料点应分散布置,不得集中在一处用振捣棒引料流淌的方法。浇筑墙体有较大预留洞口时,洞口两侧混凝土的高度下料高度应基本一致,振捣棒应距洞口边300mm以上,宜从洞口两侧同时振捣,防止洞口模板因单侧受压而产生位移和变形;应在洞口下部的模板中留设振捣口,作为辅助振捣机回气孔,并可检查混凝土的浇筑高度。浇筑时混凝土要填充到钢筋、埋设物周围及模板各角落,要振捣密实,不得漏振,也不得过振。当竖向构件与水平构件一起浇筑时,先浇注墙柱,待混凝土沉实后,再浇筑梁和现浇板。
大体积混凝土温度监控措施
大体积混凝土浇筑后,必须进行监测,检测混凝土表面温度与结构中心温度,以便采取相应措施,保证混凝土的施工质量。加强混凝土的测温工作,实行信息化管理,随时控制混凝土内温度变化,并做好测温记录,以及时调整保温与养护措施,防止出现有害裂缝。当混凝土内、外温度差超过25℃时,应紧急增加覆盖草帘,控制温差。
因常规测温方法需留设测温孔,这种方法不仅测试精度不高,而且给施带来诸多不便,影响施工进度,因此工程用电子测温仪测温。测温探头在混凝土浇筑前埋入测温位置。每一测点埋设于上、中、下3个电阻。上表面测温点设在混凝土表面下50~100mm处,中部测温点设在混凝土的中间位置。详见右图:
混凝土浇筑后12h开始测温,间隔6h;48h后间隔4h;96h后间隔2h;7d后间隔1d;14d后测温结束。所有测温点与墙体插筋绑在一起,并设警示标志,安排专人看管,防止人为破坏。所有测温孔均需编号,进行内部不同深度与表面温度的测量,测温工作应让懂技术、责任心强的专人进行测温记录,交技术负责人阅签,作为对混凝土施工质量控制的依据。
混凝土养护
养护是混凝土混凝土产生裂缝的重要措施,为此项目部高度重视,制定专门的养护方案,并安排专人负责。
混凝土浇筑完毕后立即进行妥善的保温、保湿养护,杜绝避免急剧干燥、温差过大、振动及外力扰动。对硅酸盐水泥、普通硅酸盐水泥拌制的混凝土,不得小于14天;对于掺有缓凝性外加剂或有抗渗要求的混凝土,不得小于21天。
底板及大体积混凝土养护:可采用覆盖塑料薄膜、麻袋或草帘的保温保湿养护方法。当环境温度不低于10℃时,也可在混凝土浇筑完毕硬化后,蓄水100mm养护,养护时间不少于14天。大体积混凝土必须根据测温记录,采用保温、保湿养护,并及时调整保温和保湿措施。为防止混凝土降温过快而引起开裂,应在混凝土内部温度降低并趋于稳定后,方可浇水养护。
内外墙、柱混凝土养护:外墙混凝土拆模时间不宜太早(带模7天),可带模浇水养护。模板拆除后,涂刷有质量保证的养护剂,并且涂刷严密,不得漏刷;也可持续浇水养护,保证混凝土表面湿润;也可在墙的两侧覆盖草帘或麻袋及塑料薄膜等覆盖物连续喷水养护。
现浇板混凝土养护:现浇板混凝土收浆或抹压完毕后,采用塑料薄膜覆盖,防止表面水分蒸发,有条件的课洒水养护。带混凝土强度达到1.2N/㎡时方可伤人。
冬期施工时,在混凝土表面不能洒水,要用塑料薄膜和保温材料进行保温保湿的养护。保温材料的厚度要经热工计算确定。
后浇带及加强带施工
止水带
钢板止水带:按照图纸设计要求安装钢板止水带,用间距1m左右的钢筋将止水带焊接固定在底板或墙体钢筋上;焊接时,不得烧穿钢板,止水带之间双面焊接。
缓胀型膨胀止水带:将施工缝凿毛并清理干净,粘结止水条时,粘结面应保持干燥洁净,不影响止水条的粘结定位。将止水槽嵌入预留槽内,通过隔离纸向止水条均匀施压,使止水条紧密的贴在基层上。将止水条搭接端部剪掉一小段,露出粘性端面,然后将两端面粘结压紧。竖向缝应间隔500mm固定。止水条与施工缝界面要粘贴紧密,不被浮渣等阻隔,沿施工缝粘帖止水条不得有断点。止水条定位完毕后应及时浇筑混凝土,以避免被雨水或其它侵入水浸泡。混凝土振捣时应避免振捣棒触及止水条。
底板后浇带保护及清理
为保持后浇带内的清洁,底板后浇带在留置期间,可采取一定的遮挡保护措施,如下图所示。

混凝土浇筑
后浇带混凝土浇注前,应先清除垃圾,清理钢筋上的浮锈,将松动的混凝土剔除干净,用空压机将所有的垃圾将所有的垃圾清除干净;要防止钢筋周围的混凝土不受松动和损坏;将两侧的混凝土界面凿毛并用水冲洗干净充分湿润,然后在混凝土界面上涂刷界面处理剂或素水泥浆。
在浇筑混凝土前,应先在施工缝处铺一层水泥砂浆或与混凝土成分相同的水泥砂浆,
加强对混凝土原材料和搅拌混凝土计量的管理,必须保证混凝土外加剂的掺量符合设计要求;加强混凝土的振捣,浇筑时,应向施工缝处逐渐推进,距老边混凝土80~100m,应加强对施工缝边部的振捣工作,以混凝土不泛浆、不出气泡为准,不得过振。
混凝土浇筑完成,应加强对表面的处理,表面应至少抹压3次,表面压光。
膨胀加强带混凝土浇筑:混凝土浇筑从一边推进,浇注加强带时,采用大掺量膨胀剂的混凝土浇筑加强带;加强带内的混凝土不得与底板其他部位的混凝土混用。必须保证加强带及其两侧混凝土浇注在初凝前完成,并应加强结合处混凝土振捣。
后浇带及加强带混凝土的养护
加强带及后浇带处的混凝土在最后一遍抹压后,应立即塑料薄膜并加盖草栅进行保湿、保温养护,也可蓄水养护,养护时间大于等于15天。墙体加强带采用带模浇水或者覆盖塑料薄膜加盖草栅等保湿保温养护。
材料与设备
材料
本工法中涉及的材料主要是包括钢筋、混凝土、防水材料等,其中对混凝土和防水材料的要求如下:
混凝土配合比设计原则
该工程混凝土采用预拌混凝土、泵送工艺。按照地方规定,混凝土一般由搅拌站提供。地下室混凝土的配合比除应按《普通混凝土配合比设计规程》JGJ55-2000的规定,根据要求的强度等级、抗渗等级、耐久性及工作性进行配合比设计外,其配置的混凝土还用符合以下规定:①干缩率:混凝土90天的干缩率宜小于0.06%。②在满足施工要求的情况下,宜采用较小的混凝土塌落度,可控制在140~160mm之间。③水胶比:应尽量采用较小的水胶比。混凝土的水胶比不宜大于0.60;在满足工作性能的情况下,应采用较小的砂率,砂率以控制在35%~42%。④水泥及矿物掺合料用量:在满足强度的情况下,应尽量减少水泥用量,水泥用量不宜大于350kg/m;可掺加一定数量的矿物掺合料替代水泥,粉煤灰可代替水泥10%~30%,矿渣粉不宜超过水泥用量的50%。⑤用水量:不宜大于175kg/kg。⑥地下室底板、外墙、后浇带及加强带部位的混凝土应掺加膨胀剂配置成补偿收缩混凝土。为提高混凝土的抗裂能力,可掺加0.7~0.9kg/m的聚丙烯纤维。
原材料要求
水泥:宜选用中、低水化热水泥,不应采用早强型水泥,如硅酸盐水泥、普通硅酸盐水泥或矿渣硅酸盐水泥;对抗裂抗渗要求比较高的混凝土,选用水泥的铝酸三钙(C3A)含量不大于8%,使用时水泥的温度不宜超过60℃;水泥的强度不应低于32.5MPa。
骨料:防水混凝土所选用的砂石应符合下列规定:①砂宜采用中砂,要符合《普通混凝土用砂质量标准及检验方法》JGJ52-2006规定;②石子:选用级配较好的碎石,粒径在5~31.5mm,含泥量小于1%,并应符合《普通混凝土用碎石或卵石质量标准及检验方法》JGJ53-2006;③为避免碱骨料反应,混凝土应采用非碱活性骨料,每立方米防水混凝土中各类材料的总碱量不得大于3KG。
矿物掺合料:可在混凝土中掺加Ⅱ或Ⅰ级优质粉煤灰及磨细矿渣粉。所选用矿物掺合料应分别符合《用于水泥和混凝土中的粉煤灰》GB1596-2005,用于水泥和混凝土中的粒化高炉矿渣粉》GB/T18046-2008..
外加剂:为减少用水量和限制混凝土的膨胀,起到补偿收缩作用,可采用高效减水剂或膨胀剂。所用外加剂应分别符合《混凝土外加剂》GB8076-2005,《混凝土泵送剂》JC476-2001,《混凝土外加剂应用技术规范》GB50119-2003的规定。
聚丙烯纤维:在混凝土内掺加聚丙烯纤维可以改善混凝土的性能,提高抗拉强度和韧性,并能有效的控制混凝土的非结构裂缝,是混凝土阻裂的重要措施。
机具设备
本工法中涉及的主要机具设备包括:混凝土输送泵、混凝土布料机、混凝土罐车、混凝土振捣器、自升式塔吊、钢筋切断机、钢筋弯曲机、圆盘锯、直螺纹套丝机等。
其他质量控制措施
认真学习图纸,做好同业主、监理及设计的沟通,统一思想,统一认识;对图纸中影响施工的设计问题须结合工程实际向设计提出恰当的建议,以保证工程质量,满足设计要求。
对混凝土配合比要提前进行优化设计,同时要加强对混凝土环节的质量控制,在生产过程中,要不断检查和抽查混凝土搅拌、计量、配合比、材料、搅拌时间、、用水量、外加剂及纤维使用情况是否符合规定。
施工过程中关键环节要有详细的技术保证措施,并完善工序控制,做到层层交底,保证按已定方案施工。
安全措施
楼板模板应按设计要求控制板面荷载,不得集中堆放脚手架架杆、钢筋、混凝土、混凝土泵送管等材料和机具,防止施工荷载过于集中导致模板变形、失稳。
预防高空的坠落事故,基坑周围应设置钢管护栏,并应刷红白相间油漆,以保证现场施工人员的安全。
加强基坑位移检测,坑内作业时随时注意边破变化,一旦发现现场有裂缝并且有发展趋势,应立即通知施工现场施工人员撤离安全地带,并及时汇报。
对各种施工机具(塔吊、泵车、钢筋加工机械等)在使用前由项目部专职安全员对操作员进行安全技术交底,并将使用注意事项标牌安排悬挂于操作现场。
加强现场施工用电管理,预防现场电气设备线路损坏伤人。
加强现场泵送混凝土的泵送管理,泵料出料口和混凝土管拆接头时,操作人员头部、脸部不要正对该部位,以免突然喷出混凝土伤人。
环保措施
混凝土中掺加粉煤灰以代替部分水泥,做到废物的综合利用,减少环境污染。
扬尘污染控制:利用商品混凝土以减少水泥、砂、石等造成的现场养扬尘污染,使扬尘指标控制在规定范围内。
噪声污染控制:钢筋、模板加工区避开生活及办公区,控制混凝土浇注、钢架加工等工序的场界噪声限值为:夜间55db,白天75db。混凝土振捣棒应采用环保型低噪声产品或采取相应降噪措施,以避免对工人及周边环境造成噪声危害。
冲洗出场区的混凝土运输车,防止污染周边的市政道路。冲洗混凝土泵车、输送泵管得污水应流入现场的明沟及沉淀池中。