本工法的施工特点是:采用全站仪进行空间点的三维坐标定位,形成整个空间三维坐标系。
与传统的测量方法相比,该工法施工测量方便,测量精度高,施工安全,施工速度快,有利于提高技术经济和社会效益。
使用范围
所有高层、超高层钢结构工程的施工测量放线。
工艺原理
平面控制网的建立采用内控和外控相结合的方法,平面控制采用内控法施工、外控法校核的方法。钢柱定位采用先进的全站仪进行三维坐标定位。钢柱柱头标高、钢柱垂直度、钢柱间的水平距离层层进行测定和校验。
施工工艺流程及操作要点
施工工艺流程
测量准备控制网建立(包括平面控制网和高程控制网的建立)地脚螺栓三维坐标测量定位测量放线控制外控法控制钢柱的位置钢柱安装测量钢柱安装质量测量
操作要点:
测量准备
所有测量仪器准备齐全,并按《中华人民共和国计量法实施细则》规定检验合格;
施工图纸审核完毕,并完成设计交底;
专业测绘设计单位提供的工程水准测量成果、高程测量成果等资料齐全;
现场桩位交接完毕,并做好桩位保护,资料齐全;
定位依据的复核;
用坐标反算法核对所给点的边长D和方位角;
用符合校测法所给出的水准点进行校核。
控制网建立
平面控制网建立
根据据每个工程的特点,为方便施工测量,提高施测效率,施工测量可分为一个或两个区域进行。通常两个区域的划分为:核心筒的施工测量是一个单独区域,核心筒外的钢柱施工测量是另一个区域。根据每个工程的高度和工程的特点,可采用内控法或内控法和外空法相结合的方法。
核心筒控制网建立:
外控网建立:将核心筒最外边的四条轴线分别向外扩1m,形成核心筒外控平面网,见图5.2.2-1。
内控网建立:从首层(0.000以上)开始往上的所有层,必须要在核心筒每层顶板上预留孔洞以便用激光铅垂仪进行测设。a、b、c、d四个轴线的交点构建本工程的内控网,每层板上预留4个200200的激光铅垂仪用的孔洞,用来投测施工时使用,见图5.2.2-2。

外围钢柱测量平面控制网建立:根据每个工程的构件布置情况,可以建立一个或多个平面外控网。中关村金融中心工程南北柱子为斜柱,东西两侧为直柱,因此南北和东西分别建立两个平面外控制网,见图5.2.2-3、图5.2.2-4 。

高程控制网的建立
用校核无误后的水准点向现场较永久的建筑物上外测本工程的0.000,用红色油漆作▲标记,作为本工程的高程依据。为提高精度,在引测过程中必须使用前后视等长的原则。
在施工过程中,必须经常进行现场高程点的复测工作,确保引测的高程点正确无误。并在现场布设4~5个同等高程的标高点作为地下地上高程的依据,要在距离本工程一定位置的地方埋设至少3个水准基准点组成高程点组。 地脚螺栓埋设测量在地脚螺栓的顶端临时安装一定位钢板,与预埋钢板平行并与地脚螺栓垂直。利用架设在柱纵、横轴线交点上的两台经纬仪垂直交汇,定位钢板上的纵横轴线允许误差为0.3mm 。在灌注基础混凝土前,进行检查调整纵、横轴线与设计位置的允许误差为0.3mm 。
测量放线控制
平面控制
首层底板放线:首先校测控制桩无误后,在控制桩架经纬仪,精密对中后,以盘左盘右取中法,把控制点投测到首层板面上,并进行闭合校核,闭合差符合测角中误差10,边长相对中误差1:10000范围内校核无误后,进行细部点投测,经自检、互检,报监理工程师验线合格后,依据轴线控制网图和施工分区图做控制桩点,作为竖向控制基点。控制桩点做法,用冲击钻把桩点钻出,然后把钢筋埋入,并用钢锯条锯出十字划在钢筋上作出标记。
标准层测量工作与钢结构施工关系(以一柱二层为例):钢柱安装(先校正标高,再校正位移、最后调整钢柱的垂直偏差)测量校正下层框架梁上层框架梁测量螺栓初拧下层次梁、小梁下层压型钢板堆放上层次梁、小梁测量校正高强度螺栓终拧压型钢板铺设(楼板50mm 控制线)钢筋、混凝土施工。
0.000以上部位轴线控制:
本工程属于超高层建筑(檐高150m),采用内控外控相结合的方法。结构垂直度要求非常严格,
事先应严格校正好仪器,投测时,严格定平度盘水准管。
尽量以首层轴线为准作后视。
取盘左、盘右向上投测的平均位置.
从首层顶板上开始按留洞平面图所示位置每层顶板留出4个200200的方洞,作为用激光经纬仪向上传递各层轴线的依据;
留设此施工洞时,位置必须正确,测量人员在每层浇混凝土前应对各洞定位进行校核。用线坠校核上下层控制线间的误差,用钢卷尺闭合校核轴线控制线间的距离。在首层顶板上就把各控制轴线引测到较远的马路上,然后每隔6层用激光经纬仪加弯管目镜串中法向楼层投测相应轴线作为闭合,保证高层竖向轴线正确。内控法与外控法共同操作,相互校核。保证层层有校核。
当建筑物施工到一定高度时,外控制和远方轴线标志不太好利用,此时必须以内控制为主要依据。测量员必须注意,外控制、轴线标志和内控制之间的关系必须保持一致,控制点之间距离误差要求达到2mm,测角中误差5。
标高控制:
首先校测0.000标高点,然后将0.000抄测到建筑物外墙四周并引测到电梯井,用墨斗弹出,闭合差在3mm以内。
用50m钢卷尺直接从0.000点沿电梯井和核心筒结构底板预留洞铅直拉出各层距结构板面500mm的统一高程点,当两点高程传递到同一施工面时,用水准仪对传递高程点进行闭合校测,取其三个高程点传递的平均值为准,作为各层结构高程的控制依据,在工作面上大面积进行抄平。
在每层楼板施工完毕后,将激光铅垂仪放置于首层底板上已埋设好的控制点a(或b、c、d)上将激光铅垂仪精确对中、整平,然后调焦望远镜,照准施工层上的接收靶,利用无线对讲机通知并指挥施工层上操作接收靶的测量人员,使接收靶上正交的坐标中心点同激光铅垂仪十字丝交点完全重合。此时,固定好接收靶,为了消除仪器自身存在的系统误差,再将激光铅垂仪平转90方向,重新观测仪器十字丝交点是否与接收靶的正交坐标交点重合,如果重合,说明仪器本身没有存在系统误差。这样接收靶上的正交坐标交点即为控制点a的向上投影点;用同样的方法将其余各控制点分别投测到施工层楼板上,同样得到相对应的投影点。
)控制点投测到施工层楼板上之后,将全站仪分别置于各投测点上,校测各个角及相邻两投测点间距是否同首层0.000底板上对应的各个角度及控制距离相符,待角度、距离校测后,将投影点用墨线连起来,然后以控制线为基准,用检定过的50m钢卷尺,将各条轴线投测于楼板上。最后以轴线为基准测出与钢柱所在轴线的借用1m控制线,作为下一节钢柱校正的依据。
外控法控制钢柱的位置(以中关村金融中心工程为例)
利用上图5.2.2-3和上图5.2.2-4作为外控法的轴线控制依据。
南北钢柱定位,见图5.2.2-3
用全站仪把o点坐标定出来,在o点放置一台DJD2A级的电子经纬仪,作为塔楼南北钢柱的主控点。定出A、B、C控制线,根据图纸尺寸把TR2~TR7各轴线与c轴的交点定出来,同样把TR8~TR14轴线与a轴的交点定出来。
DJD2A级电子经纬仪架设在o点,用来控制TRBs轴和TRGs轴上钢柱的垂直于TR1~TR14轴方向的位置。莱卡全站仪(TCA2003)架设在TR1~TR14轴与a、c轴线的交点上,用来控制钢柱的轴线径向位置。
东西两侧钢柱定位,见图5.2.2-4
用全站仪把o点坐标定出来,在o点放置一台DJD2A级的电子经纬仪,作为TRBs轴和TRGs轴上钢柱的主控点。把TR1、TR7、TR8、TR14、TRC~TRF、TRJ~TRN 轴线上的各个坐标点同样用全站仪定出来。
用两台DJD2A级电子经纬仪架设在任意一根柱子的两个轴线上,用正交法即可把钢柱位置精确定位出来。
钢柱安装测量
构件进场复测
在安装测量前,对柱、梁、支撑等主要构建尺寸与中线位置进行复核,构件的外形与几何尺寸的偏差符合建筑钢结构质量验收规范的规定。
根据流水分区的划分以及钢柱吊装顺序,在需要吊装的钢柱上面根据钢柱原有的冲眼标出轴线或中心线,并用红色三角作出标记,以便校测用。在吊装前,必须对钢柱的长度,及截面几何尺寸作检查,以作为吊装测量控制标高的依据。

定位复测
在基础混凝土面层上第一节钢柱安装前,要对钢柱地脚螺栓部位的柱十字定位轴线控制点组成的柱格网进行检查、调整。其误差小于1mm。安装时柱底面的十字轴线对准地脚螺栓部位的柱十字定位轴线。其误差小于0.5mm.。
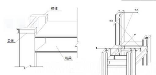
钢柱垂直度校正
将检定过的两台DJD2A级电子经纬分别置于相互垂直的轴线控制网上,精确对中,整平。后视前方墨线(控制轴线),然后纵向转动望远镜,照准钢柱头上操作人员的标志,并读数,与设计控制值相对比后,判断方向并指挥吊装人员,对钢柱进行校正。直至在两个方向上均校正在正确垂直位置后,将四个方向的搅风绳拉紧,然后通知吊装人员进行焊接。
由于焊接时,考虑到焊接使得钢骨收缩,而使得柱子偏移,所以必须随时监测并同时校正垂直度,钢柱校正方法如图

⑷钢柱顶位移校核
在下一节钢柱吊装前,必须对前一节钢柱顶的偏移进行复测。复测方法用楼板上已经投测的轴线及轴线控制线,量出控制线与钢柱中心的尺寸,根据实测数据整理成测量报告,上报各有关部门,并进行数据分析。以备在下一节钢柱吊装时进行平面调整,以免误差积累而影响总的垂直度。
⑸钢柱安装复测
1)当钢柱初校完后,需安装钢梁。梁柱之间用高强螺栓连接,在连接安装过程中,将会影响钢柱的垂直度,因此必须安装校检。
2)螺栓初拧之后,需要终拧。终拧同样将会对钢柱垂直度有所影响,为了保证钢柱安装精度的要求,需作进一步的校测。校测后的测量数据作为节点焊接参考依据。
3)终拧之后,下道工艺是焊接之后的焊缝将会收缩。因此,焊接之后,必须再一次校测,校测后记录下来的测量数据,主要为下一层钢柱安装提供调整依据。
⑹其它测定
在进行柱、梁、支撑等构建安装时,应以柱为准,调整梁和支撑,以确保建筑物整体的铅直度。在焊接时必须观测与记录以下项目:
1)柱与梁焊缝收缩引起柱身铅直度的测定;
2)柱的日照温差变形的测定值;
3)塔吊锚固在结构上,对结构铅直度的测定;
4)柱身受风力影响的测定。
5.2.7钢结构安装质量检验
⑴钢柱头标高检验方法
用校核无误的当前施工层的控制标高作为基点,用水准仪将低于柱顶300mm的标高线投测到钢柱上,并弹上墨线。然后用经过检定的钢尺;量出墨线到柱顶的实际尺寸并记录下来。将实测后的数据整理上报,见图

⑵首层以上钢柱垂直度检验校正
1)将首层基准轴线投测到钢梁面上,所投测的线距离梁上的基准设计轴线1m ; 2)校测梁上基准线的平面位置、尺寸、关系、经校测符合精度后,方可使用;
3)将经纬仪架设在梁面基准线上,后视基准线方向向上投测,钢柱顶部卡有读数标尺; 4)根据仪器与轴线的间距关系,在标尺上读出相应的尺寸,以此来校正钢柱。
⑶钢柱之间水平距离的检验校正
1)当钢柱吊装完毕后,经过垂直度校正和标高校正完成后,需要进行平面位置校正;
2)AC2003全站仪可以对任意多的点距离联测,利用全站仪的这一程序,来对钢柱水平面位置进
首先根据设计图纸,在计算机中把任意两个钢柱的平面位置距离计算出来,

安全措施:
做好边坡的移位观测(符合测量规范DBJ01-21-95-12-3);
做好楼层的沉降观测,按测量规范三等水准测量的技术要求观测(DBJ01-21-95/12、2、
做好塔吊基础的沉降观测,及时进行数据整理,发现问题及时汇报和处理; 8.0.4测量人员施工必须遵守项目的各项安全管理规定; 8.0.5高空作业的测量人员必须带好安全带;
测量时,必须将测量仪器架设在安全、平稳的地方。
环保措施
施工测量的各种废弃物(如墨瓶等)不得乱扔乱放;
测量用的油漆、墨汁等必须按规定使用,不得随意乱涂或溢洒;
雨天或炎热天气施工时,必须采用遮阳和雨伞保护测量仪器,防止雨淋或太阳直射。
效益分析
提高了钢构件安装的质量和速度,减少了钢构件测量校核的时间,且施工测量与钢结构施工同时交叉进行,不占用施工工期。对于超过100m 的高层钢结构工程,直接产生的经济效益在10万元以上。