一、绘制梁线

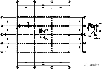
图 17梁线布置图
1.绘制主梁

图 18轴线布置主梁
菜单:TS平面梁轴线布梁(梁平面轴线布梁)
通过上一个练习,我们已经对TSSD的梁线绘制命令已经有了一个初步的了解。现在,我们首先使用轴线布梁的命令来绘制主梁。点取菜单后,先按错误!未找到引用源。填写好梁的绘制参数,同时命令行出现下面提示:
窗选轴线交点的第一角退出: 图 17 中P1点
另一角 /D-多边形退出: 图 17 中P2点
现在,我们可以看到,图形上有轴线的部分都已经布置上了梁线。
下面,我们来加一些次梁;为了方便定位,我们首先添加两条辅助轴线。
2.辅助轴线
菜单:TS平面轴网添加轴线(轴网添加轴线)
点取菜单后,命令行出现下面提示:
拾取参考轴线退出: 图 17 中P3点
输入新轴线的偏移距离退出: 3000回车
输入轴线编号无: 1/A回车
拾取参考轴线退出: 图 17 中P4点
输入新轴线的偏移距离退出: 3000回车
输入轴线编号无: 1/B回车
拾取参考轴线退出: 回车

图 19单段画次梁
通过以上的操作,我们已经添加了2条辅助轴线:1/A轴和1/B轴。下面,我们通过这两条轴线形成的交点,来添加次梁线。
3.绘制次梁
菜单:TS平面梁画直线梁(梁平面画直线梁)
点取菜单后,先按图 19填写好梁的绘制参数,同时命令行出现下面提示:
点取梁线起点退出: 图 17 中P5点
点取梁线终点退出: 图 17 中P6点
点取梁线起点 U-回退退出: 图 17 中P7点
点取梁线终点退出: 图 17 中P8点
点取梁线起点 U-回退退出: 回车
现在,所有的梁线均已绘制完成,梁线相交部分已有程序自动处理好。但柱子内还有一些梁线穿过,我们可以通过交线处理命令来进行修正。
4.交线处理
菜单:TS平面梁交线处理(梁平面交线处理)
点取菜单后,命令行出现下面提示:
用窗口选择要进行交线处理的区域:
窗口第一角退出: 图 17 中P1点
另一角退出: 图 17 中P2点
开始[交线处理],共选择了梁[墙]线28根。
交线处理完毕!
命令执行后,会把柱子里面的梁线全部清除。

图 20梁集中标注
5.梁集中标注
菜单:TS平面梁集中标注(梁平面梁集中标)
点取菜单后,程序进入图 20对话框。调整好输入数据后,点取OK按钮,命令行出现下面提示:
请选取标注对象退出: 图 17 中P9点
点取文字位置退出: 图 17 中P0点
绘制好梁线的图形见图 17。
6.梁板剖面
菜单:TS工具常用符号梁断面号2(符号梁断面号2)
点取菜单后,命令行出现下面提示:
请选择一条边退出: 图 21中P1
请选择另一条边退出:图 21中P2
请输入梁板标高差: 120 回车
请选择一条边退出: 回车

图 21梁剖面图
这时,我们已经将图形左上角的楼板下沉了120mm。下面,我们把该楼板的边缘梁线改成实线。由于构成该楼板左右2侧的梁是主梁,因此我们在把梁线变实前,首先要利用AutoCAD的Break命令,把这2根主梁线在P3、P4点断开。
7.虚实变换
菜单:TS平面梁虚实变换(梁平面虚实变换)
点取菜单后,命令行出现下面提示:
选择要变换的梁线退出: W回车
第一角点: 图 21中P5
另一角点: 图 21中P6
选择对象: 回车
现在,我们已经把板边梁线变成了实线。下面,我们来标注一下梁宽。
8.梁宽标注
菜单:TS工具尺寸梁宽墙厚(尺寸梁宽墙厚)
点取菜单后,命令行出现下面提示:
选取要标注宽度(厚度)的梁(墙)退出: 选择图 21中P7点梁线
选取要标注宽度(厚度)的梁(墙)退出: 回车
这样,我们的梁宽就标好了。现在,我们来观察一下图形,发现AB轴之间、BC轴之间的尺寸依然是6米,没有在我们添加了1/A轴和1/B轴之后断开。下面,我们就把这里处理一下。
9.标注断开
菜单:TS工具尺寸标注断开(尺寸标注断开)
点取菜单后,命令行出现下面提示:
拾取要拆分的尺寸退出: 选择图 21中P8点尺寸
点取尺寸断开点 /输断开长度 /[/n] - n等分退出: 图 21中P9
这样,左侧的BC轴之间的尺寸就被拆开成2个3米,我们按照相同的方法,把其他1/A轴和1/B轴之间的尺寸断开。
接下来,我们来绘制梁的截面详图。
10.剖切符号
菜单:TS工具常用符号截面剖切(符号截面剖切)
在绘制梁的截面之前,我们首先在平面图上绘制剖切符号。点取菜单后,命令行出现下面提示:

图 22梁截面详图
请给出截面剖切符号起点退出: 点取图 22中P1点
请给出截面剖切符号终点退出: 点取图 22中P2点
请给出截面剖切方向退出: 点取图 22中P3点
请输入截面剖切号1: 回车
现在,梁的截面剖切符号已经画好了,下面我们来画梁的截面详图。

图 23梁截面对话框
11.截面详图
菜单:TS构件梁截面(梁详图梁截面)
点取菜单后,出现图 23所示对话框。修改相关数据之后,点取确定按钮,命令行出现下面提示:
请选择图形插入点: 点取图 22中P4点
现在,我们的梁图基本上绘制完成了,见图 22。
二、布置楼板
1.布预制楼板
菜单:TS平面板布预制板(楼板布预制板)
点取菜单后,命令行出现下面提示:
请选择板内一点: 点取图 24中P1
板支撑方向: 点取图 24中P2

图 24布置楼板
这时,屏幕上出现图 25所示对话框,我们填写号相关数据后,只要点取确定按钮,一块预制楼板就会自动在图形上生成了。

图 25制楼板对话框
2.楼板开洞
菜单:TS平面板楼板开洞(楼板楼板开洞)
下面,我们在楼板上开设洞口。点取菜单后,出现图 26所示对话框;在填写好相关数据后,点取插入按钮,命令行出现一下提示:

图 26楼板开洞
请输入洞定位点退出: 点取图 24中P3点
转折点或标注点位置不标注: 点取图 24中P4点
请输入标注点取上一点: 点取图 24中P5点

图 27钢筋控制框
这样,我们在平面上布置楼板的工作就完成了。下面,我们进一步对楼板上的钢筋进行补充。
3.板内正筋
菜单:TS工具钢筋自动正筋(钢筋自动正筋)
点取菜单后,出现图 27钢筋控制框所示对话框,我们可以直接在上面控制绘制钢筋的数据;同时在命令行出现以下提示:
选取钢筋第一点: 点取图 28中P1
按回车确定: 点取图 28中P2
输入钢筋直径和间距(dX@XXX或DX@XXX): d6@100 回车
输入钢筋编号: 1回车
现在,板内正筋就已经绘制完成了。下面,我们继续布置板的负筋。

图 28绘制楼板内的钢筋
4.板边负筋
菜单:TS工具钢筋自动负筋(钢筋自动负筋)
点取菜单后,出现图 27钢筋控制框所示对话框,我们把钢筋级别改为二级,并且打开标注选项;这时在命令行出现以下提示:
选取钢筋第一点: 点图 28中P3
这时,将光标移动到图 28中P4附近。
Dist-输入距离/选取钢筋第二点/确定: d回车
输入距离值2695: 1500回车
输入钢筋直径和间距(dX@XXX或DX@XXX): D12@150回车
输入钢筋编号: 2回车
第一根板边负筋就已经绘制好了,我们再次点取命令,绘制靠中间的负筋:
选取钢筋第一点: 点图 28中P5
这时,将光标移动到图 28中P6附近。
Left-左边距离 /Right-右边距离/选取钢筋第二点/确定: L回车
输入左边距离值2100: 1500回车
输入右边距离值2400: 1500回车
输入钢筋直径和间距(dX@XXX或DX@XXX): D12@150回车
输入钢筋编号: 3回车
至此,这张梁板布置图形已经基本完成了。下面我们利用文字的功能对它进行完善。
三、图形完善
1.文字输入
在结构绘图过程中,我们经常要使用到各种特殊符号,如:ⅠⅣ钢筋、㎡;另外,由于在AutoCAD中没有提供排版功能,致使我们在使用AutoCAD中的文字功能进行结构绘图时,会感觉非常不方便。为此,TSSD提供了大量的文字工具,使得这一矛盾得到很好的解决。
菜单:TS工具文字多行输入(文字多行输入)
点取菜单后,出现图 29所示对话框:对话框的第一行是一排按钮,用于输入钢筋直径和角标等特殊符号;在第二行的编辑框中,我们可以很方便的对文字高度、行间距和每行的字符数进行调整,从而达到排版的目的;最右侧的一排按钮可以对文字进行增强处理:

图 29多行文字输入
例如,我们在结构中经常需要写一些构造要求,但这些文字在AutoCAD中不方便排版;这时,我们可以先把构造要求用记事本等工具写好后保存起来。然后点取文件导入功能,屏幕出现图 30所示对话框,选择已经写好的文本文件,如x:ssd14sampleeam.txt,然后点取打开按钮,文件中的内容就会被传入到多行文字输入的编辑框里面来;我们进行相关调整后点取确定按钮,命令行出现提示:

图 30文件导入
请选取文字插入点: 点取图 31中P1点

图 31文字说明
这样,我们的文字说明就写好了,如果您对输出的结果仍不满意,还可以用多行编辑对已有文字反复进行调整。下面,我们把本图的名称添加上去,这样,这张图形看起来就更加完整了。
2.图形名称
菜单:TS工具符号图形名字(符号图形名字)
点取菜单后,出现图 32所示对话框;在填写好相关内容后,点取插入按钮,这时命令行出现提示:

图 32图形名称
选取文字插入点: 点取图 31中P2点
完成后的图形如图 31所示。